【中海云缦源境】选房指南-贷款利率-配套详情-营销热线-欢迎您
扫描到手机,新闻随时看
扫一扫,用手机看文章
更加方便分享给朋友
成都中海云缦源境售楼处电话:028-87777213【营销中心】
☎【置业顾问】:18613205563「微信同步」☎
☎【置业顾问】:19983517822「微信同步」☎
2025年6月20日贷款市场报价利率(LPR):1年期LPR为3.0%,5年期以上LPR为3.5%,以上LPR在下一次发布LPR之前有效。
和5月相比,6月份的LPR并无波动,意料之中,毕竟上个月LPR才降了10BP。
如果按照之前的首套房贷利率执行标准(LPR-60BP),成都最低首套房商贷将降至2.9%。
但现在,成都新受理按揭贷款,5年期以上个人住房贷款定价底线由LPR-60BP调整为LPR-50BP,目前执行利率依然3%。
已审过未放款的,部分银行按照审过执行3.5%-0.6%=2.9%,部分银行按照放款执行,会把利率调整为3.5%-0.5%=3%。
对于已放款客户,到利率调整日根据最新lpr -对应bp:
即,首套房最低房贷利率为(LPR-60BP)2.9%;二套房最低房贷利率为(LPR-30BP)3.2%。
2t2纯板式独立光厅入户
法务区地铁6号线百米直达
双TOD|万方法务岛绿廊
基础信息
总占地:93亩
总户数:871户
面积区间:100-103-112-132
楼层:7-17层
梯户比:1T2、2T2、2T4
容积率:2.0
交付时间:预计25年底
装修标准:2950元
物业:中海物业
坐享天府CBD&天府中央法务区双重区域优势
建面约100-132㎡公园艺境臻宅,首发成都
中海新南图 天府东翼2.0战略启新
2019年,以天府CBD人居地标-天府里启幕天府东翼1.0
2022年,于新川、麓山、中央法务区四子成川,全面焕新商务区板块人居风貌
中海云缦源境坐拥双区高能级配套,精粹生活圈,麓湖公园区-中央法务区-天府CBD聚合式铁三角,更有国际会议中心、中国西部国际博览城等世界级文化交流配套,大悦城等高阶商业配套,匹配您的丰盛生活。
【高阶商业】
天府大悦城、天府和悦广场、麓湖水镇、麓湖伊藤店(在建中),满足大型购物及居家消费需求,享受便捷生活。
【健康医疗】
近享四川省第二人民医院、四川天府新区人民医院(在建中)、四川大学华西天府医院等健康医疗
【全龄优教】
香山k12教育组团、成都市实验外国语学校、天府三中、麓山国际光亚学校等0-18岁全系教育资源丰富。
【项目规划】
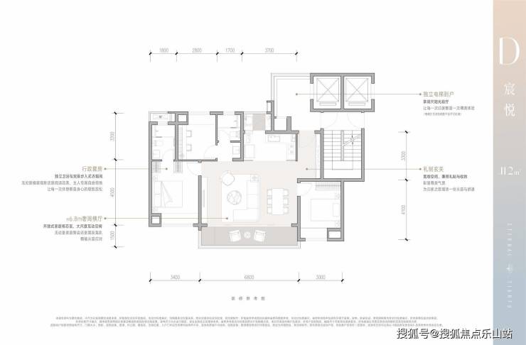
A户型 建面约100㎡三室两厅两卫
成都中海云缦源境售楼处电话:028-87777213【营销中心】
☎【置业顾问】:18613205563「微信同步」☎
☎【置业顾问】:19983517822「微信同步」☎
___欢迎来电咨询丨专业一对一热情服务丨看房需提前预约
——如有侵权请联系我们删帖——
温馨提示:为了节约您的等待时间,看房请提前致电售楼处预约!!!
声明:本文由入驻焦点开放平台的作者撰写,除焦点官方账号外,观点仅代表作者本人,不代表焦点立场。
