成都新房西环290-西环290年底能不能买?-西环290开发商-西环290首页网站-西环290最新消息
扫描到手机,新闻随时看
扫一扫,用手机看文章
更加方便分享给朋友
【营销中心】:028-87777213「销售热线」
【置业顾问】:18613205563「微信同步」
【置业顾问】:19983517822「微信同步」
温馨提示:专业一对一热情服务,为了节约您的等待时间,看房请提前致电预约!!!
有机构做了统计,成都楼市在2024年9月进行了一次深度的探底,然后迅速转头开启了一轮攀岩式的暴力拉升。9月底怎么了?是国家9.26一揽子新政的刺激。国庆大假一结束,催生了楼市第四季度的复苏行情。放眼全国,楼市行情表现最好的城市有两座,一座是上海,一座是成都。在今年2024年全国楼市的低谷时期,它们的抗压能力是最强的。在9.26新政之后,它们也是复苏情况最好的。
02887777213
三通建面约60-110 ㎡ ,特惠单价10500元/㎡起
【稀缺地脉】:项目位于成都青羊区西三环外侧日月大道和武青北路的交汇处,上风上水的城西坐拥成都最丰富的自然资源,土拍屡创新高,让城西价值,在“西贵”的传统下变得更加凸显
「板块价值」:项目所处城西目前最为繁华的外光华片区,也是目前区域内在售的唯一一个拥有三地铁+BRT加持的项目,周边配套丰富,交通、教育、医疗、商业等均醇熟呈现
「土拍价格」:德商、保利、中铁建、中绿等品牌商云集,土拍屡创新高,楼面地价最高已超18000/㎡
【国际视野】:大师级设计团队倾力打造,奢享臻品的现代美学大平层【景观设计-AECOM】:世界排名前三的景观设计单位,代表作①上海国际⾦融中⼼ ②深圳湾1号 ③纽约世界贸易中⼼(重建) ④伦敦奥运及⾥约奥运整体规划 ⑤林肯中⼼【建筑设计-上海天华建筑设计】:中国甲级建筑设计公司,代表作①上海闵⾏⻰湖天街 ②北京⼤兴⻰湖天街 ③上海七宝万科⼴场 ④⻘岛环球⾦融中⼼ ⑤武汉福莱中⼼【精装设计-SSD】:大师级精装设计单位,代表作①济南融汇城销售中⼼ ②深圳华润银湖蓝⼭全景私家会所 ③三亚颐和湖光⼭舍

【醇熟配套】
「生态」:百花潭公园、浣花溪公园、杜甫草堂
「交通」:三横+两纵立体路网,地铁4/9/13号线(规划建设中)、有轨电车蓉2号线k5快速公交等多维交通路网
「商业」:以深圳鸿荣源旗下壹方商置运营,自持约5万方西环·壹方里商业街,另享青羊万达广场、鹏瑞利广场、中铁西城新天地三大商圈
「学校」: 成都市同辉(国际)学校、 树德中学(光华校区)、 实验小学西区分校
「医疗」:成都市妇女儿童医院(三甲)、成飞医院(三甲)「产业」:成飞集团、青羊工业总部基地
【奢装大平层】西环290以全智能、科技概念打造奢装大平层,以智能门禁系统、全息3D智能管家、智能机器人服务、未来感悬浮台、星空顶、3D智能公区、华为全屋智能等九大智能科技配套,典范科技新时代

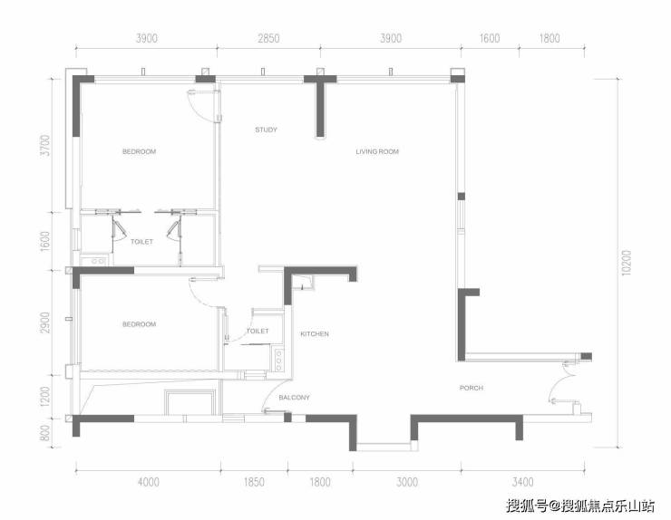
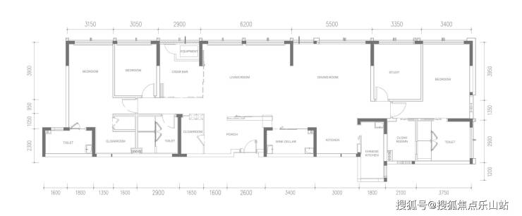
【至臻户型】建面约130/160/177/290㎡奢装大平层
【290户型】:大横厅+12米开间全明采光面,IMAX级环幕瞰景,全景双翼主卧套房
【290户型鉴赏】
【177户型】:大横厅巨幕式纵深空间,全境大开,高得房率,纵享尺度进阶
【177户型鉴赏】
【160户型】:独立玄关,纯粹动静分离,纵深空间布局
【160户型鉴赏】
【130户型】:宝格丽奢华风,阔尺双户型设计,百变大客厅
【130户型鉴赏】
【营销中心】:028-87777213「销售热线」
【置业顾问】:18613205563「微信同步」
【置业顾问】:19983517822「微信同步」
温馨提示:专业一对一热情服务,为了节约您的等待时间,看房请提前致电预约!!!
免责声明:
以上内容仅作为邀约邀请,涉及的图片为部分区域实拍图和美学畅想图,具体内容请以现场公示和合同约定为准;本文部分资料、部分图片来源于网络,如有侵权请联系我们删除。
声明:本文由入驻焦点开放平台的作者撰写,除焦点官方账号外,观点仅代表作者本人,不代表焦点立场。
