新川雅境优缺点-售楼中心-最新楼盘动态消息
扫描到手机,新闻随时看
扫一扫,用手机看文章
更加方便分享给朋友
成都 新川雅境【营销中心】:028-87777213「销售热线」
【置业顾问】:18613205563「微信同步」
【置业顾问】:19983517822「微信同步」
准现房实景呈现 | 高定铝板外立面 | 6号线地铁旁 | 双滨河湿地+公园环抱 | 教科院附中/蒙小等优质教育
在高新南“卷品质”的赛道中,新川雅境以准现房+高定装标+稀缺生态形成差异化竞争力,是改善客群“所见即所得”的安心选择。
开发商诚意:拒绝价格战,专注品质升级
自5月起投入千万级成本,升级园林、车库、户型布局等,实景兑现力远超同期楼盘。
物业合作:龙湖智创生活,提供高端物业服务。
地段价值:高新南新川板块,稀缺城市资源
交通便捷性
地铁6号线新通大道站(距离约300米),无缝衔接金融城、天府新区等核心区。
周边主干道:新川大道、梓州大道,快速通达全城。
生态资源
双滨河湿地(项目两侧)、新怡公园(步行可达)、新川之心公园(约1公里),形成天然氧吧。
成熟配套
商业:3号邻里中心、时光里小吃街、新川中心(餐饮、购物一站式解决)。
教育:蒙彼利埃小学、教科院附幼/附小/附中、金苹果锦城一中(全龄段优质学校环绕)。
产品力:高端改善的硬核底气
1. 准现房优势
实景呈现:楼栋、园林、公区全部可见,杜绝“效果图偏差”。
快速入住:2024年交付,节省租房成本,规避期房风险。
2. 品质细节(对标6000元/㎡装标)
外立面:大面定制铝板+玻璃幕墙,现代美学设计。
公区:纳米比亚进口奢石入户大堂、星空顶地下车库。
园林:约150米超大楼间距,1000㎡全龄会所(儿童乐园、健身区等)。
3. 精装体系(孟也大师设计)
品牌配置:约克中央空调、威能地暖、汉斯格雅卫浴、科勒智能马桶、摩根智能家居。
人性化设计:线性地漏、负离子凉霸、镜柜收纳系统等50项细节。
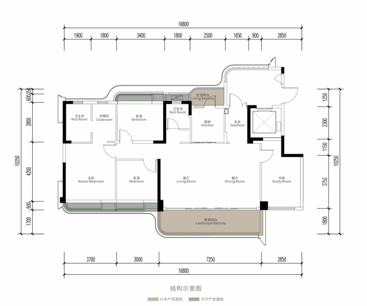
约132㎡四房双卫
亮点:南北通透,客厅开间约4.2米,主卧套房设计+独立衣帽间。
适配人群:二胎家庭或需要书房/多功能间的改善客群。

约143㎡四房双卫
亮点:LDK一体化布局,约6米宽景阳台,次卧预留灵活改造空间。
适配人群:追求景观视野及社交空间的高端家庭。

成都 新川雅境【营销中心】:028-87777213「销售热线」
【置业顾问】:18613205563「微信同步」
【置业顾问】:19983517822「微信同步」
声明:本文由入驻焦点开放平台的作者撰写,除焦点官方账号外,观点仅代表作者本人,不代表焦点立场。
