2023年全新新房住宅【秦皇帝锦·锦澜邸】区域/价值/交通/商业配套/销售电话
扫描到手机,新闻随时看
扫一扫,用手机看文章
更加方便分享给朋友
房地产市场期盼已久的让利政策终于落地。8月31日晚间,人民银行和国家金融监管总局联合发布两则重磅通知,统一全国商品房个贷首付比例下限,首套房和二套房分别调至20%和30%,下调二套房房贷利率下限,并明确存量首套房贷利率可通过新发贷款置换和协商变更合同两种方式调整。
专家指出,本次政策在全面降低各类城市购房门槛的同时,重点加大了对改善性需求的支持力度,充分体现对于合理住房消费需求提振的导向,有助于减轻购房者负担,对于刺激消费、推动房地产市场复苏有积极作用。
【秦皇帝锦·锦澜邸】
中央商务区之芯 实景现房
即将取证⏰
🏙建面约91㎡私享臻装二房
🏙建面约117-119㎡明星臻装二房
建面约128-138㎡全能臻装四房
【项目位置】
项目营销中心地址:四川省成都市天府新区汉州路与厦门路东段辅路交叉口西北140米
🟥【基本信息】
项目总占地:约261亩,总建筑面积:约95524㎡
预取证锦澜邸项目,占地约 40.7 亩,总建面约 9.5 万m²
容积率:约2.5
绿化率:约30%
总户数:377户
产品规划
共计4栋住宅 16-25F
「91㎡两房双卫 」
「117-119㎡三房双卫」
「128-138㎡四房双卫 」
【品牌介绍】城南发展33年 深耕天府新区
1.永安集团深耕城南33年,集地产开发、建筑、酒店运营、智慧物联网科技、物业服务为一体;公司所有开

2.目前在天府新区CBD已成功开发建设秦皇帝锦项目,项目是集高端商业、星级酒店为一体的综合体【项目分为四期开发,一期为我们的精品商业街区包含两座星级酒店:秦皇永安酒店及秦皇假日酒店;二期北区为住宅锦玥邸(已售罄),南区是我们即将推售的都市华宅—锦澜邸项目;三期为我们的高端酒店集群包含一座五星级酒店:天府万丽酒店,四期是住宅钰翠轩(已售罄)。】
3.天府新区兴隆湖核心位置北岸打造高端改善产品——隆溪湖·铂翠轩,隆溪湖铂翠轩获得最美外立面全省第十三名,而中央商务区的秦皇帝锦项目被评为2022年外立面形象设计全省第八名
永安集团的择址理念是非核心不选,也致力于在天府新区各个核心板块持续开发,再续城市力作。2022年在天府前湾核心板块,以盛世双子再续天府芯。
🟥【天府中央商务区】
总规划面积28.6平方公里,重点突出总部经济、会展博览、国际交往、生态公园四大功能,布局企业总部经济,会议会展经济,交通经济,中央公园经济,艺术经济,高端住宅经济,校园经济,医疗经济,八大经济集群。致力于打造世界新城市样板,建设世界级CBD,打造成都未来城市新中心。
🟥【天府CBD东区】
商务占地达到了80%,住宅占地仅占20%,现在东区的所有土地已全部名花有主,重点代表项目有:489米超高层一带一路大厦、中粮大悦城、西部国际博览城、天府国际会议中心、中铁西南总部、中交国际中心、中建大厦、中冶大厦、传化智联西部总部、广汇雪莲堂美术馆、TFS国际保税中心等。
五横三纵立体交通网路,通达全城
五横:武汉路、杭州路、宁波路、福州路、广州路
三纵:天府大道、夔州大道、梓州大道
🔹多条地铁汇集,从容出行
天府商务站为6、19号线的交汇站,距离项目约300M,直接与传统主城连接
西博城站可换乘1、18号线,距离本案100M左右,可通往天府国际机场
天府公园站为1、19号线的交汇站,距离项目不到1KM;为1、19号线的交汇站,距离项目不到1KM
商业配套|
高配商业环绕 尽享世界繁华
🔹秦皇锦街:项目一期打造了16000㎡的商业街
🔹中粮大悦城:项目北侧有15万㎡大型购物中心的天府大悦城,预计将于2023年底正式开业
🔹国际保税商业中心:是成都首个保税中心,拥有3000平方米的保税仓
🔹国际金融中心;西南地标沉浸式商业
教育配套 |
优质教育资源齐聚,全龄段教育无忧
🔹幼儿园:项目三公里范围内有天府新区元音幼儿园、科学城幼儿园、金摇篮幼儿园;周边还有天府新区实验幼儿园和规划中的天府新区第八幼儿园
🔹小学:项目三公里范围内有天府新区第一小学、天府中学附属小学,此外还有天府第七小学、元音小学等
🔹中学:项目三公里范围内有天府第七中学、元音中学、天府中学、天府新区教育科学研究院附属中学等
生态配套 |
三大公园覆盖,万亩生态资源环绕
🔹天府中央公园:占地约3450亩,是唯一跨天府大道中轴线的城市公园,是最具城市地标感的都市公园
🔹鹿溪河生态湿地:占地面积约4500亩,天然充满野趣的湿地公园区
🔹兴隆湖湿地公园:占地面积约4500亩,生态环境良好
医疗配套 |
优质医疗资源,为健康保驾护航
🔹南侧有天府华西医院已投入使用,医护均由本部派驻,治疗方案完全一致,天府华西牙科医院(集科研、教育、医学为一体的总部基地)(建设中,预计2023年12月完工);北侧有四川省第二人民医院、万达UPMC国际医院,距离项目较近的有建设中的妇女儿童医院(三甲)
🟥【全系实景 臻装现房】
建筑风格及布局|
🔹采用超大围合式的布局打造了4栋住宅,并且采用错落式的布局,保证了每一户的采光面及极致的观景面。整个外立面设计也是获得了“四川省外立面形象设计大奖
🔹安逸舒适居住空间
四大板块:艺境花园,水韵蓝池,悦动天地,琉璃花园
六大功能空间:入口空间,开放空间,私密空间,半私密空间,会所空间,商业空间
🟥【在售户型】
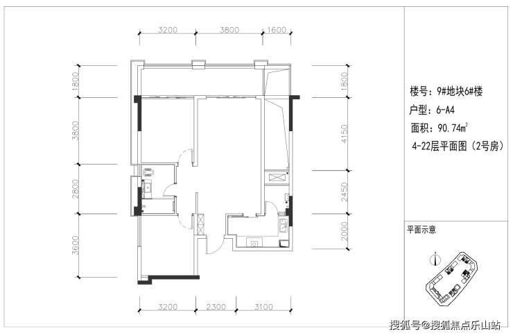
建面约91㎡两室两厅两卫
客厅开间约3.8米,无任何空间浪费
配合约7M阔景阳台,餐厨客卫卧空间功能一应俱全,空间利用率达到极致
主卧约18㎡,可以说是全成都目前在售100㎡以下,主卧最大的户型

建面约119㎡三室两厅两卫
客厅开间约4M,极佳舒适空间
方正布局,套三双卫绝佳的动静分区享受私属的静谧空间
主次卧空间基本保持一致,赠送完全抵消公摊

建面约138㎡四室两厅两卫
近15米开间超大采光面,市面上基本要170㎡的产品才能做到
主次卧空间接近,一书房+三卧的房间+双卫分布
正对中庭,极大的保证了居住的私密性和静谧,享受极致的居住体验

声明:本文由入驻焦点开放平台的作者撰写,除焦点官方账号外,观点仅代表作者本人,不代表焦点立场。
