天投公园翠屿怎么样?天投公园翠屿房源|交通优缺点分析

搜狐焦点乐山站 2025-09-07 09:15:00
用手机看
扫描到手机,新闻随时看

扫一扫,用手机看文章
更加方便分享给朋友

【营销中心】:028-87777213「销售热线」 【置业顾问】:18613205563「微信同步」 【置业顾问】:19983517822「微信同步」 温馨提示:专业一对一热情服务,为了节约您的等待时间,看房请提前致电预约!!!

【营销中心】:028-87777213「销售热线」

【置业顾问】:18613205563「微信同步」

【置业顾问】:19983517822「微信同步」

温馨提示:专业一对一热情服务,为了节约您的等待时间,看房请提前致电预约!!!

免责声明:

以上内容仅作为邀约邀请,涉及的图片为部分区域实拍图和美学畅想图,具体内容请以现场公示和合同约定为准;本文部分资料、部分图片来源于网络,如有侵权请联系我们删除。

核心价值亮点

1. 战略区位

踞天府总部商务区核芯,与天府中央法务区无缝衔接,距天府法务岛直线距离仅800米,毗邻青岛路TOD(200米)、昌公堰TOD(1.2公里)——成都唯一双TOD交汇区域。

2. 立体交通网

轨交:地铁6号线青岛路站(项目南门300米)、1/18号线(西博城站1.8公里)、规划26号线

路网:天府大道(500米)、梓州大道(1公里)、蓉遵高速(2公里)三纵贯通,15分钟直达金融城。

3. 顶配资源环伺

配套类型具体资源直线距离商业亚洲最大山姆会员店(天府和悦广场)1.5公里医疗华西天府医院3公里教育K12国际教育资源群1公里范围内公园五大城市公园群最近公园400米

产品硬核解析

地块参数:占地64.69亩|容积率2.5|绿地率35%|精装交付(高层2700元/㎡,小高层2989元/㎡)

产品规划

高层(24-26F|2T4|公摊25%):建面99-119㎡|均价2.1-2.2万/㎡

小高层(17F|2T2|公摊20%):建面138-142㎡|均价2.25-2.5万/㎡

园林设计

首层全架空设计:打造1600㎡花园会所+800㎡儿童乐园+1000㎡健身空间

230米中央森活轴+400米全龄跑步环

双社区商业街(星汇雅集/烟火集市)

王牌户型推荐

户型面积总价区间核心亮点A1集翠98㎡200-220万LDK一体化+创变空间C1凝翠119㎡250-265万6.6米景观阳台+套房主卧D1森屿138㎡320-335万独享电梯厅+22㎡主卧套房E1宁屿142㎡342-360万双归家礼序+11㎡森语阳台

国企保障承诺

成都天投集团十年铸就公园系1号作品,承建兴隆湖、西博城等地标。物业为天府新区物协会长单位(管理面积500万㎡+),提供五星酒店式归家动线:

35米星空大门|双入户精装大堂|人车分流系统

A1集翠建筑面积约98㎡三室两厅双卫

LDK一体化空间 | 无界融合家庭时光动静分区 | 科学功能划分为生活加分全明三房 | 每个房间皆有阳光清风入怀创变功能空间 | 办公/收藏/娱乐随心安放

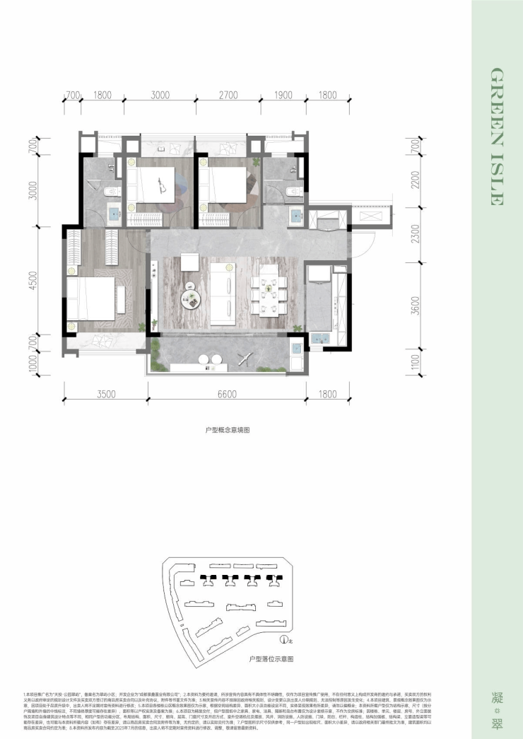
C1凝翠建筑面积约119㎡三室两厅双卫

独立厅式玄关 | 独立收纳空间,更高质的仪式感LDKG无界生活场 | 阔尺横厅,一体式环岛动线阔尺景观阳台 | 约6.6m全息视界,风光由眼入心阔绰套房主卧 | 独立衣帽间,度假酒店的就寝体验

D1森屿建筑面积约138㎡四室两厅双卫

独享电梯前厅 | 独立入户空间,尽享私家领域感LDKG有机生活空间 | 链接不同功能,让亲情更亲近森境花园阳台 | 外揽无界森境,内藏志趣花园约22㎡行政套房主卧 | 双向采光,比从容更尊崇

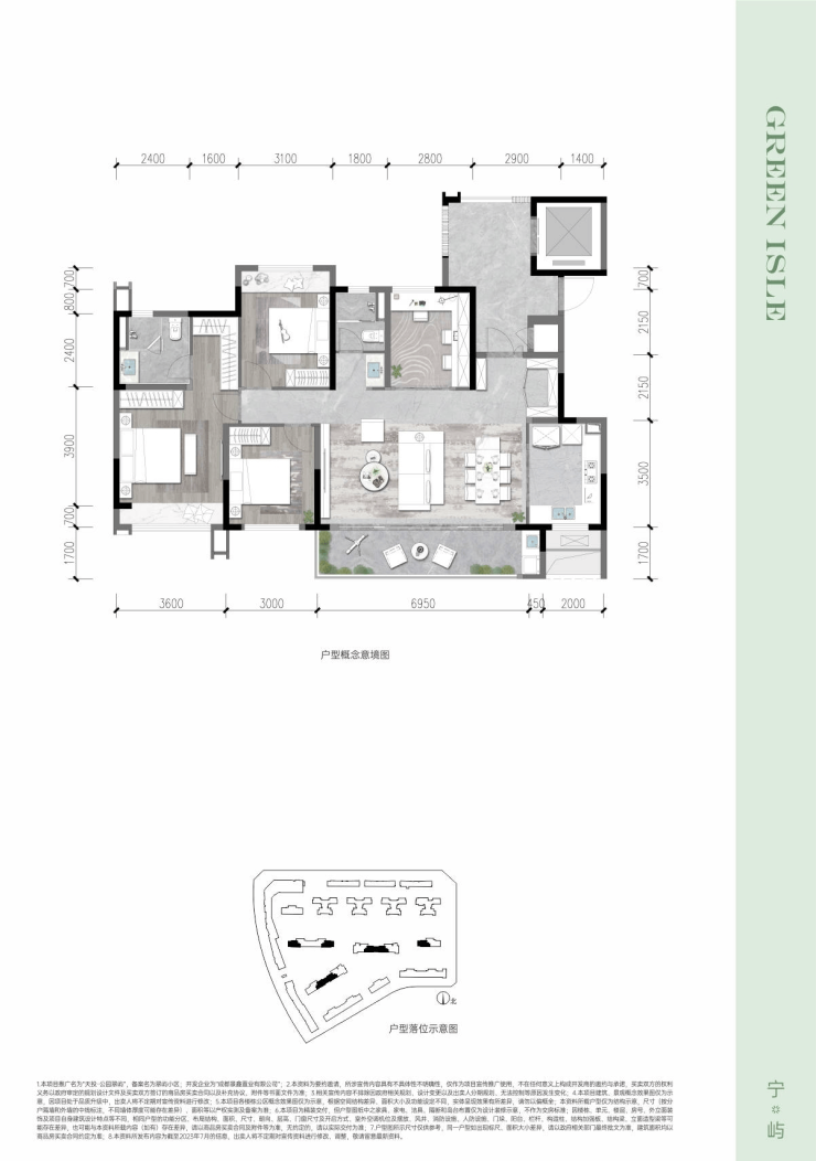
E1宁屿建筑面积约142㎡四室两厅双卫

双重归家礼序 | 电梯前厅、独立玄关,给生活仪式感LDKG一体化大空间 | 中岛式餐厅,待客生活皆有气度森语观景台 | 约11㎡宽幅阳台,静享园林优雅谧境行政套房主卧 | 卫浴间、衣帽间皆备,安放精致起居

【营销中心】:028-87777213「销售热线」

【置业顾问】:18613205563「微信同步」

【置业顾问】:19983517822「微信同步」

温馨提示:专业一对一热情服务,为了节约您的等待时间,看房请提前致电预约!!!

免责声明:

以上内容仅作为邀约邀请,涉及的图片为部分区域实拍图和美学畅想图,具体内容请以现场公示和合同约定为准;本文部分资料、部分图片来源于网络,如有侵权请联系我们删除。

声明:本文由入驻焦点开放平台的作者撰写,除焦点官方账号外,观点仅代表作者本人,不代表焦点立场。