【梓潼宫汀澜】选房指南-贷款利率-配套详情-营销热线-欢迎您
扫描到手机,新闻随时看
扫一扫,用手机看文章
更加方便分享给朋友
成都 梓潼宫汀澜【营销中心】:028-87777213「销售热线」
【置业顾问】:18613205563「微信同步」
【置业顾问】:19983517822「微信同步」
2025年6月20日贷款市场报价利率(LPR):1年期LPR为3.0%,5年期以上LPR为3.5%,以上LPR在下一次发布LPR之前有效。
和5月相比,6月份的LPR并无波动,意料之中,毕竟上个月LPR才降了10BP。
如果按照之前的首套房贷利率执行标准(LPR-60BP),成都最低首套房商贷将降至2.9%。
但现在,成都新受理按揭贷款,5年期以上个人住房贷款定价底线由LPR-60BP调整为LPR-50BP,目前执行利率依然3%。
已审过未放款的,部分银行按照审过执行3.5%-0.6%=2.9%,部分银行按照放款执行,会把利率调整为3.5%-0.5%=3%。
对于已放款客户,到利率调整日根据最新lpr -对应bp:
即,首套房最低房贷利率为(LPR-60BP)2.9%;二套房最低房贷利率为(LPR-30BP)3.2%。
【项目概况】开发商:成都郫都区梓橦轨道城市发展有限公司,地址:成都·郫都区·地铁6号线(梓潼宫站),名称:梓潼宫TOD|汀蘭,占地:362亩(6期打造),在售住宅:79亩(一号板块1-8栋),拿地时间:2022年,开盘:2023年11月,交房时间:2024年12月,总户数:324户,绿地率:33%,容积率:1.5,产品:纯板式公园洋房,面积:133㎡-139㎡-154㎡都是套四,单价:18800元/㎡起,总价:133㎡:260-280万,139㎡:280-300万,154㎡:340-360万(122m²有1楼部分房源套三价格200万起),154平:临河,临公园,楼层:7-9层,层高:2.95-3M;梯户比:1T2,车位比例:1:1.6,物业:轨道万科,物业费:3.5元,银行:商业贷款,支持组合贷,温馨提示:一期高层/小高层:全部已售馨

【项目总平】
【户型鉴赏】
【133㎡户型:套四】
【板式结构】一梯两户,板楼设计,通风效果佳,双面采光。【LDKG】厨房、客厅、餐厅、阳台四个空间融为一体,是真正的LDKG设计。【流线设计,动静分区】休闲娱乐,私密生活,都做到动静分区,老人房远离主卧,让3代人共同生活有良好的私密空间。【港式横厅】餐娱一体,增加与家人相处时光。【超大阳台】约7米面宽大进深阳台,约8.3㎡生活阳台,延伸多样化生活场景,区域内独一无二;【无浪费空间】多数动线纳入客户面积,零浪费空间。
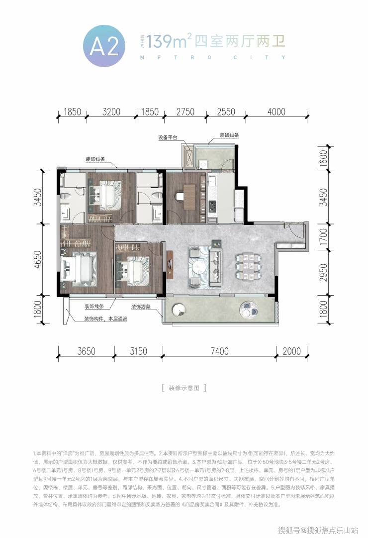
【139㎡户型:套四】
【入户收纳】:私人收纳展示区,区隔忙碌与舒适生活【流线设计,动静分区】:休闲娱乐,私密生活,都做到动静分区,老人房远离主卧,让3代人共同生活有良好的私密空间。【LDKG】LDKG一体化方厅设计,满足对空间多元化的需求。【双阳台】主城内少见贯通式阳台,约7.4M大进深阳台,连接客厅与次卧;双阳台,双面通透,双面采光。【无浪费空间】多数动线纳入客户面积,零浪费空间。
【154㎡户型:套四】
【L型阳台】:L型270°转角阳台,三面观景,一线河湾+园林景观,尽收眼底【端户瞰景】:端房户型,独享阔尺楼间距,保证客厅采光通风均好性,广角瞰景无遮挡,目之所及皆风景【尊享主卧】:约30㎡行政级主卧,阔尺衣帽间,约5.6米开间,私密性强【方正次卧】:3次卧户型方正,开间均达3.3米左右【LDKG 巨幕采光】:约18.9米巨幕采光面,客餐厅+主卧+次卧+生活阳台全部位于采光面
成都 梓潼宫汀澜【营销中心】:028-87777213「销售热线」
【置业顾问】:18613205563「微信同步」
【置业顾问】:19983517822「微信同步」
声明:本文由入驻焦点开放平台的作者撰写,除焦点官方账号外,观点仅代表作者本人,不代表焦点立场。
