广都鑫中心最新房价-线上销售中心-预约看房-营销热线
扫描到手机,新闻随时看
扫一扫,用手机看文章
更加方便分享给朋友
广都鑫中心【营销中心】:028-87777213「销售热线」
【置业顾问】:18613205563「微信同步」
【置业顾问】:19983517822「微信同步」
城市才具有抗风险能力,只有具备城市价值、城市概念的房子才最保值。
板块的价值,是由它的城市设计、形态规划、产业能级、投资强度,房地产总体的开发水平、定位共同决定的,不仅具备统一的价值属性,而且具备排他性。
当然,有些城市概念并不能完全转化成楼市概念,每一个行政区,都避免不了板块发育参差,无论是听起来很贵的高新区,还是老观念里穷搜搜的成华。但是这些地方的抗风险能力是很强的。
城市概念才能保住房价,而楼市概念只能随波逐流,只能拼行情,只能拼行情。
⭕【区域位置】位于成都市天府新区天府大道1888号,是智能化绿色长廊的菁英空间,含有高端酒店、文化会所及中高端商业配套的综合体物业。
🚗【交通配套】:双地铁上盖:1号线华阳站(300米)18号线海昌路站(400米)503 504 T205等二十条公交线路五纵四横立体网络五纵:剑南大道、益州大道、天府大道、梓州大道(科华路南延线)、成自泸高速;四横:三环路、绕城高速、华阳大道、麓山大道。
🎏【商业配套】:项目1-4楼自带30000方的上海协星星光商业体,-1楼大型超市盒马生鲜,-2至-4楼自带1661个停车位 。项目斜对面是家乐福购物中心项目南面300米是正在修建的三利广场,是集商务办公、综合购物、高端酒店、商业体验为一体的综合性购物广场,项目对面还有金地三期约70万方的大型商业综合体,周边还有沃尔玛山姆会员店、红星美凯龙、富森美等综合性商业,实现人居蓝本的同时,项目在后期还会迎来配套的再一次升级。
🏥【医疗配套】:拥有天府新区人民医院、四川石油总医院、玛利亚天府妇产儿童医院、天府新区安琪儿国际妇女儿童医院、四川省中西医结合医院、四川宝石花医院等。
🌴【生态娱乐】:项目旁边是海昌极地海洋公园、南湖梦幻岛,南湖湿地公园等。
🎓【优质教育】:金苹果幼儿园 天府四小 天府五小 天府实验小学 天府实验中学 天府实验外国语学校等。
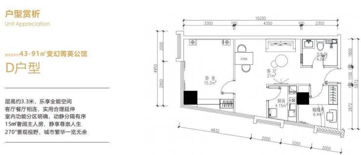
✅【多变户型】
【营销中心】:028-87777213「销售热线」
【置业顾问】:18613205563「微信同步」
【置业顾问】:19983517822「微信同步」
温馨提示:专业一对一热情服务,为了节约您的等待时间,看房请提前致电预约!!!
免责声明:
以上内容仅作为邀约邀请,涉及的图片为部分区域实拍图和美学畅想图,具体内容请以现场公示和合同约定为准;本文部分资料、部分图片来源于网络,如有侵权请联系我们删除。
声明:本文由入驻焦点开放平台的作者撰写,除焦点官方账号外,观点仅代表作者本人,不代表焦点立场。
