成都爱家春和凤鸣品质如何?爱家春和凤鸣怎么样?销售热线-楼盘详情
扫描到手机,新闻随时看
扫一扫,用手机看文章
更加方便分享给朋友
【营销中心】:028-87777213「销售热线」
【置业顾问】:18613205563「微信同步」
【置业顾问】:19983517822「微信同步」
温馨提示:专业一对一热情服务,为了节约您的等待时间,看房请提前致电预约!!!
免责声明:
以上内容仅作为邀约邀请,涉及的图片为部分区域实拍图和美学畅想图,具体内容请以现场公示和合同约定为准;本文部分资料、部分图片来源于网络,如有侵权请联系我们删除。
项目硬核价值点
1. 稀缺地铁盘属性
36亩小地块打造纯改善社区,2.5容积率实现2T2户纯板式结构,全楼栋距地铁口<200米,实测通勤数据领跑光华新城板块
2. 空间效能革命
116㎡三房创新设计:
独立电梯入户(附赠7.5㎡私有前厅)
6.4米南向横厅+10㎡景观阳台
H型厨房双动线衔接生活阳台
3. 区域红利捕捉
踞守青羊-温江融合带核心区,距青羊新城直线5公里,承接主城外溢资源:
1.5公里达鹏瑞利医疗中心
3公里覆盖伊藤洋华堂商圈
项目基础信息

核心通勤数据
轨交零距离:项目距地铁17号线凤溪河站C口直线150米(高德地图实测)
城市枢纽覆盖:
▶ 天府广场直线距离20公里
▶ 金融城直线距离25公里
▶ 双流国际机场直线距离18公里
产业带衔接:
▶ 青羊总部基地直线8公里
▶ 温江医学城直线6公里



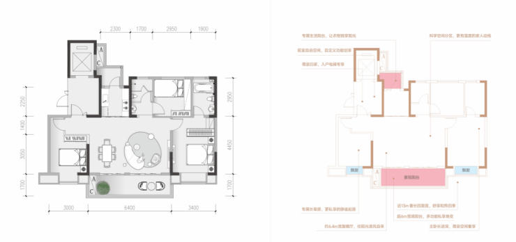
户型鉴赏B1:约116㎡三室两厅双卫(清水)电梯独立入户、纯板式结构、南北通透、得房率高

•2T2户,私享电梯厅,面积7.5㎡左右,具有简单的储物和收纳功能
•客厅横厅设计,全南向6.4米的开间,外接约10㎡的景观阳台,约40㎡的客餐区的空间
•厨房H型设计,烹煮区与备菜区独立设置,外接生活阳台,让衣物独享阳光
•经典三房,舒适尺度,优雅天成
【营销中心】:028-87777213「销售热线」
【置业顾问】:18613205563「微信同步」
【置业顾问】:19983517822「微信同步」
温馨提示:专业一对一热情服务,为了节约您的等待时间,看房请提前致电预约!!!
免责声明:
以上内容仅作为邀约邀请,涉及的图片为部分区域实拍图和美学畅想图,具体内容请以现场公示和合同约定为准;本文部分资料、部分图片来源于网络,如有侵权请联系我们删除。
声明:本文由入驻焦点开放平台的作者撰写,除焦点官方账号外,观点仅代表作者本人,不代表焦点立场。
