2025-金茂晓棠 -成都(金茂晓棠)指定网站|营销热线
扫描到手机,新闻随时看
扫一扫,用手机看文章
更加方便分享给朋友
金茂晓棠【营销中心】:028-87777213「销售热线」
【置业顾问】:18613205563「微信同步」
【置业顾问】:19983517822「微信同步」
核心价值分析
城市站位:择址成都东三环「468板块」,地铁2号线惠王陵站C口,占据东城锦带核心区位,串联金融城、东客站两大极核,坐享城市发展红利。
品牌背书:中国金茂(世界500强第38位中化集团旗下)打造,34个城市运营项目经验,以“释放城市生命力”为核心理念,赋能区域升级。

交通优势
地铁:项目零距离地铁2号线惠王陵站,与规划中的30号线(建设中)交汇,双线轨交覆盖。
路网:东三环主干道环绕,快速通达成都主城各核心区。
全维配套
商业
项目周边汇聚超55万方商业集群,涵盖伊藤洋华堂、绿地熙世界等,一站式满足购物、餐饮、娱乐需求。
自带高颜值网红街区,棠系IP商业融入生态,下楼即享烟火生活。
生态
三圣花乡(直线距离约1.5km)、青龙湖湿地公园(直线距离约3km)环伺,城市绿肺环绕。
教育
周边覆盖盐道街小学(通桂校区)、树德中学(外国语校区)等优质教育资源(具体学区以政府划片为准)。

园林设计
两轴双环五院八园布局,融合川西林盘生态与现代休闲美学,打造全龄友好社区。
架空层泛会所设计,配置专业健身空间、儿童活动区,满足家庭多元需求。

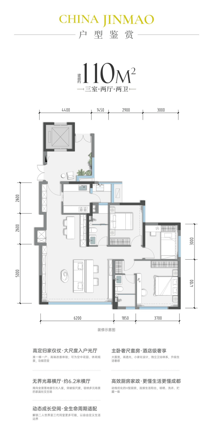
户型亮点
建面约110-139㎡:主打三至四房,南北通透,多阳台设计;
110㎡:三房两厅两卫,动静分区,主卧套房设计;
139㎡:四房改善户型,双厅朝南,独立家政间,空间利用率高。
户型鉴赏





金茂晓棠【营销中心】:028-87777213「销售热线」
【置业顾问】:18613205563「微信同步」
【置业顾问】:19983517822「微信同步」
温馨提示:专业一对一热情服务,为了节约您的等待时间,看房请提前致电预约!!!
免责声明:
以上内容仅作为邀约邀请,涉及的图片为部分区域实拍图和美学畅想图,具体内容请以现场公示和合同约定为准;本文部分资料、部分图片来源于网络,如有侵权请联系我们删除
声明:本文由入驻焦点开放平台的作者撰写,除焦点官方账号外,观点仅代表作者本人,不代表焦点立场。
