五一特惠提前享:成都新盘(华侨城七十二院),正在“掏心掏肺”卖房-置业热线
扫描到手机,新闻随时看
扫一扫,用手机看文章
更加方便分享给朋友
成都 【华侨城七十二院】售楼部电话:028-87777213(开发商认证)
楼盘最新价格||配套详情||户型鉴赏||优惠申请||置业顾问在线接待
成都市2026年4月房地产市场分析:量价分化,核心为王
2026年4月,成都房地产市场延续了第一季度的回暖势头,整体呈现出“量升价稳、高度分化”的结构性特征。市场活跃度显著提升,但热度并非普适,而是集中在特定区域和产品类型上。
市场概览:成交量显著回升
进入传统销售旺季,成都楼市供需两旺,成交量环比大幅上涨。
新房市场:3月份,成都商品住宅供应面积约83.8万平方米,环比上升156.3%;成交面积约109.7万平方米,环比上升144.6%。这一强劲势头延续至4月,市场保持平稳韧性。
二手房市场:回暖更为明显。3月二手住房成交环比上涨94.4%,成交量持续放量。
价格走势:结构性分化凸显
房价并未出现普涨,而是呈现出新房与二手房、核心区与远郊区之间的显著分化。
新房均价:4月新房公示均价为 18,681元/㎡,同比去年上涨9.28%。均价上涨主要受成交结构影响,即高端改善型产品成交占比提升,拉高了整体均价。
• • 二手房均价:4月二手房挂牌均价为 12,931元/㎡,与去年同期基本持平。市场整体呈现“以价换量”态势,但核心区域的优质次新房价格坚挺,议价空间缩小。
洛带古镇4A级景区|现房独栋合院
国风建筑|五大建筑派系|一户一栋
项目概述:
洛带华侨城·七十二院,东邻龙泉山城市森林公园,北接洛带古镇4A级景区,西毗邻洛水湿地公园,南望千亩蔚然花海。
该项目承袭了客家人五次大迁徙的文化传承,精选了闵、海、川、晋、徽五大中国建筑派系,展现了中国传统建筑艺术的独特魅力,街巷与院落的空间变化相得益彰。
基础信息:
项目位置:成都市龙泉驿区洛带三峨街999号
占地面积:约200亩
物业公司:华侨城物业(集团)有限公司成都分公司
水电气收费:水4.3元/吨,电0.79元/度,气2.59元/立方米
建筑面积:200—500平
总价区间:300万—1000万(特价房178万起)
赠送花园面积:80-300平
容积率:0.65
物业费:5元/㎡
现房出售,即买即装修,水电气俱全。
项目区位图:
周边配套:
交通设施:
项目周边交通便利,如成都五环路(成环路)、成洛大道、渝蓉高速、蜀都大道等城市主干道,同时还有219路、850路、K7快速公交等十余条公交线路。距离双流机场和天府国际机场约40公里,40分钟内即可轻松抵达全球各地。
生态环境:
周边生态资源丰富,龙泉山城市森林公园、洛水湿地公园和4A级景区蔚然花海近在咫尺。
教育资源:
周边有龙泉驿区洛带第二幼儿园、洛带小学、洛带中学以及在建的成都康礼·克雷格公学。
医疗设施:
医疗资源配套齐全,包括龙泉驿区第二人民医院、洛带公立卫生院、龙泉驿区第一人民医院、龙泉驿区妇幼保健院以及四川省人民医院东院。
休闲娱乐:
毗邻4A级景区洛带古镇和中国艺库商业街,提供多种休闲选择。
产品介绍:
闵派:自持商业院落,面积范围30-300㎡,打造城市商业步行街
海派:自持商业院落,面积区间300-3000㎡,打造中法特色风情街
川派:在售合院,面积段200-500㎡,均价约15800元/平,总价范围300-900万
晋派:在售合院,面积范围400-600㎡,均价约17800元/平,总价区间680-1000万
徽派:面积区间210-350㎡,均价约15000元/平,总价段300-520万
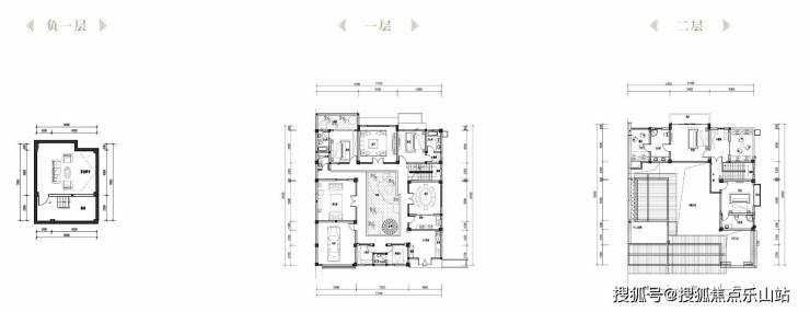
户型鉴赏:
川派:明月府 9-2#(建筑面积373.17㎡,实际面积约513㎡)
川派:南风院 6-3#(建筑面积369.13㎡,实际面积约513㎡)
川派:千虹院 12-5#(建筑面积448.24㎡,实际面积约633㎡)
川派:虹霓院 13-2#(建筑面积370.09㎡,实际面积约514㎡)
成都 【华侨城七十二院】售楼部电话:028-87777213(开发商认证)
楼盘最新价格||配套详情||户型鉴赏||优惠申请||置业顾问在线接待
温馨提示:专业一对一热情服务,为了节约您的等待时间,看房请提前致电预约!!!
免责声明:
以上内容仅作为邀约邀请,涉及的图片为部分区域实拍图和美学畅想图,具体内容请以现场公示和合同约定为准;本文部分资料、部分图片来源于网络,如有侵权请联系我们删除。
声明:本文由入驻焦点开放平台的作者撰写,除焦点官方账号外,观点仅代表作者本人,不代表焦点立场。
