成都新盘[科创岛U6]首页网站-楼盘详情-最新利率-销售中心
扫描到手机,新闻随时看
扫一扫,用手机看文章
更加方便分享给朋友
成都 科创岛U6【营销中心】:028-87777213「销售热线」
【置业顾问】:18613205563「微信同步」
【置业顾问】:19983517822「微信同步」
成都科创生态岛以全球设计+稀缺生态+顶级配套三重壁垒,打造产城融合标杆。其户型设计精准匹配高知人群对空间品质与生活效率的双重需求,叠加华西医疗、名校环伺的稀缺资源,具备长期资产保值潜力。
核心价值定位
世界级设计地标:由扎哈·哈迪德事务所领衔,联合丹麦HL集团、杨邦胜设计集团等全球顶尖团队打造,以"细胞团簇"建筑形态象征创新活力,集"聚、服、展、孵"功能于一体,定位为国家级科技成果转化高地与科学家会客厅。
稀缺生态资源:独踞湖岛天赋之地,私享约4500亩鹿溪河湿地公园及5100亩兴隆湖景观,形成"一湖三面环水+城市绿心无界衔接"的生态格局。
交通网络
轨道交通:
18号线兴隆站(约500米)、16号线成都科创生态岛站(规划中)、19号线蓝家店站(约1.2公里)、天府新站(在建,约2公里)。
城市路网:科学城北路/中路、天府大道、梓州大道等主干道环绕,蓉遵高速快速联通全城。
航空枢纽:
天府国际机场(约30公里)、双流国际机场(约25公里)。
全维配套体系
医疗资源
三甲级华西医疗集群:华西天府医院(约3公里)、华西牙科医院(约2.5公里)、华西附二院健康管理中心(约4公里)。
教育资源
公立学校:
小学E区:天府一小、十一学校小学部、在建实验小学湖畔路校区(均1-2公里范围内)。
初中C区:元音中学、七中育才中学(在建,年底投用)等,步行可达。
民办名校:天府七中(约2公里)、天府中学(约3公里)。
幼儿园:岛心幼儿园(规划中)、青羊幼儿园宝塘校区(在建,约1.5公里)。
商业与休闲
高端消费圈:
滨湖:方圆荟综合体、水下书店、黑珍珠餐厅银芭(均1公里内)。
岛心:9.4万㎡商业综合体+五星级酒店(规划中)。
周边:大悦城(已开业)、东鑫苑商业(7万㎡,在建)。
运动场景:8.8公里兴隆湖环湖跑道、水上运动中心、网球中心等全龄运动配套。


户型亮点
210㎡三房三卫
格局:三开间朝南,主卧套房+双次卧,独立家政间。
优势:约6米横厅设计,双阳台配置,兼顾社交与私密性。
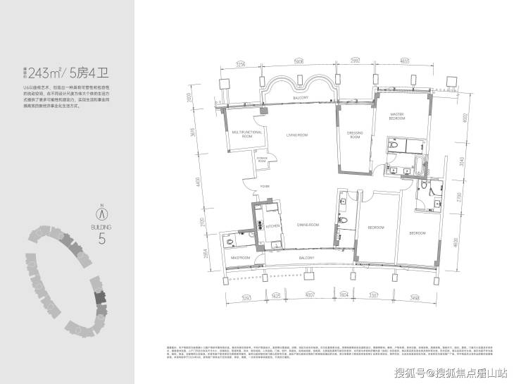
243㎡五房四卫
格局:四室+多功能书房,双套房设计。
亮点:中西双厨布局,约8米景观阳台,适合多代同住。
280㎡五房四卫(楼王户型)
升级点:独立玄关+工人房,270°转角厅,主卧配备衣帽间+双台盆浴室,奢享尺度。
全系户型采用"科创家居"理念,预留智能家居接口,部分房源享湖岛双景观视野。
声明:本文由入驻焦点开放平台的作者撰写,除焦点官方账号外,观点仅代表作者本人,不代表焦点立场。
