成都幸福桥TOD幸福拾光项目最新情况_幸福桥TOD幸福拾光售楼电话_在售户型_在售价格_预约看房

搜狐焦点乐山站 2025-06-18 10:07:35
用手机看
扫描到手机,新闻随时看

扫一扫,用手机看文章
更加方便分享给朋友

【营销中心】:028-87777213「销售热线」 【置业顾问】:18613205563「微信同步」 【置业顾问】:19983517822「微信同步」 温馨提示:专业一对一热情服务,为了节约您的等待时间,看房请提前致电预约!!!

【营销中心】:028-87777213「销售热线」

【置业顾问】:18613205563「微信同步」

【置业顾问】:19983517822「微信同步」

温馨提示:专业一对一热情服务,为了节约您的等待时间,看房请提前致电预约!!!

免责声明:

以上内容仅作为邀约邀请,涉及的图片为部分区域实拍图和美学畅想图,具体内容请以现场公示和合同约定为准;本文部分资料、部分图片来源于网络,如有侵权请联系我们删除。

在北部新城的价值高地,谁可以实现成都人购房#既要又要还要#的需求?

答案一定是位于北部新城C位的幸福桥TOD·幸福拾光。目前项目三期已开盘,作为值得下手的全优改善产品,重新定义了成都幸福生活的坐标。

就地段来说,幸福桥TOD·幸福拾光可谓天生C位。

金牛区 幸福桥TOD 清水准现房

金牛最火楼盘 #幸福桥TOD

金牛区、三环旁、准现房

1⃣️8⃣️3⃣️万起买套三双卫

正读人北、5/27号双地铁

108-125-134㎡百米楼间距

—————————————

🔥直接认购🔥直接认购🔥

2T3户小高,1T2户洋房

二期2T2户🏠已交房

在售面积:125-135-143-180㎡(二期)

108-110-112-134-143㎡(三期)

单价15999起 中间楼层均价17500元

【项目基本信息】

•开发商:成都轨道交通集团

•物业公司:成都轨道万科物业有限公司

•总占地700亩 /二期占地64亩/三期占地74亩

•项目区位:金牛区北部新城-地铁5#幸福桥站

•总层高:二期12-17F(一楼4.5米架空层无住宅)三期9-17F

•容积率:2.0

•绿化率:二期52% 三期35%

•梯户比:二期2T2 三期 1T2户2T3户

•物业费:3.8元

•停车位:二期1:1.6三期1:1.2

•交房时间:二期2024.8月三期2025.10月

•总户数:二期624户三期503户

•交付标准:清水洋房

•公摊:二期17-20% 三期16-19%

交通:5号线幸福桥站50米,在建地铁27号线石门坎站300米

商业:汇融广场、龙湖锦宸天街、

大都会、福地广场

教育:机关三幼、第十六幼儿园(蜀道园区)

人民北路小学天北校区、成都实验小学

公园:凤凰山露天音乐公园、凤凰山体育公园

医疗:三甲医院西部战区总医院,

金牛区中医医院(在建)

目前,幸福桥TOD·幸福拾光项目一期已实景交付,低密优越的中庭景观、优美挺拔的建筑立面等,兑现着所有关于家的美好。

据了解,项目近期已加推三期地块,该地块由14栋9F—17F小高层组成。项目整体采用围合式布局,以阔绰的楼栋间距,充分保证每一户的视野采光,增强居住的体验性。在这里,能享受一种城市、人、自然、社区无界融合的生活方式。

幸福桥TOD·幸福拾光项目3期总平示意图

出门即地铁站

交通、教育、医疗、商业、公园配套等,就在您家门口满足吃喝玩乐购&一应俱全,还是主城区最高配置

主城区•副中心·改善居住区·绝版清水洋房

超高绿化率52%·户户对中庭·高端品质业主圈层更纯粹

对于主城购房者而言,幸福桥TOD·幸福拾光无疑是可以“闭眼入”的代表。

为什么这么说?首先来看价格,当前5+2城区新房成交均价已达到26815元/㎡(数据来源:锐理数据),而幸福拾光三期最低单价仅约15999元/㎡起,放眼成都楼市,这样的价格极具竞争力。

其次,在价格因素之外,幸福桥TOD·幸福拾光以低密为法则,展示出高性价比的产品逻辑。购房者既能避免“刚需”尴尬的将就,也不需要承载高端改善高成本的压力,堪称区域的“性价比王者”。

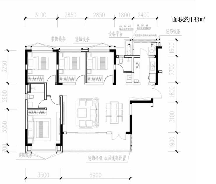
在售户型:

【营销中心】:028-87777213「销售热线」

【置业顾问】:18613205563「微信同步」

【置业顾问】:19983517822「微信同步」

温馨提示:专业一对一热情服务,为了节约您的等待时间,看房请提前致电预约!!!

免责声明:

以上内容仅作为邀约邀请,涉及的图片为部分区域实拍图和美学畅想图,具体内容请以现场公示和合同约定为准;本文部分资料、部分图片来源于网络,如有侵权请联系我们删除。

声明:本文由入驻焦点开放平台的作者撰写,除焦点官方账号外,观点仅代表作者本人,不代表焦点立场。