【梓潼宫TOD汀澜】售楼处电话-最新售价-户型分析-实景展示
扫描到手机,新闻随时看
扫一扫,用手机看文章
更加方便分享给朋友
成都 梓潼宫TOD汀澜【营销中心】:028-87777213「销售热线」
【置业顾问】:18613205563「微信同步」
【置业顾问】:19983517822「微信同步」
又出新政
自2026年1月1日至2027年12月31日,对出售自有住房并在现住房出售后1年内在市场重新购买住房的纳税人,对其出售现住房已缴纳的个人所得税予以退税优惠。其中,新购住房金额大于或等于现住房转让金额的,全部退还已缴纳的个人所得税;新购住房金额小于现住房转让金额的,按新购住房金额占现住房转让金额的比例退还出售现住房已缴纳的个人所得税。
卖点一:西3.5环墅质纯洋房,精装现房,即买即住
卖点二:背靠梓潼公园,坐享河湾资源
卖点三:万科物业,连续十年进入行业百强榜单
卖点四:金牛侯家桥板块与郫都犀浦新城板块交界处,百亩TOD超级大盘,区域发展成熟,配套全能完善
现房实景呈现,容积率1.5,总高7-9层纯洋房,1梯2户,纯板式结构,阵列式布局,约1:1楼间距,大面积玻璃幕墙立面,约2.4万㎡景观园林,5大主题中庭。
“四三三”立体网络,畅行通达全城
四轨:地铁2、6号线梓潼宫站距离项目300米;蓉2号有轨电车;成青高铁。
三纵:金牛大道、西华大道、西芯大道,连接郫都和主城。
三横:绕城高速、3.5环横向交通以及三环路,连通成都市周边区域。
1.梓潼幼儿园(约999M)、克莱贝尔幼儿园(约1.2KM)
2.犀浦小学(约300M)
3.郫都四中(约500M)国家级重点中学,犀浦外国语学校[初中部](约1.1KM)
三甲医院护航,家人健康无忧
西南医科大学附属成都三六三医院(直线距离约753M),国家三甲医院,全天候健康护佑。
购物商圈云集,汇聚万象繁华
1.自带下沉式商业体
2.四季城商业广场+龙湖商业(约1.2KM)
3.爱琴海购物广场(约1.6KM)
4.润扬双铁广场(约1.8KM)
5.百伦广场(犀浦店)(约1.8KM)
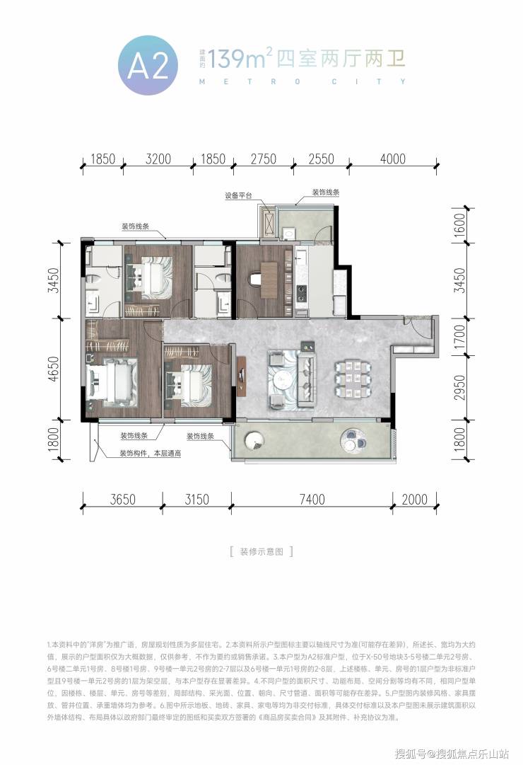
【139㎡户型:套四】
【入户收纳】:私人收纳展示区,区隔忙碌与舒适生活【流线设计,动静分区】:休闲娱乐,私密生活,都做到动静分区,老人房远离主卧,让3代人共同生活有良好的私密空间。【LDKG】LDKG一体化方厅设计,满足对空间多元化的需求。【双阳台】主城内少见贯通式阳台,约7.4M大进深阳台,连接客厅与次卧;双阳台,双面通透,双面采光。【无浪费空间】多数动线纳入客户面积,零浪费空间。
【154㎡户型:套四】
【L型阳台】:L型270°转角阳台,三面观景,一线河湾+园林景观,尽收眼底【端户瞰景】:端房户型,独享阔尺楼间距,保证客厅采光通风均好性,广角瞰景无遮挡,目之所及皆风景【尊享主卧】:约30㎡行政级主卧,阔尺衣帽间,约5.6米开间,私密性强【方正次卧】:3次卧户型方正,开间均达3.3米左右【LDKG 巨幕采光】:约18.9米巨幕采光面,客餐厅+主卧+次卧+生活阳台全部位于采光面
成都 梓潼宫TOD汀澜【营销中心】:028-87777213「销售热线」
【置业顾问】:18613205563「微信同步」
【置业顾问】:19983517822「微信同步」
声明:本文由入驻焦点开放平台的作者撰写,除焦点官方账号外,观点仅代表作者本人,不代表焦点立场。
