成都新房中粮武侯瑞府值得买吗?-中粮武侯瑞府年底大促-最新特惠政策-售楼电话
扫描到手机,新闻随时看
扫一扫,用手机看文章
更加方便分享给朋友
【营销中心】:028-87777213「销售热线」
【置业顾问】:18613205563「微信同步」
【置业顾问】:19983517822「微信同步」
温馨提示:专业一对一热情服务,为了节约您的等待时间,看房请提前致电预约!!!
免责声明:
以上内容仅作为邀约邀请,涉及的图片为部分区域实拍图和美学畅想图,具体内容请以现场公示和合同约定为准;本文部分资料、部分图片来源于网络,如有侵权请联系我们删除。
【核心价值】
主城稀缺墅院:
63亩纯低密住区,容积率仅1.09
武侯新城核心区位,距地铁3号线1公里
中粮集团TOP级"瑞府"产品线
立体交通网络:
地铁3号线双凤桥站1公里
地铁9号线武青南路站1.2公里
三环路/武侯大道快速通达全城
纯墅区品质住区:
220-260㎡天地合院(总价1200万起)
207-260㎡上下叠产品(总价670万起)
独立电梯入户,最高5.7米地下室层高
项目参数:
▸ 梯户比:1T1/1T2
▸ 绿化率:30%
▸ 车位比:1:2.4
▸ 物业费:5.2元/㎡
▸ 交付标准:清水现房
【配套体系】
教育:西川中学(1.5公里)、龙江路小学(2公里)
商业:武侯万达(2公里)、大悦城(3公里)
医疗:四川省妇幼保健院(3公里)
生态:永康森林公园(1公里)
【项目总平图】
【产品信息】
▶ 传世合院:
220-250㎡五至六房
40-260㎡私属花园
独立电梯厅设计
▶ 臻装叠墅:
207-260㎡四至五房
30-160㎡私家庭院
3.3-3.5米舒适层高

【传世孤品 天地合院】

独门独院,悠闲自赏,照见一方天地自然
独立电梯串连六重空间,随心即达各生活场域
奢阔主卧尊崇而居,全景阳台处处清闲
打造成为影音室、健身房、会客厅....游刃有余收藏全家志趣
花园里的会客厅,在自然中畅聊,欢笑与风景相融
【户型鉴赏】

[独立天地院子]
独门独院,悠闲自赏,照见一方天地自然
[奢华私家电梯厅]
独立电梯串连六重空间,随心即达各生活场域
[主卧总统套房]
奢阔主卧尊崇而居,全景阳台处处清闲
[负一层空间]
打造成为影音室、健身房、会客厅....游刃有余收藏全家志趣
[屋顶会客厅]
花园里的会客厅,在自然中畅聊,欢笑与风景相融

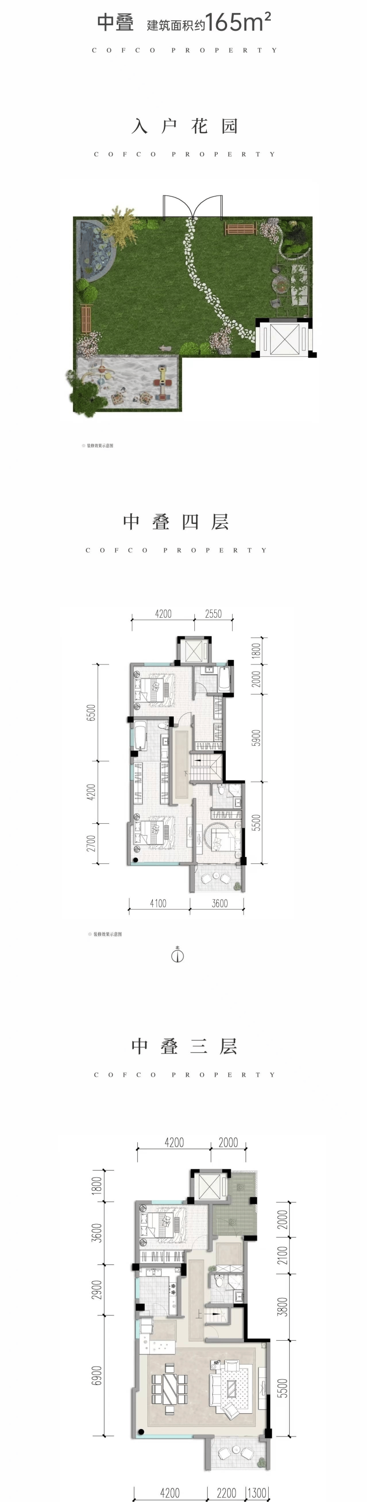
[独立花园入户]
中粮瑞府匠心著造,实现独特居住创想,让中叠也拥有院子
[奢华私家电梯厅]
独立电梯设计,一步即达归家,尽享私密与尊崇
[宽约7.7M阔尺横厅]
光影随处流淌,客厅连接露台,直迎风景入怀
[全套房设计]
独立安静休憩空间,盛载每一寸悠然时光



【营销中心】:028-87777213「销售热线」
【置业顾问】:18613205563「微信同步」
【置业顾问】:19983517822「微信同步」
温馨提示:专业一对一热情服务,为了节约您的等待时间,看房请提前致电预约!!!
免责声明:
以上内容仅作为邀约邀请,涉及的图片为部分区域实拍图和美学畅想图,具体内容请以现场公示和合同约定为准;本文部分资料、部分图片来源于网络,如有侵权请联系我们删除。
声明:本文由入驻焦点开放平台的作者撰写,除焦点官方账号外,观点仅代表作者本人,不代表焦点立场。
