成都新房首页-爱家春和凤鸣(成都)售楼处电话-楼盘最新价格-营销中心
扫描到手机,新闻随时看
扫一扫,用手机看文章
更加方便分享给朋友
爱家春和凤鸣【营销中心】:028-87777213「销售热线」
【置业顾问】:18613205563「微信同步」
【置业顾问】:19983517822「微信同步」
1. 双铁交汇,极速出行:距地铁口仅约100米,双地铁加持,轻松通达全城
2. 醇熟商业,举步即达:约50米直达大润发,周边生活配套完善,下楼即享繁华商圈
3. 纯板小高层,低密舒居:约107-116㎡纯板式结构,南北通透,采光通风极佳
4. 新规小户,私享尊荣:稀缺的2梯2户配置,无需久候电梯,私享独立入户玄关
5. 全能三房,灵动空间:户型方正实用,布局合理

【交通价值】TOD上盖+五横三纵1.双地铁口:距离地铁4号线/19号线凤溪河站仅50米;2.五横三纵:五横(成名高速、光华大道、南熏大道、温泉大道、成温邛快速路)三纵(四环路、凤溪大道及未来的五环路)
【教育价值】K12全年龄教育体系
K12院校5所:2KM内杨柳河小学、成师附属中学、成都七中涌泉校区、嘉祥外国语等全龄优教护航。
【医疗价值】三甲医院全覆盖
距离成都市第五人民医院地铁仅1站,15分钟内抵达温江人民医院、妇幼保健院、华西温江园区、人民医院温江分院5所知名医院环伺,保障健康生活。
【商业价值】坐拥恒大千万商圈1.一街之隔大润发(约50米)满足生活所需;2.1.5KM范围内大型商超齐聚(新光天地,合生汇,伊藤洋华堂,永辉超市等)
【生态价值】一河三公园自然滋养,静赏时光漫步一河:杨柳河一湖:温江区凤栖湖(约800米)三公园:文体公园、光华公园、温江城市公园(1.5km)。

【开发商简介】开发商:四川康和物业服务有限公司
1.成都本土开发商,成立于1997年,秉承专业建筑为基础,打造城市精品住宅为理念,公司已从事地产项目开发、运营、管理近30年。
精粹传承•底蕴承载,塑造高标迎宾的归家仪式以现代现代石材结合金属线条,约8.5米挑高星级门厅,营造气势恢宏的尊崇门礼,归家的第一道风景线。
一轴一心四园•多维场景,自然美学的生活艺术百米中轴长廊,拓宽阔尺视野,延展南北景观空间。核心景观点以镂空金属屏风与现代艺术廊架为主体,高定精雕业主私属的中央会客厅,构建舒适放松的社交场景。
一环三区•活力焕醒,让健康成为生活的坚守
约260米环形跑道,大自然里的健身房。康体运动区、全龄健身生活区、架空层活力馆,以及儿童云端滑梯与运动墙,更具活力的社区场景,打造楼下五分钟活动空间,为亲子家庭提供互动娱乐的交流场景。
镜面美学•城市封面,高端建筑质感大面宽Low-E玻璃,构建公建化外立面,镜面美学与品质石材相得益彰,筑就高品质感的建筑美学。
鎏金奢感•尊崇归家,双重星级入户首层空间与地下室均打造奢华体验的星级入户大堂,让业主从归家的那一刻起,便尽享尊荣。

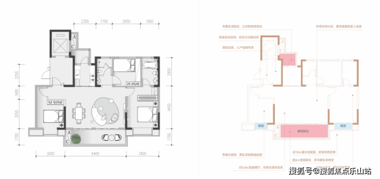
107㎡三室两厅两卫(清水),全2T2户,私享约独立入户;
116㎡三室两厅两卫(清水),全2T2户,私享约独立入户;

爱家春和凤鸣【营销中心】:028-87777213「销售热线」
【置业顾问】:18613205563「微信同步」
【置业顾问】:19983517822「微信同步」
温馨提示:专业一对一热情服务,为了节约您的等待时间,看房请提前致电预约!!!
免责声明:
以上内容仅作为邀约邀请,涉及的图片为部分区域实拍图和美学畅想图,具体内容请以现场公示和合同约定为准;本文部分资料、部分图片来源于网络,如有侵权请联系我们删除。
声明:本文由入驻焦点开放平台的作者撰写,除焦点官方账号外,观点仅代表作者本人,不代表焦点立场。
