【永盛和星悦府】楼盘预约热线-优惠申请-咨询电话-预约热线

搜狐焦点乐山站 2025-09-07 07:07:00
用手机看
扫描到手机,新闻随时看

扫一扫,用手机看文章
更加方便分享给朋友

成都 永盛和星悦府【营销中心】:028-87777213「销售热线」 【置业顾问】:18613205563「微信同步」 【置业顾问】:19983517822「微信同步」

成都 永盛和星悦府【营销中心】:028-87777213「销售热线」

【置业顾问】:18613205563「微信同步」

【置业顾问】:19983517822「微信同步」

2025年7月,成都新房价格环比下跌0.2%,同比上涨0.1%,成为全国仅有的5个同比转涨城市之一。

而二手房价格环比继续回落,环比下跌0.4%,同比下跌0.3%。

市场呈现“新房企稳、二手承压” 的结构性特征。

同时,8月20日,央行公布新一期LPR报价:2025年8月20日贷款市场报价利率(LPR):1年期LPR为3.0%,5年期以上LPR为3.5%,以上LPR在下一次发布LPR之前有效。

虽然仍然保持不变,不过根据多家中小银行密集发布存款利率调整公告来看,新一轮的降息,已经在路上了!

永盛和星悦府是由永盛和地产(成都)有限公司开发的高品质住宅项目,位于成都新都区天府大道北新门廊核心地段。项目定位为"青年活力轻奢社区",凭借优越的地理位置、完善的配套设施和人性化的户型设计,成为新都区中高端改善型置业的热门选择。

项目采用人车分流设计,行人从园区大门归家,车辆则从入口直接进入地下停车场,互不干扰,降低空间和噪音压力。小区规划8000㎡"星旅"主题园林,打造全龄网红运动空间,提供高品质的居住环境

交通配套分析

永盛和星悦府占据得天独厚的交通优势:

地铁:距离地铁5号线廖家湾站仅79米,可换乘7条地铁线路

公交:1公里范围内有13个公交站,最近的兴贸大道天柏路口站(西行)距离138米

路网:位于天府大道北新门廊,周边路网发达,多条主干道环绕,自驾出行便利

生活配套分析

项目周边生活配套完善,形成全能生活圈:

商业配套

双TOD商业体(廖家湾TOD+幸福桥TOD)

国际美博城(距离659米)

海宁皮革城(1.4公里)

万朵城(大型商业综合体)

医疗配套

成都北新医院(距离1043米)

新都区人民医院

新都区中医院

生态资源

约20平方公里毗河生态走廊

诺贝尔公园

源上湾公园

毗河湿地公园(在建)

口袋公园(市政公园)

教育配套分析

幼儿园:3公里内23个幼儿园,最近的廖家湾幼儿园一分园距离275米

小学:6所小学,包括旃檀小学、龙江路小学(2024年9月开学)等

中学:4所中学,如旃檀中学、新都一中等

高等教育:毗邻成都医学院、西南石油大学等高等学府

【项目总平】

项目主力产品为98-111㎡三居户型,采用先进的LDK一体化设计,实现空间最大化利用。主要户型亮点:

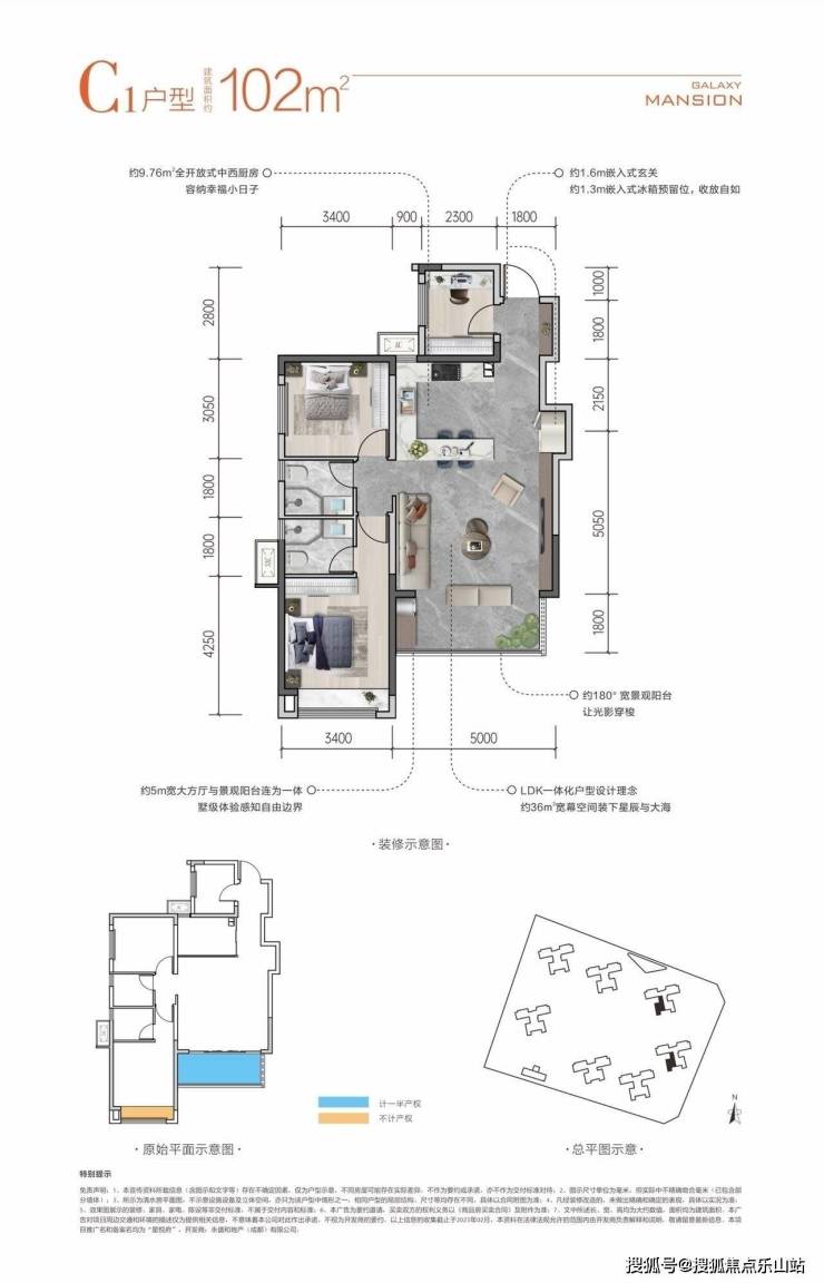
C1户型(102㎡三室两厅两卫)

南北朝向

约1.6米嵌入式玄关

约9.76平米全开放式中西厨房

约1.3米嵌入式冰箱预留位

LDK一体化设计

C2户型(102㎡三室两厅两卫)

南北朝向

约1.6米嵌入式玄关

约1.3米嵌入式冰箱预留位

LDK一体化设计

约36平米宽幕空间

B1户型(111㎡三室两厅两卫)

南北通透设计,双面采光

科学动静分区

270°观景阳台

约5米大宽厅

LDK一体化大宽厅

全开放中西双厨

所有户型均注重采光通风和动静分区,提升居住舒适度。精装交付标准包含新风、地暖、中央空调三大系统,体现项目的高品质定位

【户型鉴赏】

成都 永盛和星悦府【营销中心】:028-87777213「销售热线」

【置业顾问】:18613205563「微信同步」

【置业顾问】:19983517822「微信同步」

声明:本文由入驻焦点开放平台的作者撰写,除焦点官方账号外,观点仅代表作者本人,不代表焦点立场。