招商时代公园(成都)房价透明公示-户型分析-优惠申请-营销热线

搜狐焦点乐山站 2025-12-16 09:34:00
用手机看
扫描到手机,新闻随时看

扫一扫,用手机看文章
更加方便分享给朋友

成都 招商时代公园【营销中心】:028-87777213「销售热线」 【置业顾问】:18613205563「微信同步」 【置业顾问】:19983517822「微信同步」

成都 招商时代公园【营销中心】:028-87777213「销售热线」

【置业顾问】:18613205563「微信同步」

【置业顾问】:19983517822「微信同步」

招商时代公园占据天府新区核心区位,以“公园城市”为基底,融合POD+TOD+VOD的3D营城理念,打造生态、交通、商业、居住一体化的城市标杆。项目凭借成熟地段、稀缺生态资源、地标赋能、高性价比价格四大优势,成为天西改善市场的“六边形战士”。

核心价值分析

1. 区位价值:天西北高熟区,城市资源高位占有

天府CBD核心:位于天府总部商务区(天西),定位“未来城市新中心”,周边汇聚企业总部、国际会议中心、一带一路大厦(396m地标)、天府大悦城等高能级配套。

成熟度领先:相比天东,天西北侧开发更早,城市界面成熟,居住氛围纯粹,配套兑现度高。

公园环绕:三面(东/西/南)被人字绿廊公园环抱,小区与68亩绿地无缝衔接,容积率仅1.28,媲美低密别墅区。

交通优势:立体轨交枢纽,高效通勤

TOD枢纽:项目隶属招商时代公园TOD范围,规划5条轨道(6/16/19/26/S5号线),4大站点无缝接驳。

地铁便捷:19号线二期(直线约800米,已通车),快速链接双流机场、金融城等核心区域。

地下交通网:地下二层设12对车行通道,避免拥堵;地下三层直达轨交站点及城市候机厅。

配套资源:全能生活圈,奢配加持

商业

一街之隔为396m地标下的高定奢尚生活中心;

周边汇聚天府大悦城、花园城购物中心、保税中心等,满足高端消费需求。

生态

3450亩天府公园+2160米人字绿廊,打造“公园城市”天花板;

小区内部“川西十景”园林,借景318国道元素,实现沉浸式自然体验。

教育:天府七中、天府七小(直线约800米),优质教育资源环伺。

以成熟区位、公园资源、地标赋能、全能户型为核心竞争力,是天府新区稀缺的“确定性高端资产”。对于追求城市核心资源、低密生态居住体验的高净值人群而言,该项目是目前天西板块的首选改善标的。

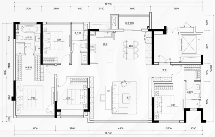
户型亮点

建面约143㎡(四房):主流改善面积,总价454万起,性价比极高;

建面约174㎡(四房):双面观景,南向面宽约15.8m,LDKG一体化方厅,主卧套间约30㎡;

建面约193-226㎡(T2大平层):专为高端客群定制,通透板式布局,奢阔空间尺度。

声明:本文由入驻焦点开放平台的作者撰写,除焦点官方账号外,观点仅代表作者本人,不代表焦点立场。