6月最新市场行情-明信四季东安楼盘详情-在售房价-明信四季东安销售中心
扫描到手机,新闻随时看
扫一扫,用手机看文章
更加方便分享给朋友
成都明信四季东安售楼处电话:028-87777213【营销中心】
☎【置业顾问】:18613205563「微信同步」☎
☎【置业顾问】:19983517822「微信同步」☎
城市才具有抗风险能力,只有具备城市价值、城市概念的房子才最保值。
板块的价值,是由它的城市设计、形态规划、产业能级、投资强度,房地产总体的开发水平、定位共同决定的,不仅具备统一的价值属性,而且具备排他性。
当然,有些城市概念并不能完全转化成楼市概念,每一个行政区,都避免不了板块发育参差,无论是听起来很贵的高新区,还是老观念里穷搜搜的成华。但是这些地方的抗风险能力是很强的。
城市概念才能保住房价,而楼市概念只能随波逐流,只能拼行情,只能拼行情。
基础信息
【总占地面积】(34亩)
【容积率】1.5
【总户数】276户
【总栋数】10栋
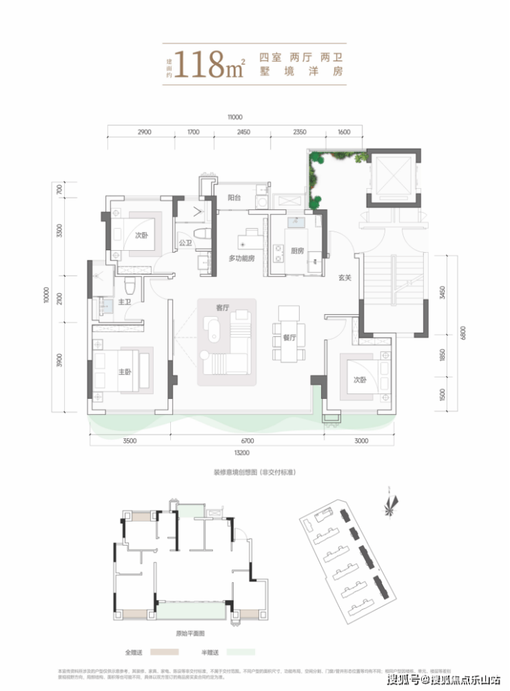
【产品类型】 洋房
【装修情况】首批次清水
【层高】7-11层
【梯户比】1T2
【交房时间】预计26年1月
【物业】 3元/月/㎡

坐拥一湖一山一园
一湖:成都·东安湖【5887亩】
世界级国家体育公园,围绕“一湖三岸”建设
一山:成都·龙泉山【海拔1051米】
国家城市森林公园,城市自然分界线
一园:成都·驿马河公园【1910亩】
城市中央公园,城市生态连廊,“天然氧吧”

5纵4横2轨多维立体交通
2轨:地铁2号线龙平路站(约1.5km)、地铁13号线(规划中);
5纵:蜀都大道、桃都大道中段、董朗路、桃源街、双龙路等;
4横:湖岸南路、桃都大道、红岭路、龙都路(5环路)。
4大商圈集群:1公里以内万达广场、永辉超市;2公里以内东方华大广场;3公里以内龙湖东安天街、吾悦广场等。
3大名校体系:东安湖学校(成都七中领办)、成都实验小学(和雅校区)、成都实验小学(乐雅校区)。5大优质学府:龙泉第七中学、驿马河第一幼儿园、常春藤龙都国际幼儿园、龙泉驿区第二小学、龙泉二中等,享一站式全龄优教。

1.5容积率纯洋房· 7F-11F全板式真洋房超强私密性,别墅级高端社区享受兼具现代时尚建筑立面以当代美学打磨时代高光

携手知名景观设计团队GVL怡境国际集团取意传世名画,诠释人文特色,结合现代精工手法凝练“溪山雅苑·行驿桃源”主题打造现代酒店式高定艺奢居住空间



成都明信四季东安售楼处电话:028-87777213【营销中心】
☎【置业顾问】:18613205563「微信同步」☎
☎【置业顾问】:19983517822「微信同步」☎
___欢迎来电咨询丨专业一对一热情服务丨看房需提前预约
——如有侵权请联系我们删帖——
温馨提示:为了节约您的等待时间,看房请提前致电售楼处预约!!!
声明:本文由入驻焦点开放平台的作者撰写,除焦点官方账号外,观点仅代表作者本人,不代表焦点立场。
