中铁卓著项目价格-售楼电话-户型鉴赏-线上预约

搜狐焦点乐山站 2025-08-30 09:20:00
用手机看
扫描到手机,新闻随时看

扫一扫,用手机看文章
更加方便分享给朋友

【营销中心】:028-87777213「销售热线」 【置业顾问】:18613205563「微信同步」 【置业顾问】:19983517822「微信同步」 温馨提示:专业一对一热情服务,为了节约您的等待时间,看房请提前致电预约!!!

【营销中心】:028-87777213「销售热线」

【置业顾问】:18613205563「微信同步」

【置业顾问】:19983517822「微信同步」

温馨提示:专业一对一热情服务,为了节约您的等待时间,看房请提前致电预约!!!

免责声明:

以上内容仅作为邀约邀请,涉及的图片为部分区域实拍图和美学畅想图,具体内容请以现场公示和合同约定为准;本文部分资料、部分图片来源于网络,如有侵权请联系我们删除。

【核心价值】

中铁·卓著位于天府科学城核心区,由中铁开发、龙湖智造联袂打造,主推88-143㎡精装华宅。项目坐拥双地铁(18/19号线)+华西医院顶级配套,享龙湖"尊享版"物业服务,是天府新区稀缺的"央企+龙湖"双品牌品质住区。

【通勤数据】轨交路网实测

地铁覆盖

18号线兴隆站丨步行600米(未来16号线换乘)

19号线蓝家店站(2024年开通)丨步行300米

主干路网

梓州大道/天府大道丨车行500米快速接入

科学城北路丨1公里直达兴隆湖

双机场距离

天府机场约30公里(18号线直达)

双流机场约28公里(经天府大道)

【配套实测距离】

教育医疗

天府教科院附小/附中(规划)丨项目北侧零距离

华西天府医院(三甲)丨车行3公里

生态商业

兴隆湖(5100亩)丨步行1公里

天府大悦城(2024年开业)丨地铁1站直达

科创资源

成都科学城丨直线500米

超算中心丨车行2公里

【三大核心优势】

双地铁红利:600米内双轨交汇(18/19号线),通达性天府新区TOP3

名校环伺:全龄段教育资源覆盖,含天府中学等5所名校

产品稀缺:科学城住宅用地仅占10%,且60%为人才公寓

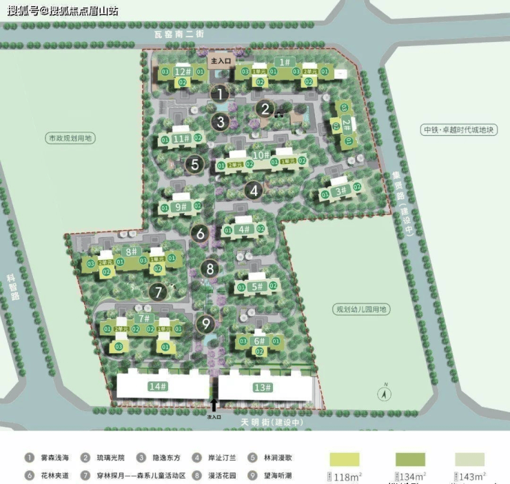
【产品力解析】

1. 基础指标

户型分布

88-108㎡三房:总价180万起,首置优选

128-143㎡四房:横厅设计+双套房,改善标杆

精装标准:含三大件(中央空调+新风+地暖)

物业:龙湖"尊享版"服务,费3.8-4.2元/㎡

2. 设计亮点

双品牌加持:中铁开发+龙湖智造,品质双重保障

低密住区:容积率2.5,楼间距超50米

户型鉴赏

【营销中心】:028-87777213「销售热线」

【置业顾问】:18613205563「微信同步」

【置业顾问】:19983517822「微信同步」

温馨提示:专业一对一热情服务,为了节约您的等待时间,看房请提前致电预约!!!

免责声明:

以上内容仅作为邀约邀请,涉及的图片为部分区域实拍图和美学畅想图,具体内容请以现场公示和合同约定为准;本文部分资料、部分图片来源于网络,如有侵权请联系我们删除。

声明:本文由入驻焦点开放平台的作者撰写,除焦点官方账号外,观点仅代表作者本人,不代表焦点立场。