2026成都中海云缦源境值得买吗?户型价格与配套全解析
扫描到手机,新闻随时看
扫一扫,用手机看文章
更加方便分享给朋友
成都 【中海云缦源境】售楼部电话:028-87777213(开发商认证)
【客户经理电话】:18613205563(微信同步)
【客户经理电话】:19983517822(微信同步)
楼盘最新价格||配套详情||户型鉴赏||优惠申请||置业顾问在线接待
2t2纯板式独立光厅入户
法务区地铁6号线百米直达
双TOD|万方法务岛绿廊
2025年1月4日,中国人民银行表示将择机降准降息,这是非常确定的事情。
业内普遍预计今年还有约50个BP的降幅,具体到房贷上,大概就会从目前的3%降低到2.5%左右,还贷压力进一步减轻。
这对买房来说,是特别重要的一件事,因为2.5%的房贷利率,已经基本可以和租售比持平,这也意味着,房租有可能覆盖贷款,买房的风险大大降低。
基础信息
总占地:93亩
总户数:871户
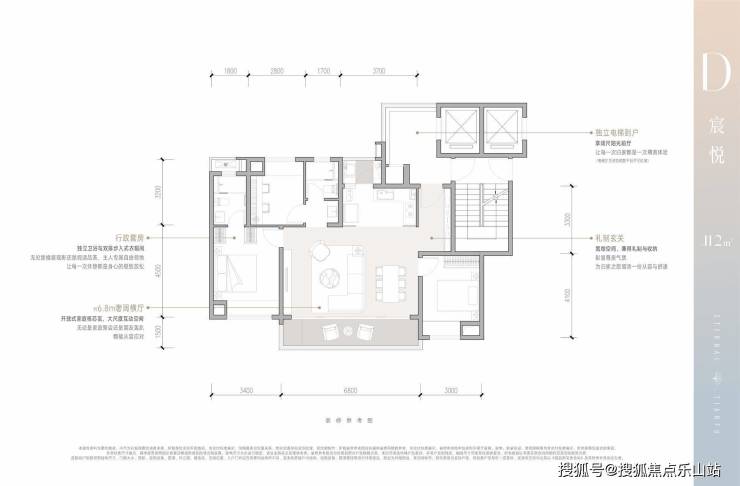
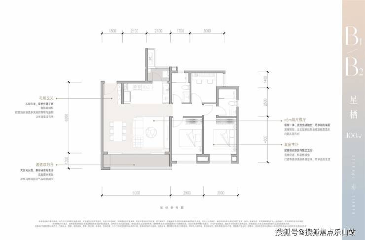
面积区间:100-103-112-132
楼层:7-17层
梯户比:1T2、2T2、2T4
容积率:2.0
交付时间:预计25年底
装修标准:2950元
物业:中海物业
坐享天府CBD&天府中央法务区双重区域优势
建面约100-132㎡公园艺境臻宅,首发成都
中海新南图 天府东翼2.0战略启新
2019年,以天府CBD人居地标-天府里启幕天府东翼1.0
2022年,于新川、麓山、中央法务区四子成川,全面焕新商务区板块人居风貌
中海云缦源境坐拥双区高能级配套,精粹生活圈,麓湖公园区-中央法务区-天府CBD聚合式铁三角,更有国际会议中心、中国西部国际博览城等世界级文化交流配套,大悦城等高阶商业配套,匹配您的丰盛生活。
【高阶商业】
天府大悦城、天府和悦广场、麓湖水镇、麓湖伊藤店(在建中),满足大型购物及居家消费需求,享受便捷生活。
【健康医疗】
近享四川省第二人民医院、四川天府新区人民医院(在建中)、四川大学华西天府医院等健康医疗
【全龄优教】
香山k12教育组团、成都市实验外国语学校、天府三中、麓山国际光亚学校等0-18岁全系教育资源丰富。
【项目规划】
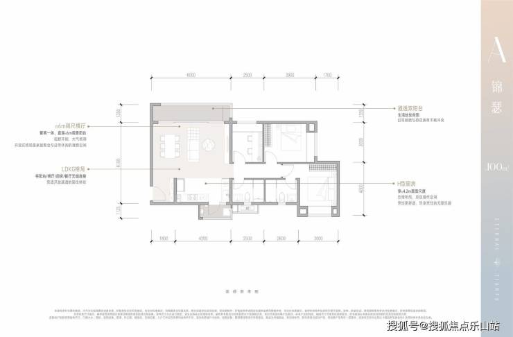
A户型 建面约100㎡三室两厅两卫
成都 【中海云缦源境】售楼部电话:028-87777213(开发商认证)
【客户经理电话】:18613205563(微信同步)
【客户经理电话】:19983517822(微信同步)
___欢迎来电咨询丨专业一对一热情服务丨看房需提前预约
——如有侵权请联系我们删帖——
温馨提示:为了节约您的等待时间,看房请提前致电售楼处预约!!!
声明:本文由入驻焦点开放平台的作者撰写,除焦点官方账号外,观点仅代表作者本人,不代表焦点立场。
