首页网站(大华湖畔里)值得买吗-售楼处电话-优惠申请
扫描到手机,新闻随时看
扫一扫,用手机看文章
更加方便分享给朋友
成都 大华湖畔里【营销中心】:028-87777213「销售热线」
【置业顾问】:18613205563「微信同步」
【置业顾问】:19983517822「微信同步」
展望2026年,随着政策红利的持续释放与行业转型的深化,成都房地产市场有望在结构性优化中迈向更高质量的发展阶段。
新房市场方面,全年成交面积约1191万㎡,虽较2024年同比略降约5%,但降幅已显著收窄,且成交规模(面积)稳居全国首位,韧性凸显。更关键的是,新房市场的“质升”特征尤为突出,套均面积达到约131㎡,中心城区套均面积更是突破136㎡,改善型需求已成为市场绝对主力。克而瑞数据显示,2025年成都千万级豪宅供应与成交均创下历史新高,成为拉动市场价值的核心引擎。

一、项目介绍:项目位于龙泉驿湖岸南路999号东安湖CAZ中央活力区国际商务中心(头排观湖领地)
二、区域战略:东进战略,国家战略,成渝双城经济圈、世界大学生夏季运动会2023年7月在东安新城召开,汇聚世界目光,打开成都未来发展空间
三、规划配套:5500亩东安湖生态公园、约1910亩驿马河公园、约32平方公里锦绣天府、全国最大城市森林公园龙泉山森林公园、东安阁酒店、木棉花酒店、图书馆、大剧院、新闻中心等配套环伺;大华·湖畔里占据东安湖中央活力区CAZ核芯位置,项目一线瞰湖高阶产品,引领区域高端商业和楼宇总部发展
四、交通:地铁2号线、20号线(规划中)、25号线(规划中)、桃都大道、湖低隧道、公交L11等,快速路+隧道+地铁+公交,四层级复合交通枢纽
五、学校:北大紫境幼儿园、启元幼儿园、向阳桥幼儿园、香港博瀚幼儿园、龙泉驿区第五小学校、经开区实验小学校、向阳桥小学、龙泉驿区第七小学校、成都龙泉二中、向阳桥中学、经开区实验中学、成都七中(东安湖校区)等
六、商圈:吾悦广场、龙泉万达、龙湖天街(建设中)、万象系商业综合体、世茂广场,永辉超市、沃尔玛等
七、医院:龙泉第一人民医院华西分院、龙泉妇幼保健院、四川省第三人民医院、龙泉驿区中医医院、华西医院(锦江分院)
八、公园:约5500亩东安湖生态公园、约1910亩驿马河公园、约32平方公里锦绣天府(龙泉欢乐田园)、龙泉山城市森林公园
九、其他:东安湖10.2公里环湖跑道、图书馆、大剧院、市民生活中心、科技馆、艺术馆、多功能体育馆、游泳馆以及博物馆
十、项目亮点:1、项目位于东安新城CAZ中央活力区国际商务中心,东安新城践行公园城市理念,打造一座中国风范、蜀川魅力、成都特色的公园城市。目前,CAZ中央活力区已入驻威马汽车全球研发中心、西门子中国研究院、浙江大华智慧城等集团总部,成为成都新一代高精尖的商务前沿中心,除此,东安阁七星级酒店、五星级木棉花酒店、五星级万豪酒店,都汇聚在东安新城。本项目也将作为引领区域高端商务和楼宇总部发展的重要承载地

2、既享受CAZ中央活力区的高规格、又享受城市CBD的生活配套、完善的交通、医疗、教育、商城所见即所得,约5500亩东安湖公园、约1910亩驿马河公园、背靠全球最大龙泉山城市森林公园
3、五星级入户大堂,地面全大理石水刀拼花、墙面干挂石材,镜面不锈钢硬包及金属镜面造型,菁装首层入户大堂,入户大堂约6米挑高,定制水晶吊灯,精雕细琢入户仪仗,用心铺排,动静相间营造极具尊贵的舒适体验
4、引鉴新加坡建筑理念,启幕城市窗格。外立面整体采用现代简约风格,以灰色、白色为主基调,大面积运用玻璃幕墙,呈现共建化立面高级感;部分外立面则以玻璃幕墙搭配石材、线条与建筑形成有意思的城市窗格,达到了一种丰富、有序、统一的姿态,形成强烈的品质感
5、区域稀缺产品、4.2米幻变空间、一线瞰湖区域、1.5公里人口超过10万+,知名集团总部、甲级写字楼具备丰富客群
6、德国蒂森克虏伯电梯,一线匹配一线。1000KG超大容量,速度达到2.5米/秒,2.3米电梯门,从细节处匹配业主的大气格局
7、一环五庭,六大景观节点,采用特定主题,打造个性化架空层,覆盖全龄日常需求,书写摩登都会美好理想一环:【曼云逐欢】(特色商业街+网红打卡公园);五庭:【都市之芯)(归家展示区)、【镜水云庭】(中庭会客区)、【林趣乐园】(全民健身区)、【轻氧沐林】(中庭会客区)、【林氧浮影】(宅间花园)
四大特色主题空间:【儿童主题】打造艺术化儿童游乐主题空间;【老年休闲】书法、棋牌、老年禅茶养生;【青年娱乐】KEEP健身、健身器械;【休闲会客】洽谈、会客、休闲
8、成都宝之源物业服务有限公司作为成都高端服务的物业样本,是一家从事物业管理、房地产经纪、房地产咨询等业务的公司。全天候24小时管家服务,12小时礼宾服务,宝之源物业让服务再一次被重新定义
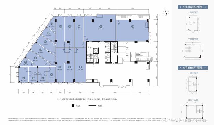
十一、户型鉴赏:
①建面约17-318㎡创富资产2-1号楼一层商业平面图
2-2号楼一层商业平面图
②建面约59.5㎡天际创客
【多样人生的灵动创变场域】突破空间束缚,承载N+1种美好可能科学动线规划,动静交互的极致体验日常功能完备,礼遇塔尖菁英峯层幻变双层天地,一半是静谧休憩场,一半是事业梦工厂
③建面约274㎡天际行宫
【全球通勤者的私人领域】私享电梯入户,美好畅享一触即发创想多元空间,办公休闲自由切换寰幕采光,全景视界一览无余轩朗奢境演绎圈层峯范,一城湖景尽收眼底
成都 大华湖畔里【营销中心】:028-87777213「销售热线」
【置业顾问】:18613205563「微信同步」
【置业顾问】:19983517822「微信同步」
声明:本文由入驻焦点开放平台的作者撰写,除焦点官方账号外,观点仅代表作者本人,不代表焦点立场。
