成都西璟台值得买吗?金秋国庆钜惠-售楼电话

搜狐焦点乐山站 2025-10-02 12:22:00
用手机看
扫描到手机,新闻随时看

扫一扫,用手机看文章
更加方便分享给朋友

【营销中心】:028-87777213「销售热线」 【置业顾问】:18613205563「微信同步」 【置业顾问】:19983517822「微信同步」 温馨提示:专业一对一热情服务,为了节约您的等待时间,看房请提前致电预约!!!

【营销中心】:028-87777213「销售热线」

【置业顾问】:18613205563「微信同步」

【置业顾问】:19983517822「微信同步」

温馨提示:专业一对一热情服务,为了节约您的等待时间,看房请提前致电预约!!!

免责声明:

以上内容仅作为邀约邀请,涉及的图片为部分区域实拍图和美学畅想图,具体内容请以现场公示和合同约定为准;本文部分资料、部分图片来源于网络,如有侵权请联系我们删除。

核心价值速览

坐标:郫都区主城西副中心,距地铁6号线望丛祠站1.5公里,有轨电车蓉2号线800米

产品:建面51-126㎡全系户型,单价待公布,总价门槛低至80万级

交通:高铁郫都西站2公里,驱车至高新西区约10公里,天府广场约25公里

配套:自建3.6万㎡商业街,蜀都万达广场3公里

开发保障:鹃城金控(国企)联合龙湖龙智造开发,金科物业(全国十强)服务

【地段价值】政企联袂,醇熟西郫都芯

项目占据郫都区政商文教核心区:

交通实测

有轨电车蓉2号线(800米),接驳地铁2/6号线。

成灌高速入口3公里,至金融城约20公里,春熙路约25公里。

商业资源

自建商业街(餐饮/酒店/休闲),龙湖蜀新天街(在建)直线2公里。

生态人文

望丛祠(蜀文化遗址),沱江滨水公园1公里。

【配套实测】全维菁英生活圈

教育

七中嘉祥外国语学校直线2公里,电子科技大学(清水河校区)约4公里。

医疗

华西上锦医院(三甲)车程约8公里,郫都人民医院约3公里。

商业

花样年奥特莱斯约3.5公里,百伦广场约4公里。

【半围合式布局 超大楼间距】

整体规划采用半围合式布局,约5000㎡中庭园林景观,享超大楼间距,互不遮挡

【建面约51-126㎡全系迭代户型 满足全生命周期居住需求】

A1户型:76㎡|2室2厅1卫

双阳台,观景&生活更加惬意;次卧大转角飘窗,空间利用率高

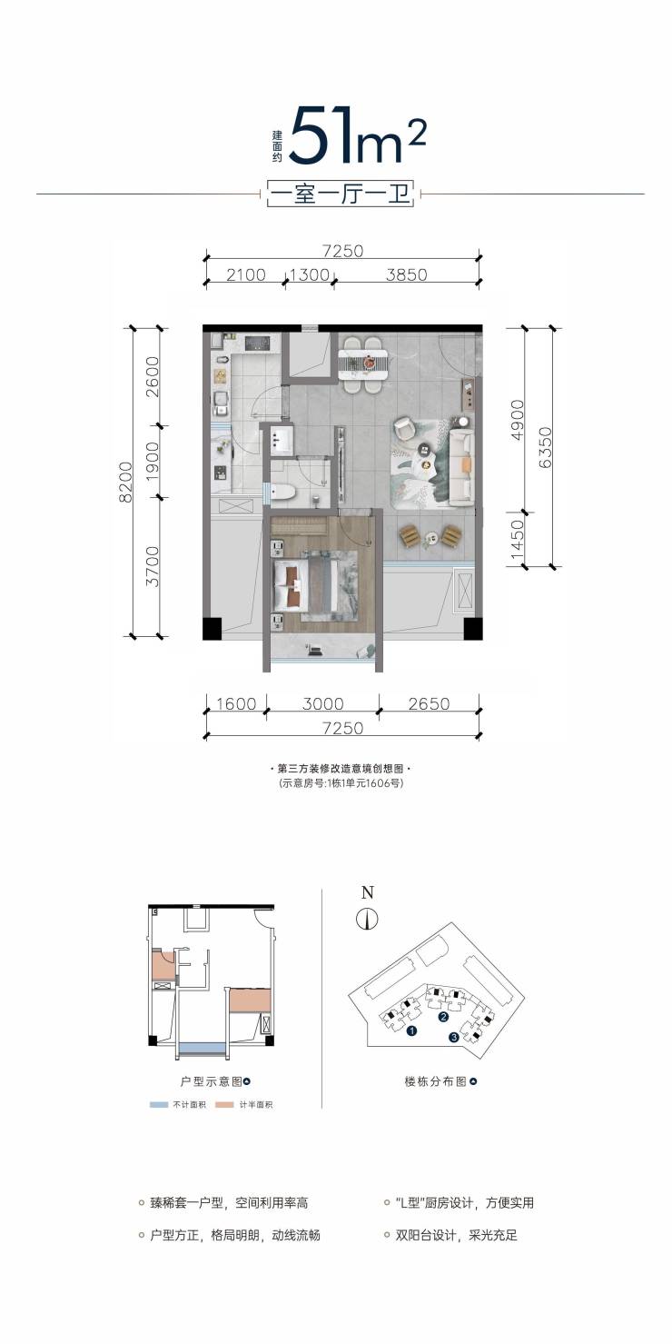
A2户型:51㎡|1室1厅1卫

臻稀套一户型,空间利用率高;户型方正,格局明朗,动线合理

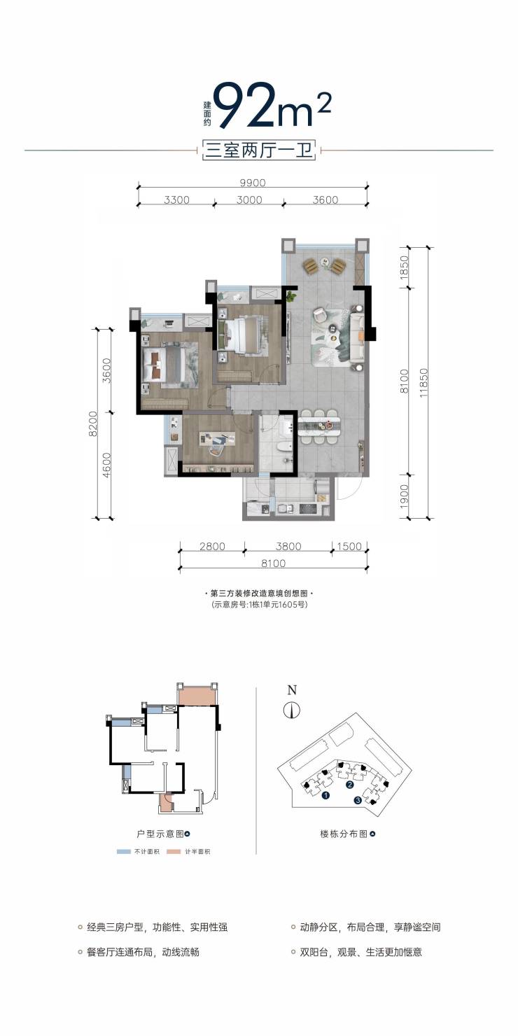
A3户型:92㎡|3室2厅1卫

经典套三户型,功能性、实用性强;动静分区,布局合理,享静谧空间

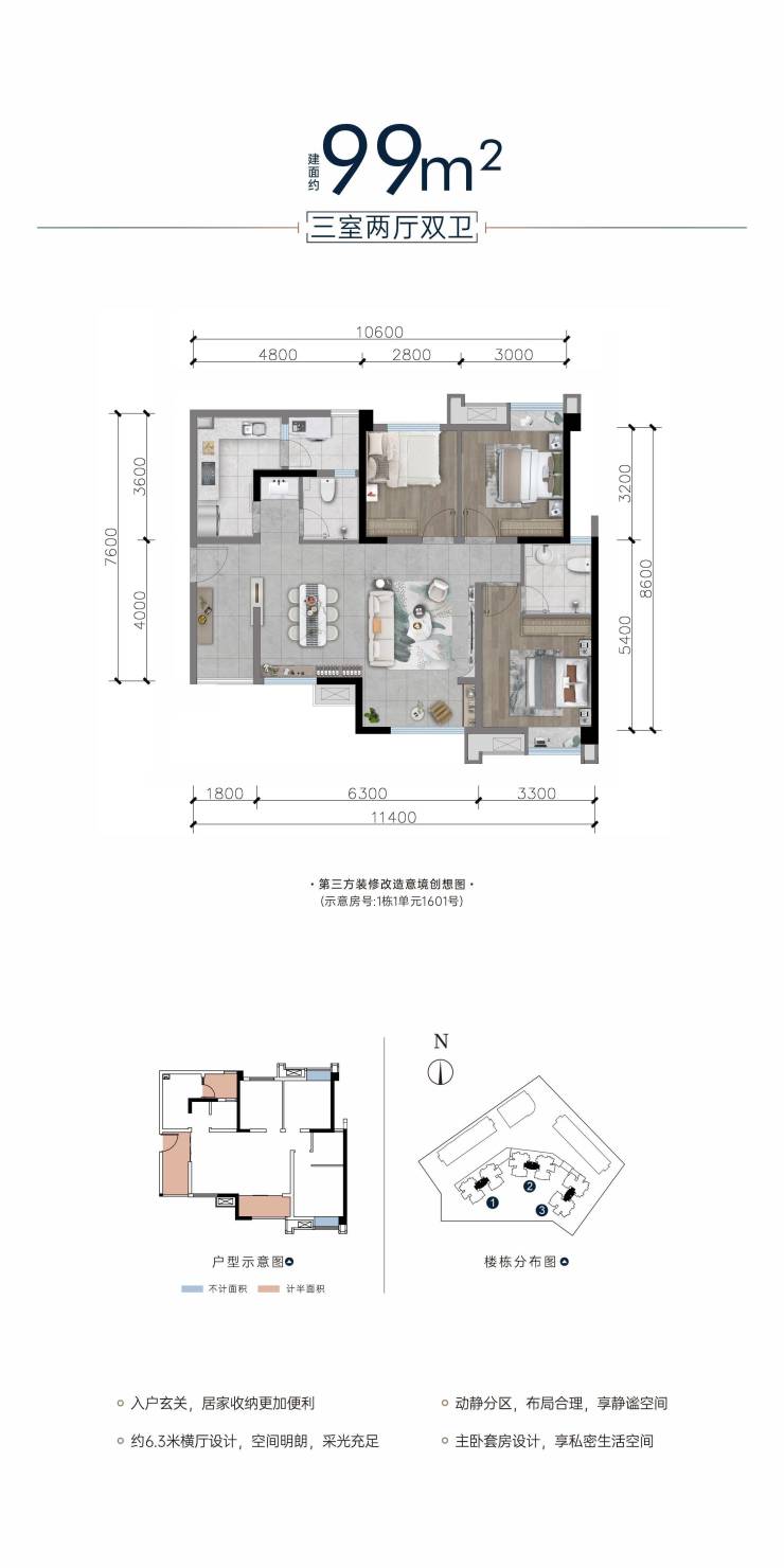
A4户型:99㎡|3室2厅2卫

入户玄关设计,增加收纳空间;约6.3米横厅设计,空间明朗,采光充足

A5户型:102㎡|3室2厅2卫

约7.8米横厅设计,视野开阔,采光充足;主卧套房设计,享私密生活空间

A6户型:126㎡|4室2厅2卫

阳光入户玄关,增加收纳空间;改善首选,高性价比四房空间

【营销中心】:028-87777213「销售热线」

【置业顾问】:18613205563「微信同步」

【置业顾问】:19983517822「微信同步」

温馨提示:专业一对一热情服务,为了节约您的等待时间,看房请提前致电预约!!!

免责声明:

以上内容仅作为邀约邀请,涉及的图片为部分区域实拍图和美学畅想图,具体内容请以现场公示和合同约定为准;本文部分资料、部分图片来源于网络,如有侵权请联系我们删除。

声明:本文由入驻焦点开放平台的作者撰写,除焦点官方账号外,观点仅代表作者本人,不代表焦点立场。