成都新盘[越秀湖与白]首页网站-楼盘详情-最新利率-销售中心
扫描到手机,新闻随时看
扫一扫,用手机看文章
更加方便分享给朋友
成都越秀湖与白售楼处电话:028-87777213【营销中心】
☎【置业顾问】:18613205563「微信同步」☎
☎【置业顾问】:19983517822「微信同步」☎
项目概况
开发商:广州越秀地产(千亿国企)
物业公司:广州越秀物业发展有限公司成都分公司
项目位置:成都市双流区华府大道四段1027号(怡心湖A区)
占地面积:约88亩
容积率:2.0
绿化率:35%
总户数:837户(24栋)
产品类型:10-17层小高层及洋房
梯户比:1T2/2T2
交付时间:2026年7月15日(部分精装交付)
稀缺湖居资源
项目距离怡心湖最近仅约300米,是板块内稀缺的湖景住宅。怡心湖作为成都城南第三代产业湖,以新加坡滨湖湾为样本,打造集产业、购物、休闲、教育和医疗为一体的新一代滨湖度假生活区。
低密度假社区
项目容积率仅2.0,采用T2板式布局,由稀缺17F瞰湖小高层和10-11F低密洋房组成,大部分为洋房产品,整体定位一线湖居低密洋房社区。规划上突破"五反":反高密、反混杂、反拥堵、反拥挤、反压抑
星级酒店式配套
双泳池会所:约153㎡夏日戏水池+约450㎡室内恒温泳池
下沉式会所:约1300㎡,包含私宴厅、影音厅、瑜伽室、健身房等
酒店式景观:1条酒店式度假景观轴,1条活力跑道,3大艺奢度假花园和12座主题花园
豪华入口设计:环岛落客+地下车库劳斯莱斯级星空顶入口及大堂+酒店级风雨连廊
交通配套分析
轨道交通
地铁5号线怡心湖站:距离约1.6公里
地铁19号线牧华路站:距离约680米(已运营)
道路交通
紧邻剑南大道快速路网
周边主要道路:牧华路、华府大道、怡飞大道、怡腾路
公交系统
周边2km内共有48个公交站
最近公交站"华府大道四段北站"距离仅390米
教育医疗配套
教育资源
幼儿园:周边3km内30所,如成都市双流区公兴幼儿园、双流区怡心第七幼儿园等
小学:周边3km内7所,如四川天府新区美岸小学、双流区协和实验小学、天府三小(成都龙江路小学天府校区)等
中学:周边3km内3所,如成都市双流区教科院附属学校(初中)、棠湖中学怡心实验学校等
医疗资源
周边3km内共有31个医院
主要医院:成都市第七人民医院、双流华府医院等
最近社区卫生站:成都市双流区怡心街道邵家店社区卫生站
商业休闲配套
商业设施
周边3km内3个商场:成都翡翠公园万科里、中海天府环宇坊、鑫苑摩邻天地等
周边3km内234个超市
未来配套:约20万㎡银泰Inpark城市级商业综合体
休闲设施
周边3km内11个公园:湖滨公园西广场、瞪羚湖等
项目二期东面紧邻华府体育公园,一期南面直面瞪羚湖
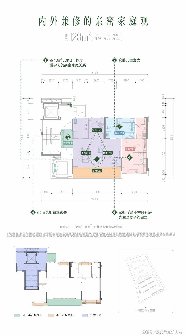
项目主打128-178㎡全四房纯改户型,均为改善型产品5。
主力户型亮点
128㎡四房:
近40㎡LDKB超大公区
约7.4米景观阳台
原创三厅设计(学习中心、家人用餐/休闲中心和阳光中心)58
143㎡四房:
9米阔尺阳台
约60㎡超级大动区
创新三厅布局,媲美200㎡空间体验58
(注:次卧空间稍显局促)5
178㎡四房:
奢阔平层设计
电梯直达
户户享有开阔景观视野
成都越秀湖与白售楼处电话:028-87777213【营销中心】
☎【置业顾问】:18613205563「微信同步」☎
☎【置业顾问】:19983517822「微信同步」☎
___欢迎来电咨询丨专业一对一热情服务丨看房需提前预约
——如有侵权请联系我们删帖——
温馨提示:为了节约您的等待时间,看房请提前致电售楼处预约!!!
声明:本文由入驻焦点开放平台的作者撰写,除焦点官方账号外,观点仅代表作者本人,不代表焦点立场。
