中海云缦源境项目深入解析-线上预约看房-专属优惠通道-渠道优惠
扫描到手机,新闻随时看
扫一扫,用手机看文章
更加方便分享给朋友
成都中海云缦源境售楼处电话:028-87777213【营销中心】
☎【置业顾问】:18613205563「微信同步」☎
☎【置业顾问】:19983517822「微信同步」☎
又出新政
自2026年1月1日至2027年12月31日,对出售自有住房并在现住房出售后1年内在市场重新购买住房的纳税人,对其出售现住房已缴纳的个人所得税予以退税优惠。其中,新购住房金额大于或等于现住房转让金额的,全部退还已缴纳的个人所得税;新购住房金额小于现住房转让金额的,按新购住房金额占现住房转让金额的比例退还出售现住房已缴纳的个人所得税。
2t2纯板式独立光厅入户
法务区地铁6号线百米直达
双TOD|万方法务岛绿廊
2025年1月4日,中国人民银行表示将择机降准降息,这是非常确定的事情。
业内普遍预计今年还有约50个BP的降幅,具体到房贷上,大概就会从目前的3%降低到2.5%左右,还贷压力进一步减轻。
这对买房来说,是特别重要的一件事,因为2.5%的房贷利率,已经基本可以和租售比持平,这也意味着,房租有可能覆盖贷款,买房的风险大大降低。
基础信息
总占地:93亩
总户数:871户
面积区间:100-103-112-132
楼层:7-17层
梯户比:1T2、2T2、2T4
容积率:2.0
交付时间:预计25年底
装修标准:2950元
物业:中海物业
坐享天府CBD&天府中央法务区双重区域优势
建面约100-132㎡公园艺境臻宅,首发成都
中海新南图 天府东翼2.0战略启新
2019年,以天府CBD人居地标-天府里启幕天府东翼1.0
2022年,于新川、麓山、中央法务区四子成川,全面焕新商务区板块人居风貌
中海云缦源境坐拥双区高能级配套,精粹生活圈,麓湖公园区-中央法务区-天府CBD聚合式铁三角,更有国际会议中心、中国西部国际博览城等世界级文化交流配套,大悦城等高阶商业配套,匹配您的丰盛生活。
【高阶商业】
天府大悦城、天府和悦广场、麓湖水镇、麓湖伊藤店(在建中),满足大型购物及居家消费需求,享受便捷生活。
【健康医疗】
近享四川省第二人民医院、四川天府新区人民医院(在建中)、四川大学华西天府医院等健康医疗
【全龄优教】
香山k12教育组团、成都市实验外国语学校、天府三中、麓山国际光亚学校等0-18岁全系教育资源丰富。
【项目规划】
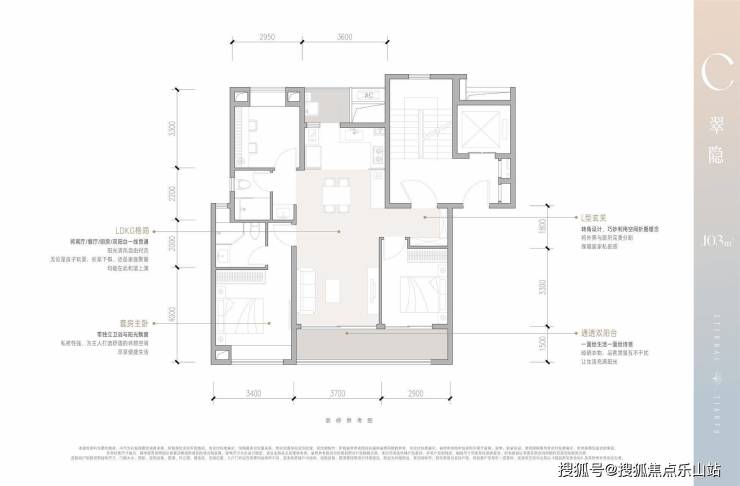
A户型 建面约100㎡三室两厅两卫
成都中海云缦源境售楼处电话:028-87777213【营销中心】
☎【置业顾问】:18613205563「微信同步」☎
☎【置业顾问】:19983517822「微信同步」☎
___欢迎来电咨询丨专业一对一热情服务丨看房需提前预约
——如有侵权请联系我们删帖——
温馨提示:为了节约您的等待时间,看房请提前致电售楼处预约!!!
声明:本文由入驻焦点开放平台的作者撰写,除焦点官方账号外,观点仅代表作者本人,不代表焦点立场。
