爱家春和凤鸣咨询热线-年末清盘房源-价值分析
扫描到手机,新闻随时看
扫一扫,用手机看文章
更加方便分享给朋友
爱家春和凤鸣【营销中心】:028-87777213「销售热线」
【置业顾问】:18613205563「微信同步」
【置业顾问】:19983517822「微信同步」
项目基础信息
项目名称:爱家春和凤鸣
项目占地:约36亩
总栋数:8栋住宅
在售产品:98㎡/107㎡/109㎡/116㎡(纯三房设计)
总层高:17F(小高层)/25F
容积率:2.5 | 绿化率:30%
物业公司:成都市泰达物业管理有限公司
物业费:2.1元/㎡/月
车位比:1:1.44
梯户比:2T2/2T3
装修情况:清水交付
交房时间:预计2026年6月

核心价值分析
1. 交通便捷·双地铁覆盖
地铁:项目步行可达凤溪河地铁站(4号线、19号线双线交汇),高效串联全城。
路网:紧邻凤溪大道、光华8线、光华大道、成温邛高速,快速通达主城各区。
2. 商业繁华·生活便利
核心商圈:周边汇聚新光天地、合生汇、伊藤洋华堂、永辉超市等,满足高端购物需求。
日常配套:下楼即达大润发,生活采买轻松便捷。
3. 生态宜居·公园环绕
自然景观:毗邻杨柳河生态走廊,周边光华公园、凤栖湖中央公园、温江公园环伺,推窗见绿,漫步即达。
4. 优质教育·书香氛围
中小学:川师温江附属学校、东一杨柳河小学、嘉祥外国语学校等优质学府,助力成长。
高校资源:临近西南财经大学、成都师范学院,人文氛围浓厚。
5. 医疗护航·健康无忧
医疗配套:温江区中医院、成都市第五人民医院等优质医疗资源,保障家人健康。


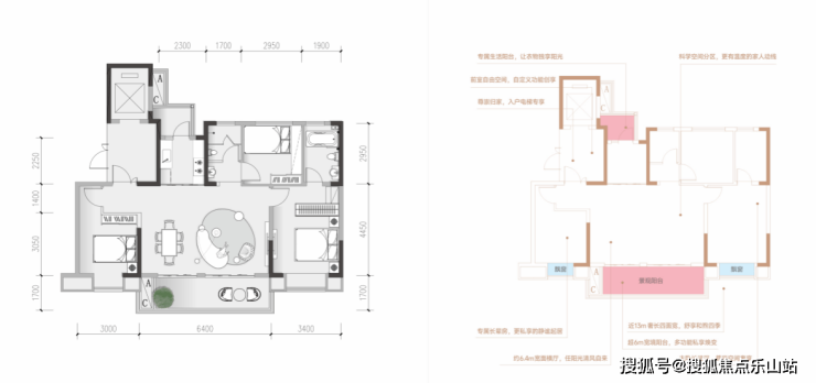
户型解析(B1 116㎡三室两厅双卫)
亮点:
电梯独立入户,私密性佳;
纯板式结构,南北通透,采光通风优越;
高得房率,空间利用率高;
功能布局:三房设计,主卧套间+双卫,满足家庭多样化需求。

爱家春和凤鸣【营销中心】:028-87777213「销售热线」
【置业顾问】:18613205563「微信同步」
【置业顾问】:19983517822「微信同步」
温馨提示:专业一对一热情服务,为了节约您的等待时间,看房请提前致电预约!!!
免责声明:
以上内容仅作为邀约邀请,涉及的图片为部分区域实拍图和美学畅想图,具体内容请以现场公示和合同约定为准;本文部分资料、部分图片来源于网络,如有侵权请联系我们删除。
声明:本文由入驻焦点开放平台的作者撰写,除焦点官方账号外,观点仅代表作者本人,不代表焦点立场。
