卡地亚湖滨壹号(成都)房价透明公示-户型分析-优惠申请-营销热线
扫描到手机,新闻随时看
扫一扫,用手机看文章
更加方便分享给朋友
成都 卡地亚湖滨壹号【营销中心】:028-87777213「销售热线」
【置业顾问】:18613205563「微信同步」
【置业顾问】:19983517822「微信同步」
—天府怡心湖核心,国际湖滨生活范本
【核心价值分析】
品牌价值
蔚蓝卡地亚高端基因,打造成都塔尖人居标杆,兼具收藏价值与身份象征。
城市站位
占据天府怡心湖板块中心,北接金融城、南连天府总部商务区,西临自贸区+国际生物城,聚合城市发展势能。
稀缺资源
千亩湖滨公园+500亩湖域景观,270°—360°全景视野,成都罕有低密湖居资产。
国际设计
新加坡国宝级大师SooK Chan领衔设计,全球顶尖团队(SCDA、PLD等)操刀建筑、灯光及商业规划,公建化立面+蒙德里安美学中庭。
【交通优势】
地铁:5号线+19号线(怡心湖站)双地铁TOD,无缝接驳双流/天府国际机场。
主干道:剑南大道+五环路纵横,快速直达金融城(约8km)、天府CBD(约10km)。
航空:距双流国际机场约12km,天府国际机场约35km。
【配套资源】
商业
北岸/南岸商业+地铁枢纽商业集群,3大国际级商业体环绕。
文旅
2.7km湖岸线地标建筑群、湖滨文化艺术中心(曾仕乾设计)、双五星酒店(凯悦Alila+尚萃)。
生态
千亩怡心湖公园,步行即达湖滨慢行系统。
教育
周边规划国际学校(具体以教育局公示为准),3km内覆盖优质公立教育资源。
【产品力解析】
奢装配置
国际一线品牌:斯麦格厨电、杜拉维特卫浴、汉斯格雅五金,精装交付彰显品质。
公区服务
每栋配备星级大堂、恒温泳池、健身房、咖啡图书区,提供私人管家服务(保洁、定制宴请、物业托管等)。
梯户比
3梯1户至3梯4户,3.4米-3.9米层高,极致舒适度。
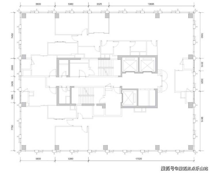
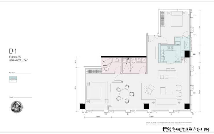
【户型鉴赏】
一户一层,整层630㎡
成都 卡地亚湖滨壹号【营销中心】:028-87777213「销售热线」
【置业顾问】:18613205563「微信同步」
【置业顾问】:19983517822「微信同步」
温馨提示:专业一对一热情服务,为了节约您的等待时间,看房请提前致电预约!!!
免责声明:
以上内容仅作为邀约邀请,涉及的图片为部分区域实拍图和美学畅想图,具体内容请以现场公示和合同约定为准;
声明:本文由入驻焦点开放平台的作者撰写,除焦点官方账号外,观点仅代表作者本人,不代表焦点立场。
