成都新房云缦源境最新房贷利率丨中海云缦源境小区档次丨中海云缦源境能买吗
扫描到手机,新闻随时看
扫一扫,用手机看文章
更加方便分享给朋友
【营销中心】:028-87777213「销售热线」
【置业顾问】:18613205563「微信同步」
【置业顾问】:19983517822「微信同步」
温馨提示:专业一对一热情服务,为了节约您的等待时间,看房请提前致电预约!!!
中国人民银行授权全国银行间同业拆借中心公布,2024年10月21日贷款市场报价利率(LPR)为:1年期LPR为3.1%,5年期以上LPR为3.6%。以上LPR在下一次发布LPR之前有效。
最新房贷利率如下:
住宅首套:利率𝟯.𝟬%(首付𝟭𝟱%)
住宅二套:利率𝟯.𝟯%(首付𝟭𝟱%)
公积金首套利率𝟮.𝟴𝟱%(首付𝟮𝟬%)
公积金二套利率𝟯.𝟯𝟮𝟱%(首付𝟯𝟬%)
02887777213
112-132㎡2T2独立光厅入户,103平目前可缴纳诚意金,特惠总价200w起
基础信息
总占地:93亩(1、2、3号地块)
总户数:871户
面积区间:100-103-112-132
首开:1地块2.4号楼、2地块1.2号楼
楼层:7-17层
梯户比:1T2、2T2、2T4
绿化率:35%
容积率:2.0
交付时间:预计25年底
装修标准:2950元
物业:中海物业(物业费:待定)
🏙坐享天府CBD&天府中央法务区双重区域优势
建面约100-132㎡公园艺境臻宅,首发成都

【品牌简介】
央企中海 稳健经营 领航行业标准
中海地产:隶属于世界500强第9位中国建筑工程总公司,连续18年获中国蓝筹地产企业、中国房地产行业领导品牌,2023年荣获中国房企交付力第1名。主流市场市占率、现金充裕度、信用评级等在内的十项指标行业领先,是全行业唯一获得国际评级机构给予A级评级的企业。中海地产匠心筑造城市各个区域标杆,中海品牌项目在同区域同类别产品中,二手房价相对更高。
中海物业:中海物业成立于1986年,是中国首批获得一级资质的物业管理品牌。截至2023年12月31日,中海物业服务范围覆盖港澳及内地164个主要城市、1999个物业项目、服务业主850万客户、在管面积超4亿平方米,超100家世界500强企业指定物业服务商。在成都国家级文旅项目宽窄巷子、熊猫基地、文殊坊、天府美术馆等也是由中海物业服务。
(数据来源于中海地产、中海物业官方网站)
中海新南图 天府东翼2.0战略启新
2019年,以天府CBD人居地标-天府里启幕天府东翼1.0
2022年,于新川、麓山、中央法务区四子成川,全面焕新商务区板块人居风貌
2024年,天府总部商务区扩容,中海远瞻天府CBD与天府中央法务区一体化发展利好,于CBD与法务区中轴,再启天府东翼2.0战略,中海·云缦源境再领城南新十年
【区域优势】
天府总部商务区 天府新区核心引擎
总部经济核心引领,会展经济、法律服务为重要带动,建设面向世界的中央商务区
天府中央法务区 压轴天府心
2023年《四川天府新区直管区国土空间总体规划(2021-2035年)》草案中,明确天府总部商务区扩容,天府中央法务区作为CBD扩容第一站,成为与CBD关系更紧密、规划能级更高的留白之地
世界一流法商融合产业示范区
全国首个省级层面主导建设的现代法务聚集区
优享CBD&法务区双重地利优势
中海云缦源境坐拥双区高能级配套,精粹生活圈,麓湖公园区-中央法务区-天府CBD聚合式铁三角,更有国际会议中心、中国西部国际博览城等世界级文化交流配套,大悦城等高阶商业配套,匹配您的丰盛生活。
【精粹配套】——进则CBD退则公园境
地处约46.8万㎡法务岛绿廊(规划中),出门即享城市生态大境。
其中天府前湾将以粉色系为主,布局200亩樱花特色园、60亩海棠特色园;天府左岸以红黄色系为主,40亩银杏特色园、25亩枫林特色园、3公里水杉漫步道;天府右岸以绿色为主,茉莉园、栀子花园、迷迭香园。万亩绿肺环伺,实现真正的公园城市生活
(数据来源于天府中央法务区官方公众号)
🛍【高阶商业】——直揽CBD高阶商业群,繁华正心丰盛人生
天府大悦城、天府和悦广场、麓湖水镇、麓湖伊藤店(在建中),满足大型购物及居家消费需求,享受便捷生活。
【健康医疗】——优享众多优质医疗,护航健康人生
近享四川省第二人民医院、四川天府新区人民医院(在建中)、四川大学华西天府医院等健康医疗
📚【全龄优教】——天新优质教育资源,助力孩子创智成长
香山k12教育组团、成都市实验外国语学校、天府三中、麓山国际光亚学校等0-18岁全系教育资源丰富。(入学以当地教育主管部门安排为准,开发商及中介机构未做任何承诺)
【项目规划】
A户型 建面约100㎡三室两厅两卫
通透双阳台,生活处处向阳
H型厨房,享约4.2米面宽尺度
LDKG格局,阳台/横厅/厨房/餐厅无缝连接
约6米阔尺横厅,家庭社交第一聚厅
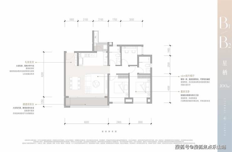
B2户型 建面约100㎡三室两厅两卫
礼制玄关,从容归家,隔绝外界干扰
约6米阔尺横厅,直连宽境阳台,尽享阳光偏爱
通透双阳台,兼得诗意与生活
套房主卧,配备阳光飘窗与独立卫浴,私属品质生活
C户型 建面约103㎡三室两厅两卫
L型玄关,转角设计,巧妙利用空间折叠理念
通透双阳台,一面生活一面诗意
LDKG格局,客厅、餐厅、厨房、阳台一线贯通
套房主卧,带独立卫浴与飘窗,舒适尊崇休憩空间
D户型 建面约112㎡三室两厅两卫
约6.8m奢阔横厅开间,开放式家庭核芯区,大尺度互动空间
行政套房,独立卫浴与双排步入式衣帽间
独立电梯到户,享阔尺阳光前厅
礼制玄关宽敞空间,兼得礼制与收纳
E户型 建面约132㎡四室两厅两卫
雅致方厅,可幻变出独立书房/瑜伽室/儿童天地
四开间大采光面,极致居住体验,生活从此向阳而生
独立电梯到户享阔尺阳光前厅
通透双阳台,观景阳台+生活阳台
【营销中心】:028-87777213「销售热线」
【置业顾问】:18613205563「微信同步」
【置业顾问】:19983517822「微信同步」
温馨提示:专业一对一热情服务,为了节约您的等待时间,看房请提前致电预约!!!
免责声明:
以上内容仅作为邀约邀请,涉及的图片为部分区域实拍图和美学畅想图,具体内容请以现场公示和合同约定为准;本文部分资料、部分图片来源于网络,如有侵权请联系我们删除。
声明:本文由入驻焦点开放平台的作者撰写,除焦点官方账号外,观点仅代表作者本人,不代表焦点立场。
