【华兴滨江锦宸】最新房价及在售户型深度分析-营销中心

搜狐焦点乐山站 2025-09-22 10:14:00
用手机看
扫描到手机,新闻随时看

扫一扫,用手机看文章
更加方便分享给朋友

成都 华兴滨江锦宸【营销中心】:028-87777213「销售热线」 【置业顾问】:18613205563「微信同步」 【置业顾问】:19983517822「微信同步」

成都 华兴滨江锦宸【营销中心】:028-87777213「销售热线」

【置业顾问】:18613205563「微信同步」

【置业顾问】:19983517822「微信同步」

成都市规划和自然资源局关于公开征求《〈成都市城市规划管理技术规定(2024)〉 的补充规定》意见的公告,涉及容积率、封窗新规。

一、支持立面公建化,建筑立面统一

为促进建筑立面协调统一,支持住宅立面公建化设计,阳台无论封闭与否,均按照其水平投影面积的 1/2 纳入容积率计算。

二、提升阳台等房屋空间品质

为打造亲近自然的居住空间,满足市民多样化居住需求,阳台、飘窗、以及各类形式的入户花园、空中花园、露台、退台、设备平台、空调板、构造板、结构板、抗震板、开敞式电梯前室、外廊、空腔、镂空、花池等房屋附属空间的水平投影面积不大于该项目住宅计容建筑面积的30%。

三、支持住宅小区设置开敞式风雨连廊

为方便居民室外休息活动,打造适应成都气候的遮风避雨归家路线,鼓励在不影响居民日常生活的前提下,通过设置开敞式风雨连廊,将小区出入口、楼栋出入口、单元出入口、小区内全民健身场所等公共空间相互连接。

开敞式风雨连廊不纳入容积率、建筑密度计算。

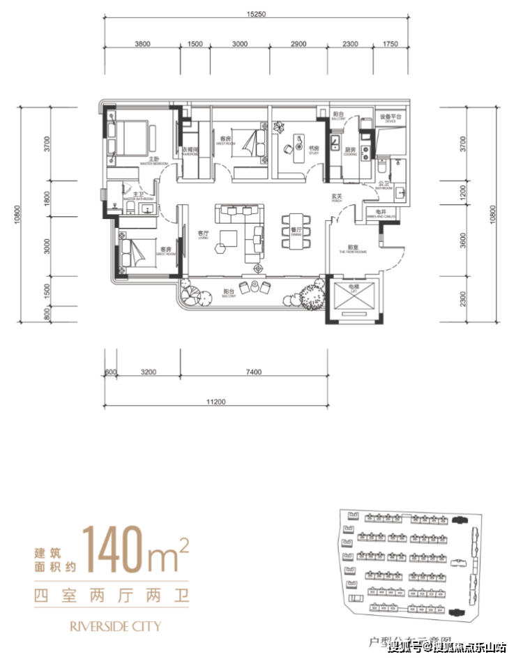
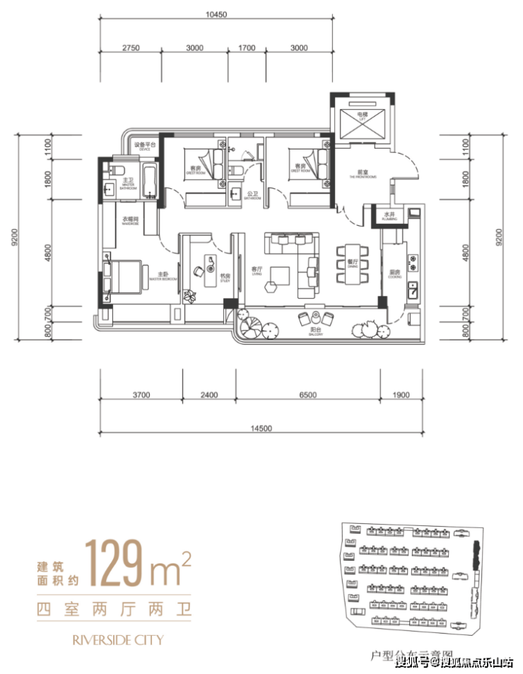
——项目指标——【项目占地】:约86亩【容积率】:1.5【绿化率】:30%绿地率【梯户比】:高层2T2【面积段】:建面约174-325㎡江岸雅奢墅境建面约129-159㎡天际阔景平层【安心置业】:现房销售

——核心价值——【实力品牌】深耕本土人居26载,用心服务每位业主【坐享繁华】2km大源核心区,尽享城南繁华生活配套【一线滨江】江安河畔滨水墅居,揽城市稀缺景观资源【便捷出行】项目近地铁5号线,三横三纵路网立体交通【主城现房】成都主城区臻罕现房低密滨江墅区

成都市华兴住宅房地产开发有限公司,创立于1998年,深研成都本土人居26载,具备国家一级房地产开发资质。

华兴地产截止2024年,已累计交付10个项目,服务约6.3万户业主。在产品规划、景观设计、物业服务等维度,均获得了广大业主与合作伙伴的广泛赞誉。

项目作为主城罕有现房开售的滨江墅质藏品,不仅拥有相比期房更短的入住等待期,也是「所见即所得」的置业安心优选,更以仅1.5容积率,立序城南墅质人居典范。

大源核芯区作为城南置业首选区域,板块趋近饱和、人口密度大,宜居性降低。同时发展时间长、老旧小区多,改善需求大,但板块房价高昂,且几乎没有产品上新。

大源南板块共享大源核芯区醇熟资源的同时,生态资源优渥、人口密度低,规划有「骑龙创新园」与「民乐站TOD」,是成都城南臻罕高端低密品质居住区。

项目西邻江安河,景观资源得天独厚,千米江景推窗即见。周边滨江公园(在建)、三江公园(在建)、骑龙公园(规划中)环绕。于城市繁华之畔,开启城南低密人居新版图。

▍纵横畅行:一轨:5号线骑龙站;三横:天府五街、元秀路、华阳大道;三纵:剑南大道、华府大道、华秀路。立体路网无界城芯生活。

▍繁华荟萃:大润发商圈、世豪广场商圈、银泰城商圈。三大繁华商圈环绕。

▍学府环伺:约900米怡心第一实验学校(直线距离)成都教科院附属学校、成都七中高新校区等,公立、私立优资学府环伺。

▍三甲医资:项目邻四川大学华西医院高新院区,预计2026年可投入运营。成都市第三人民医院高新院区(已批复),为每一位业主家人的健康保驾护航。

项目择址主城滨河墅区,定义成都豪宅新标准:繁华在侧,江安为邻,拥揽一线滨江景观,近享万象繁华配套;繁花内秀,园林级景观设计、墅质建筑立面、墅境空间营造。革新成都高端墅质生活想象。

项目奢造“一门一径”、“双园五巷”,四重归家礼序,层层深入移步易景,以精制园林盛景串联生活场域,情景交融成趣,自成风范领地。

▍崇奢府门,彰显层峯不凡气派项目斥资千万匠造社区大门,高度约13M,宽度约39M,整个大门采用不锈钢曲线工艺设计,石材柱体,屋顶香槟金全铝板挑檐,大气煊赫,气象卓然。

▍一径探幽,花木掩映奢雅园境「一径」是园区内贯通南北的景观中轴线,林间悠境一步一景,景观流转悠然,亲朋友邻都能在园境中与自然舒适互动。

▍双园错落,繁华中芯难得悠适「双园」是主入口两侧的两座主题花园,左侧为中庭会客区,奢造叠水景观;右侧为儿童乐园与下沉庭院,提供全龄儿童游乐、业主私享惬意悠境。

▍五巷礼遇,自然墅境生活场域「五巷」是散布墅区的五径花园宅巷,每一巷都栽培大量芬芳类和观赏类植物。巷道栽嵌众多名贵乔木,四季幽香常伴,尽藏时光美好。

作为华兴集团城南墅质标杆产品,华兴·滨江锦宸对建筑细节也是匠心淬炼,从建筑立面到入户大堂,乃至地下空间,处处细节尽显墅质标杆底蕴。

▍奢石立面,昭彰墅质风范项目高层建筑立面,以玫瑰金不锈钢及铝板修饰大面积真石漆,将自然灵动的简约曲线,和沉稳大气的中式线条巧妙糅合。墅区立面以蓝钻花岗岩、冰川白花岗岩等,高品质奢石石材打造,呈现墅质臻境。

▍奢雅门厅,尊崇归家感受项目入户大堂采用酒店式入户大堂设计手法,地面采用900×1800大规格岩板无缝拼接,墙面采用大版铝板嵌玫瑰金不锈钢线条,重点区域采用高级奢石过度,尽显奢雅格调。

▍奢逸地库,尽显不凡质感项目主车库入口采用出入双向车道,车库地面采用太古里同款环氧地坪工艺,增强地面耐磨、耐压和耐冲击性,地库门厅入口采用大规格岩板无缝拼接,简约奢逸,大气隐然。

华兴·滨江锦宸不止对标行业豪宅标准,更同频世界人居潮流,以人性化细节考量、超越同类产品的标准。打造大源芯南城市向往的墅质标杆。

▍奢谧入户,私谧入户空间以2T2梯户比打造稀贵高层产品,为业主营造拒绝喧扰的层峯领地。

▍奢工精研,全屋明管铺设全屋水管采用成本更高的明管铺设,方便渗漏检修的同时便于业主装修改造。

▍奢艺考究,全地面自流平全地面自流平工艺,超越市场标准。室内免打地坪即可安装地暖。

▍奢装预留,预留新风孔洞全户型预留新风系统安装孔洞,避免业主装修时对建筑梁体造成损害,细节领先成都大部分楼盘。

▍奢阔层高,奢阔墅质层高项目高层打造朗阔3.1米层高,叠拼、双拼产品奢造3.5米层高,营造高阶墅质生活的空间享受。

▍建面约129-159㎡天际阔景平层

▍建面约174-325㎡江岸雅奢墅境

成都 华兴滨江锦宸【营销中心】:028-84385818「销售热线」

【置业顾问】:18613205563「微信同步」

【置业顾问】:19983517822「微信同步」

温馨提示:专业一对一热情服务,为了节约您的等待时间,看房请提前致电预约!!!

免责声明:

以上内容仅作为邀约邀请,涉及的图片为部分区域实拍图和美学畅想图,具体内容请以现场公示和合同约定为准;本文部分资料、部分图片来源于网络,如有侵权请联系我们删除。

声明:本文由入驻焦点开放平台的作者撰写,除焦点官方账号外,观点仅代表作者本人,不代表焦点立场。