【秦皇帝锦锦南邸】首页网站欢迎您丨交通、户型、配套盘点
扫描到手机,新闻随时看
扫一扫,用手机看文章
更加方便分享给朋友
说到成都楼市,就绕不开天府新区板块,为何房企与购房者均持续看好天府新区?这不仅源于天府新区作为“国家级新区”的高起点规划支撑,还在于天府新区的实际呈现让人看得见、摸得着。那天府新区当下买房热门区域吗?答案是肯定的,截止目前,天府新区依然是成都当下甚具潜力的热门地段。在新房住宅市场,2022年天府新区备案成交合计24290套,远高于排行第二的成华区13136套。而且,2022年天府新区备案销售产值同样居于全城首位。所以,天府新区,仍然是当下改善的进驻高地。且随着天府新区10年的发展,新城市版图也在不断迭代,具体选择天府新区哪个版块,哪个楼盘值得关注购买?可能是很多购房者最近一直在考虑的问题,我们相对客观的为大家介绍一些天府新区在售的项目,希望能够为近期买房的购房者提供一些帮助,今天我们推荐的项目就是【秦皇帝锦·锦澜邸】
【秦皇帝锦·锦澜邸】
中央商务区之芯 实景现房
即将取证⏰
🏙建面约91㎡私享臻装二房
🏙建面约117-119㎡明星臻装二房
建面约128-138㎡全能臻装四房
【项目位置】
项目营销中心地址:四川省成都市天府新区汉州路与厦门路东段辅路交叉口西北140米
🟥【基本信息】
项目总占地:约261亩,总建筑面积:约95524㎡
预取证锦澜邸项目,占地约 40.7 亩,总建面约 9.5 万m²
容积率:约2.5
绿化率:约30%
总户数:377户
产品规划
共计4栋住宅 16-25F
「91㎡两房双卫 」
「117-119㎡三房双卫」
「128-138㎡四房双卫 」
【品牌介绍】城南发展33年 深耕天府新区
1.永安集团深耕城南33年,集地产开发、建筑、酒店运营、智慧物联网科技、物业服务为一体;公司所有开

2.目前在天府新区CBD已成功开发建设秦皇帝锦项目,项目是集高端商业、星级酒店为一体的综合体【项目分为四期开发,一期为我们的精品商业街区包含两座星级酒店:秦皇永安酒店及秦皇假日酒店;二期北区为住宅锦玥邸(已售罄),南区是我们即将推售的都市华宅—锦澜邸项目;三期为我们的高端酒店集群包含一座五星级酒店:天府万丽酒店,四期是住宅钰翠轩(已售罄)。】
3.天府新区兴隆湖核心位置北岸打造高端改善产品——隆溪湖·铂翠轩,隆溪湖铂翠轩获得最美外立面全省第十三名,而中央商务区的秦皇帝锦项目被评为2022年外立面形象设计全省第八名
永安集团的择址理念是非核心不选,也致力于在天府新区各个核心板块持续开发,再续城市力作。2022年在天府前湾核心板块,以盛世双子再续天府芯。
🟥【天府中央商务区】
总规划面积28.6平方公里,重点突出总部经济、会展博览、国际交往、生态公园四大功能,布局企业总部经济,会议会展经济,交通经济,中央公园经济,艺术经济,高端住宅经济,校园经济,医疗经济,八大经济集群。致力于打造世界新城市样板,建设世界级CBD,打造成都未来城市新中心。
🟥【天府CBD东区】
商务占地达到了80%,住宅占地仅占20%,现在东区的所有土地已全部名花有主,重点代表项目有:489米超高层一带一路大厦、中粮大悦城、西部国际博览城、天府国际会议中心、中铁西南总部、中交国际中心、中建大厦、中冶大厦、传化智联西部总部、广汇雪莲堂美术馆、TFS国际保税中心等。
五横三纵立体交通网路,通达全城
五横:武汉路、杭州路、宁波路、福州路、广州路
三纵:天府大道、夔州大道、梓州大道
🔹多条地铁汇集,从容出行
天府商务站为6、19号线的交汇站,距离项目约300M,直接与传统主城连接
西博城站可换乘1、18号线,距离本案100M左右,可通往天府国际机场
天府公园站为1、19号线的交汇站,距离项目不到1KM;为1、19号线的交汇站,距离项目不到1KM
商业配套|
高配商业环绕 尽享世界繁华
🔹秦皇锦街:项目一期打造了16000㎡的商业街
🔹中粮大悦城:项目北侧有15万㎡大型购物中心的天府大悦城,预计将于2023年底正式开业
🔹国际保税商业中心:是成都首个保税中心,拥有3000平方米的保税仓
🔹国际金融中心;西南地标沉浸式商业
教育配套 |
优质教育资源齐聚,全龄段教育无忧
🔹幼儿园:项目三公里范围内有天府新区元音幼儿园、科学城幼儿园、金摇篮幼儿园;周边还有天府新区实验幼儿园和规划中的天府新区第八幼儿园
🔹小学:项目三公里范围内有天府新区第一小学、天府中学附属小学,此外还有天府第七小学、元音小学等
🔹中学:项目三公里范围内有天府第七中学、元音中学、天府中学、天府新区教育科学研究院附属中学等
生态配套 |
三大公园覆盖,万亩生态资源环绕
🔹天府中央公园:占地约3450亩,是唯一跨天府大道中轴线的城市公园,是最具城市地标感的都市公园
🔹鹿溪河生态湿地:占地面积约4500亩,天然充满野趣的湿地公园区
🔹兴隆湖湿地公园:占地面积约4500亩,生态环境良好
医疗配套 |
优质医疗资源,为健康保驾护航
🔹南侧有天府华西医院已投入使用,医护均由本部派驻,治疗方案完全一致,天府华西牙科医院(集科研、教育、医学为一体的总部基地)(建设中,预计2023年12月完工);北侧有四川省第二人民医院、万达UPMC国际医院,距离项目较近的有建设中的妇女儿童医院(三甲)
🟥【全系实景 臻装现房】
建筑风格及布局|
🔹采用超大围合式的布局打造了4栋住宅,并且采用错落式的布局,保证了每一户的采光面及极致的观景面。整个外立面设计也是获得了“四川省外立面形象设计大奖
🔹安逸舒适居住空间
四大板块:艺境花园,水韵蓝池,悦动天地,琉璃花园
六大功能空间:入口空间,开放空间,私密空间,半私密空间,会所空间,商业空间
🟥【在售户型】
建面约91㎡两室两厅两卫
客厅开间约3.8米,无任何空间浪费
配合约7M阔景阳台,餐厨客卫卧空间功能一应俱全,空间利用率达到极致
主卧约18㎡,可以说是全成都目前在售100㎡以下,主卧最大的户型

建面约119㎡三室两厅两卫
客厅开间约4M,极佳舒适空间
方正布局,套三双卫绝佳的动静分区享受私属的静谧空间
主次卧空间基本保持一致,赠送完全抵消公摊

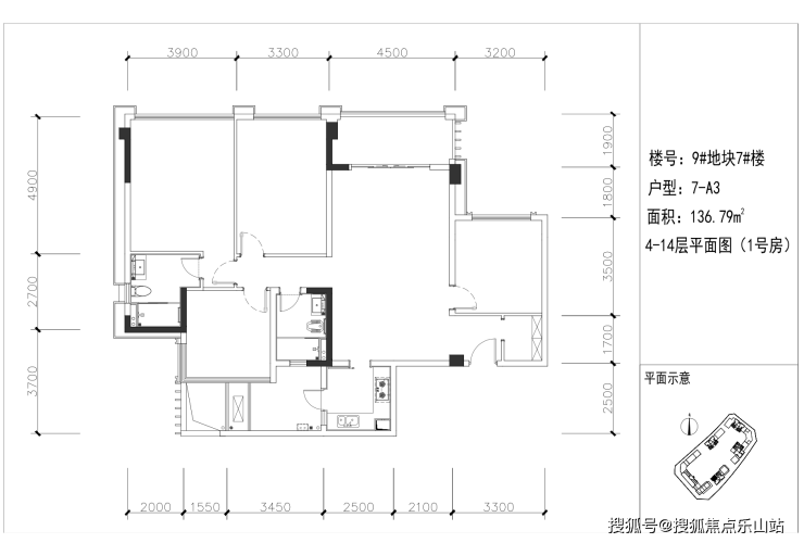
建面约138㎡四室两厅两卫
近15米开间超大采光面,市面上基本要170㎡的产品才能做到
主次卧空间接近,一书房+三卧的房间+双卫分布
正对中庭,极大的保证了居住的私密性和静谧,享受极致的居住体验

声明:本文由入驻焦点开放平台的作者撰写,除焦点官方账号外,观点仅代表作者本人,不代表焦点立场。
