【华侨城七十二院】特价优惠-楼盘详情-配套详解-营销中心
扫描到手机,新闻随时看
扫一扫,用手机看文章
更加方便分享给朋友
华侨城七十二院【营销中心】:028-87777213「销售热线」
【置业顾问】:18613205563「微信同步」
【置业顾问】:19983517822「微信同步」
洛带古镇4A级景区|现房独栋合院
国风建筑|五大建筑派系|一户一栋
项目概述:
洛带华侨城·七十二院,东邻龙泉山城市森林公园,北接洛带古镇4A级景区,西毗邻洛水湿地公园,南望千亩蔚然花海。
该项目承袭了客家人五次大迁徙的文化传承,精选了闵、海、川、晋、徽五大中国建筑派系,展现了中国传统建筑艺术的独特魅力,街巷与院落的空间变化相得益彰。
基础信息:
项目位置:成都市龙泉驿区洛带三峨街999号
占地面积:约200亩
物业公司:华侨城物业(集团)有限公司成都分公司
水电气收费:水4.3元/吨,电0.79元/度,气2.59元/立方米
建筑面积:200—500平
总价区间:300万—1000万(特价房178万起)
赠送花园面积:80-300平
容积率:0.65
物业费:5元/㎡
现房出售,即买即装修,水电气俱全。
项目区位图:
周边配套:
交通设施:
项目周边交通便利,如成都五环路(成环路)、成洛大道、渝蓉高速、蜀都大道等城市主干道,同时还有219路、850路、K7快速公交等十余条公交线路。距离双流机场和天府国际机场约40公里,40分钟内即可轻松抵达全球各地。
生态环境:
周边生态资源丰富,龙泉山城市森林公园、洛水湿地公园和4A级景区蔚然花海近在咫尺。
教育资源:
周边有龙泉驿区洛带第二幼儿园、洛带小学、洛带中学以及在建的成都康礼·克雷格公学。
医疗设施:
医疗资源配套齐全,包括龙泉驿区第二人民医院、洛带公立卫生院、龙泉驿区第一人民医院、龙泉驿区妇幼保健院以及四川省人民医院东院。
休闲娱乐:
毗邻4A级景区洛带古镇和中国艺库商业街,提供多种休闲选择。
产品介绍:
闵派:自持商业院落,面积范围30-300㎡,打造城市商业步行街
海派:自持商业院落,面积区间300-3000㎡,打造中法特色风情街
川派:在售合院,面积段200-500㎡,均价约15800元/平,总价范围300-900万
晋派:在售合院,面积范围400-600㎡,均价约17800元/平,总价区间680-1000万
徽派:面积区间210-350㎡,均价约15000元/平,总价段300-520万
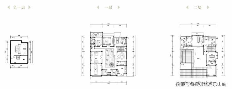
户型鉴赏:
川派:明月府 9-2#(建筑面积373.17㎡,实际面积约513㎡)
川派:南风院 6-3#(建筑面积369.13㎡,实际面积约513㎡)
川派:千虹院 12-5#(建筑面积448.24㎡,实际面积约633㎡)
川派:虹霓院 13-2#(建筑面积370.09㎡,实际面积约514㎡)
【营销中心】:028-87777213「销售热线」
【置业顾问】:18613205563「微信同步」
【置业顾问】:19983517822「微信同步」
温馨提示:专业一对一热情服务,为了节约您的等待时间,看房请提前致电预约!!!
免责声明:
以上内容仅作为邀约邀请,涉及的图片为部分区域实拍图和美学畅想图,具体内容请以现场公示和合同约定为准;本文部分资料、部分图片来源于网络,如有侵权请联系我们删除。
声明:本文由入驻焦点开放平台的作者撰写,除焦点官方账号外,观点仅代表作者本人,不代表焦点立场。
