【城南美地中心】售楼处|房价动态、户型剖析、楼盘最新优惠
扫描到手机,新闻随时看
扫一扫,用手机看文章
更加方便分享给朋友
成都 城南美地中心【营销中心】:028-87777213「销售热线」
【置业顾问】:18613205563「微信同步」
【置业顾问】:19983517822「微信同步」
成都世运会热力全开,同样火热的还有成都楼市。
上半年成都楼市共成交17.6万套领跑全国;主城新房去化周期普遍在8个月以内;楼面地价从3万到4万只用了16天……各项亮眼数据展示着新一线成都回稳向好的傲绩。
转眼2025进入下半场,楼市的炙热是否还将上演
核心价值亮点
价格优势:
均价8500-9000元/㎡,总价34万起,首付20万起(部分户型首付0.5成起)。
水电气三通类住宅,适合自住或投资。
现房交付,降低购房风险7。
区位优势:
位于双流国家级临空经济区,紧邻机场路,交通便捷。
距离金融城西较近,享受城南发展红利。
产品设计:
45-104㎡菁英小户,涵盖标间、套一、套二、套三,满足不同需求。
一层一主题,打造共享空间,提升居住体验

交通配套
地铁:
地铁8号线(已运行)机场快速路口站,距离约800米。
地铁30号线(在建)谢家渡站,未来出行更便利。
高速/主干道:
机场高速、成雅高速,快速通达全城2。
天府大道、大件路、机场路,无缝接驳高新生活圈。
公交:
816路、804B路、846路等,91路公交直达天府广场。
三、商业与生活配套
商业:
蓝润广场、鞋都奥特莱斯、印强商场(3公里内)。
自带3万㎡商业综合体,含超市、餐饮等。
周边商圈:茂业时代广场、北京华联、韩国城等。
医疗:
省警官总医院(约486米)、华西国际医院。
教育:
幼儿园:布莱特幼儿园(约398米)、金苹果幼儿园。
中小学:川大附小、南岗外国语小学、棠湖中学










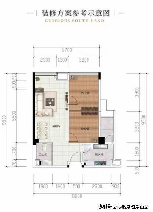
【户型鉴赏】
A户型:104㎡阔尺套三

B户型:82㎡舒适套二

C户型:59㎡百变套二

D户型:51㎡豪华套间

成都 城南美地中心【营销中心】:028-87777213「销售热线」
【置业顾问】:18613205563「微信同步」
【置业顾问】:19983517822「微信同步」
声明:本文由入驻焦点开放平台的作者撰写,除焦点官方账号外,观点仅代表作者本人,不代表焦点立场。
