成都大源招商玺怎么样?招商玺最新评价-售楼电话-一键预约
扫描到手机,新闻随时看
扫一扫,用手机看文章
更加方便分享给朋友
【营销中心】:028-87777213「销售热线」
【置业顾问】:18613205563「微信同步」
【置业顾问】:19983517822「微信同步」
温馨提示:专业一对一热情服务,为了节约您的等待时间,看房请提前致电预约!!!
免责声明:
以上内容仅作为邀约邀请,涉及的图片为部分区域实拍图和美学畅想图,具体内容请以现场公示和合同约定为准;本文部分资料、部分图片来源于网络,如有侵权请联系我们删除。
招商玺 |𝐒𝐈𝐍𝐂𝐄 𝟏𝟖𝟕𝟐
2025年成都第一梯队豪宅
【招商玺】
央企招商蛇口旗下顶豪系列
高新区唯一一个245㎡起步新规墅居大平层
大源西板块作为高新区豪宅自留地,云集住宅项目以总价700万➕,2.0低密为主,纯粹度高
3㎞范围直达世豪、铁像寺🎡
一街之隔高新区最好书包🎒
打造高新区公园城市🏕️
3㎞两所三甲医院🏥
占地64亩,2.0容积率
大平层:245 290 365㎡
总价约:1300-2500
【项目立面】
【独栋合院】
共计:22套
面积:390平米/16套,480平米/6套
产品特点:
城市别墅形态独立,花园面积200-300平米,单层面积超200平米以上,赠送实得面积约1000-1300平米。具备绝对稀缺,在高新核心地段拥有占地约一亩有天有地的别墅,真正的核心资产,家族传承大宅!
【超级公区】
【项目总平】
产品线起步面积约245㎡,
中段主力约290㎡。
旗舰级的一层一户大平层面积为365㎡
位于东侧的合院则是396㎡,489㎡两种产品,实得超过1000㎡
【户型解读】
365㎡ (四室三厅五卫一保姆间)
招商玺365大平层(四室三厅五卫+保姆间)
1、专属!一层一户=“0”公摊。专属性:这一层姓:李?赵?王?由你决定!
2、尊重!2T1户的配置。不仅仅是主人的归家私密性与领域尊崇感十足。同时保姆也拥有独立电梯,相对舒适的独立休息空间!
3、平权!4套房,父母与子女,男孩与女孩,享受同样的配置空间,尊重每一位家庭成员!
4、楼王!360度采光与视野景观,占据绝对的中心位置!
5、花园!大平层实现别墅级居住体验,挑高7米露台的空中花园,实现更多生活场景!
▌户户双梯双厅入户,百米级别环幕一层一户,每户配置两部电梯,归家与后勤动线互不干扰,归家私密性与领域尊崇感十足。四个方向的采光面加在一起,总采光面80多米
365㎡户型亮点总结
▌功能顶配:全套房+独立家庭厅四个卧室都是带独立卫浴的豪华套房,起步面积至少20㎡。其中超级主卧带独立书房和阳台,面积接近70㎡。在正式会客空间之外,还特别设置独立家庭厅,并且配置独立阳台。
▌首创内置式立体空中花园错层布置近7米通高的内凹式主花园露台,核心突破在于内凹于建筑主体的结构设计。较之当下流行的空中院馆,竖向空间尺度更震撼;对比常规四代宅的外凸阳台,内凹式的设计又保障了景观空间的私密性。
综合对比,招商玺的这款365㎡,应该是成都高新目前顶流的一层一户大平层。
关于建面约245㎡+290㎡拼栋设计,户型层面主要两个关键指标:
第一,都有约20米面宽的南向采光面。
第二,每户都有近7米通高的主花园露台,与楼王户型一样采用「错层式+内凹结构」设计,提供优于传统阳台的实用面积与层次感。
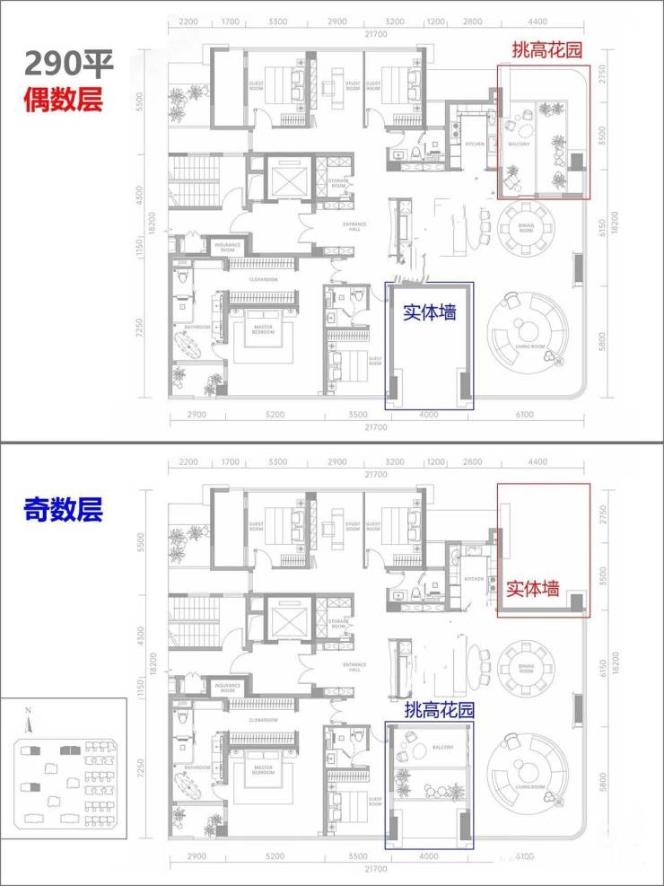
290㎡五室两厅四卫
1、3套房,5卧室,家庭人口多的也很适合。空间可塑性很大,也可改成豪华4套房。
2、豪改户型,客餐厅、主卧空间非常豪华。
245㎡四室两厅三卫
1、经典的端厅户型,各房间面积均不错,空间分配合理。
2、户型分布在外围一圈,反而绝大部分避开了对视问题。
3、这个户型,面积小些、总价低些,应该选的人会更多。
【营销中心】:028-87777213「销售热线」
【置业顾问】:18613205563「微信同步」
【置业顾问】:19983517822「微信同步」
温馨提示:专业一对一热情服务,为了节约您的等待时间,看房请提前致电预约!!!
免责声明:
以上内容仅作为邀约邀请,涉及的图片为部分区域实拍图和美学畅想图,具体内容请以现场公示和合同约定为准;本文部分资料、部分图片来源于网络,如有侵权请联系我们删除。
声明:本文由入驻焦点开放平台的作者撰写,除焦点官方账号外,观点仅代表作者本人,不代表焦点立场。
