成都新盘[永盛和星悦府]首页网站-楼盘详情-最新利率-销售中心
扫描到手机,新闻随时看
扫一扫,用手机看文章
更加方便分享给朋友
成都 永盛和星悦府【营销中心】:028-87777213「销售热线」
【置业顾问】:18613205563「微信同步」
【置业顾问】:19983517822「微信同步」
永盛和星悦府是由永盛和地产(成都)有限公司开发的高品质住宅项目,位于成都新都区天府大道北新门廊核心地段。项目定位为"青年活力轻奢社区",凭借优越的地理位置、完善的配套设施和人性化的户型设计,成为新都区中高端改善型置业的热门选择。
项目采用人车分流设计,行人从园区大门归家,车辆则从入口直接进入地下停车场,互不干扰,降低空间和噪音压力。小区规划8000㎡"星旅"主题园林,打造全龄网红运动空间,提供高品质的居住环境
交通配套分析
永盛和星悦府占据得天独厚的交通优势:
地铁:距离地铁5号线廖家湾站仅79米,可换乘7条地铁线路
公交:1公里范围内有13个公交站,最近的兴贸大道天柏路口站(西行)距离138米
路网:位于天府大道北新门廊,周边路网发达,多条主干道环绕,自驾出行便利
生活配套分析
项目周边生活配套完善,形成全能生活圈:
商业配套
双TOD商业体(廖家湾TOD+幸福桥TOD)
国际美博城(距离659米)
海宁皮革城(1.4公里)
万朵城(大型商业综合体)
医疗配套
成都北新医院(距离1043米)
新都区人民医院
新都区中医院
生态资源
约20平方公里毗河生态走廊
诺贝尔公园
源上湾公园
毗河湿地公园(在建)
口袋公园(市政公园)
教育配套分析
幼儿园:3公里内23个幼儿园,最近的廖家湾幼儿园一分园距离275米
小学:6所小学,包括旃檀小学、龙江路小学(2024年9月开学)等
中学:4所中学,如旃檀中学、新都一中等
高等教育:毗邻成都医学院、西南石油大学等高等学府
【项目总平】
项目主力产品为98-111㎡三居户型,采用先进的LDK一体化设计,实现空间最大化利用。主要户型亮点:
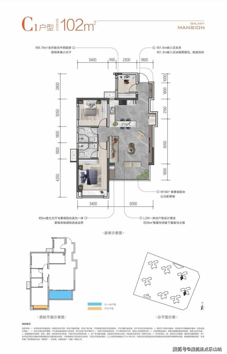
C1户型(102㎡三室两厅两卫)
南北朝向
约1.6米嵌入式玄关
约9.76平米全开放式中西厨房
约1.3米嵌入式冰箱预留位
LDK一体化设计
C2户型(102㎡三室两厅两卫)
南北朝向
约1.6米嵌入式玄关
约1.3米嵌入式冰箱预留位
LDK一体化设计
约36平米宽幕空间
B1户型(111㎡三室两厅两卫)
南北通透设计,双面采光
科学动静分区
270°观景阳台
约5米大宽厅
LDK一体化大宽厅
全开放中西双厨
所有户型均注重采光通风和动静分区,提升居住舒适度。精装交付标准包含新风、地暖、中央空调三大系统,体现项目的高品质定位
【户型鉴赏】
成都 永盛和星悦府【营销中心】:028-87777213「销售热线」
【置业顾问】:18613205563「微信同步」
【置业顾问】:19983517822「微信同步」
声明:本文由入驻焦点开放平台的作者撰写,除焦点官方账号外,观点仅代表作者本人,不代表焦点立场。
