成都【华润昆仑御】10月全新房价表-售楼处电话、户型推荐、优惠申请

搜狐焦点乐山站 2025-10-17 10:49:00
用手机看
扫描到手机,新闻随时看

扫一扫,用手机看文章
更加方便分享给朋友

成都华润昆仑御售楼处电话:028-87777213【营销中心】 ☎【置业顾问】:18613205563「微信同步」☎ ☎【置业顾问】:19983517822「微信同步」☎

成都华润昆仑御售楼处电话:028-87777213【营销中心】

☎【置业顾问】:18613205563「微信同步」☎

☎【置业顾问】:19983517822「微信同步」☎

虽然成都土拍价格越拍越高,但主城市场卖得好的,还是那些主力总价在400万级的产品。

比如八开八罄的招商锦城序、多次登顶主城销冠的华润置地中环天宸等。

这背后的原因其实很清晰,虽然土拍价格持续走高,但大多数购房者的购买力是没有明显提升的。

对于绝大多数家庭而言,总价400万级就能在主城实现居住的全面迭代,这种吸引力,无疑是精准且难以抗拒的。

通过这些现象级热盘,我们就不难总结出,要想卖的好,控总价+高品质+高舒适度,以上三者缺一不可。

约2.0容积率,打造10层1梯2户低密洋房,

总高:10层 1T2户

交房时间:现房

占地面积:122亩

产权年限:70年

总户数:924户

物业公司:华润物业

物业费:3.35元/㎡

精装情况:清水交付

首层+夹层的跃层设计,顶层挑高空间,约4.8m层高,接近“墅居”的生活体验。

6.6-7m大尺度横厅,南北对流通透设计。?

1. 东进主轴发展机遇 龙泉驿区新格局

崑崙御于东进主轴成洛大道之上,与城市主轴同频共振。

龙泉驿区规划“一心三极、两轴一带”的城市空间结构。而西河是龙泉驿区副中心,区域发展快速升级。?

2. 成都中法生态园、国际智慧新城加持

西河规划了丰富的产业发展园区,其中中法生态园投资超260亿、协同中法双边合作;国际智慧新城以西河街道为重点,打造西河高品质生活中心,构建15分钟交通圈、公共服务圈、创新工作圈。

——在崑崙御,追求的是什么?

我们的答案:极致的生活美学

营销中心——未来移交为小学图书馆?

1. 立体交通动脉

三轴:东进主轴成洛大道、蜀都大道、西陵大道(建设中)

三环线:三环、四环(绕城高速)、东安大道(车城大道)

三地铁:地铁4号线(已建成西河站,东延线在项目旁规划有站点)、地铁17号线(规划中)接驳S4市域铁路(规划中)、地铁22号线(规划中)

2. 0-18岁全龄教育配套

9所学校环伺:永丰学校(小学+幼儿园,项目旁)、斯宾塞格林幼儿园、小天使博雅幼儿园、龙泉驿区第二十四小学校 、西平小学、西河小学、成都教科院附属龙泉学校(9年一贯制)、龙泉十三中、西河中学

华润配建学校:配建30个班的小学

3. 繁荣商业汇聚

银诚商业中心(建设中)

万象城、339等

周边规划多块商业用地

4. 三级医院护航

成都市中心医院(规划中)

5. 丰盈的生态资源

青龙湖湿地公园:总面积3万亩,湖面4000亩,目前主城唯一超万亩湖泊公园

锦绣天府中央绿芯(建设中):约4.8万亩,汇聚文化、运动、景观等公园生活

蔚然花海:园区太空花卉种植面积超过800余亩,成都市“最美赏花基地”

龙泉山城市森林公园:面积约1275平方公里,是全球最大的城市中央公园之一

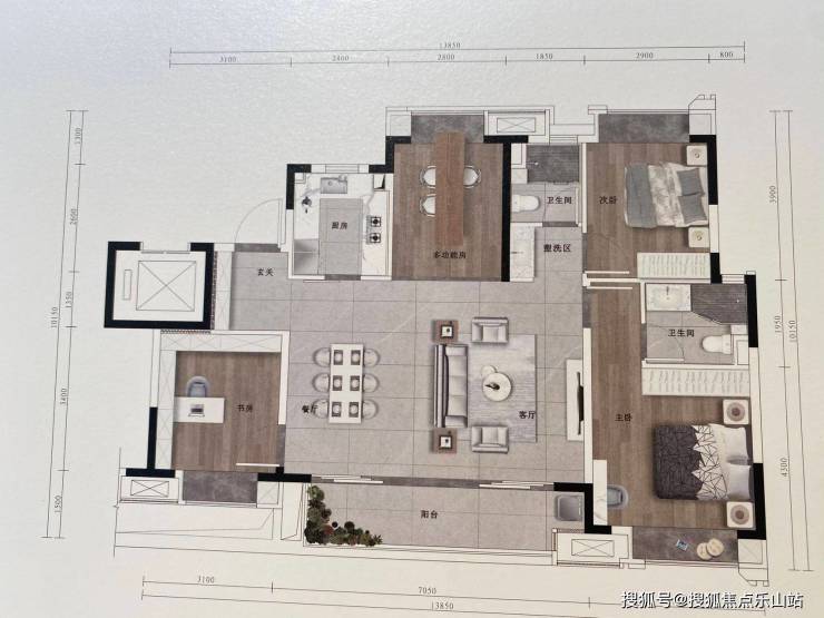
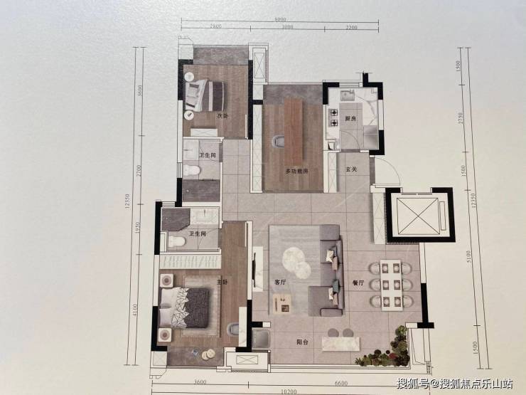
106㎡三室两厅双卫

123㎡四室两厅双卫

188㎡(106㎡的底跃)

229㎡(123㎡的底跃)

成都华润昆仑御售楼处电话:028-87777213【营销中心】

☎【置业顾问】:18613205563「微信同步」☎

☎【置业顾问】:19983517822「微信同步」☎

___欢迎来电咨询丨专业一对一热情服务丨看房需提前预约

——如有侵权请联系我们删帖——

温馨提示:为了节约您的等待时间,看房请提前致电售楼处预约!!!

声明:本文由入驻焦点开放平台的作者撰写,除焦点官方账号外,观点仅代表作者本人,不代表焦点立场。