成都科创生态岛U6值得买吗?科创生态岛U6的优点和缺点-售楼电话
扫描到手机,新闻随时看
扫一扫,用手机看文章
更加方便分享给朋友
【营销中心】:028-87777213「销售热线」
【置业顾问】:18613205563「微信同步」
【置业顾问】:19983517822「微信同步」
温馨提示:专业一对一热情服务,为了节约您的等待时间,看房请提前致电预约!!!
免责声明:
以上内容仅作为邀约邀请,涉及的图片为部分区域实拍图和美学畅想图,具体内容请以现场公示和合同约定为准;本文部分资料、部分图片来源于网络,如有侵权请联系我们删除。
项目名称:成都科创生态岛 U6🌐项目地址:中国·成都科创生态岛 定位:科创人才的家园①面积:约210㎡(三室三卫)②面积:约243㎡(五室四卫)③面积:约280㎡(五室四卫)【项目信息】物业类型:住宅建筑类型:小高层占地面积:81353.40㎡建筑面积:17.73万方开发商:成都天投鹿溪智谷园区建设有限公司总户数:836户(二批次214户)容积率:2.27绿化率:25%车位比:2272个楼层状况:7-16F楼栋总数:4栋在售楼栋:S5#梯户比:2T2所属区域:天府新区-成都天府新区兴隆湖成都科创生态岛产权年限:70年🏡产品面积:180㎡-280㎡总价区间:400-900万起单价:2万-3.5万元/㎡物业费:3.98元/㎡交房时间:2025年6月交付标准:精装(最终以开发商信息为准)

成都科创生态岛 成都创新成果展示的重要平台成都科创生态岛由世界知名的扎哈·哈迪德事务所设计,建筑如细胞团簇一般生长、扩 张,寓意整岛蓬勃发展。打造”聚、服、展、孵"于一体的综合性科技创新成果转化聚集区,加快建设创新资源的汇聚地、新兴产业的孵化器,技术成果的交易场、科学家的会客厅。
全球大师汇聚 定格世界灵感公园城市综合运营商天投集团, 携手建筑设计巨擘的扎哈·哈迪德事务所, 联袂丹麦HL集团、NIHON SEKKEI、OVI照明事务所、杨邦胜设计集团、阿法建筑设计等全球各领域多支设计天团, 打造中国乃至世界独特的新兴地标与公园城市封面作品,致力呈现一个前所未有的岛, 营造人城境业和谐统一的未来生活方式。

全球甄稀公园住区 湖岛之上的天赋之地成都科创生态岛拥有湖、岛、河、公园四大生态体系,一面临湖,三面环水,与城市核心生态公园无界相连,私享约4500亩鹿溪河湿地公园、约5100亩兴隆湖生态景观。

轨道交通:18号线兴隆站、16号线成都科创生态岛站(预计2024年开工)、19号线蓝家店站、天府新站(在建中)纵横路网:科学城北路、科学城中路、天府大道、梓州大道、蓉遵高速、益州大道国际机场 :天府国际机场(约30km, 18号线3站即达 ) 、双流国际机场(约25km, 19号线7站即达 )

四川大学华西天府医院、天府华西牙科医院、华西附二院健康管理中心
U6隶属于天府新区小学E区、初中C区的划片范围。
天府新区 小学E区划片学校——天府新区第一小学、天府新区十一学校(小学部)、成都市实验小学湖畔路校区(在建中)、成都市龙江路小学桐湾校区(在建中)天府新区 初中C区划片学校——元音中学、湖畔中学、天府新区十一学校(初中部)、七中育才中学(在建中,年底投入使用)民办中学——天府七中、天府中学幼儿园——青羊幼儿园宝塘校区(在建中)、岛心幼儿园(在建中)
全域运动场 高阶改善全新标准
运动作为健康管理的重要生活方式,在成都科创生态岛也是不可或缺的部分。 在人与自然的亲近之地,漫步湖畔、河湾、公园,与更多运动场景相遇。
约8.8Km兴隆湖环湖道,极限运动公园,水上运动中心,鹿溪智谷网球中心
滨湖消费圈:方圆荟、水下书店、黑珍珠餐厅银芭、有雲·鹿洄天府1911中国川菜体验中心等滨河消费圈:鹿溪河沿线整体规划约7.6KM滨河公园商业街区岛心消费圈:约9.4万㎡综合商业及五星级酒店规划,岛上配置幼儿园、社区中心周边综合体商业:大悦城已开业、东鑫苑商业综合体7万方(在建中)
U6-S5户型落位图建面约180-280㎡科创人才的家园
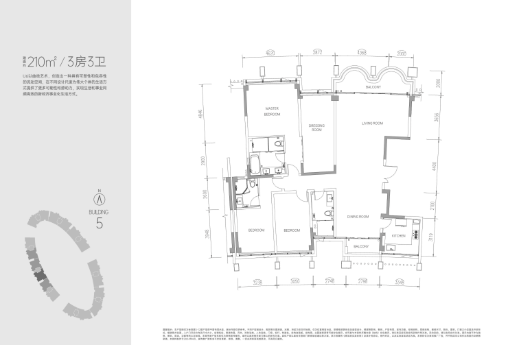
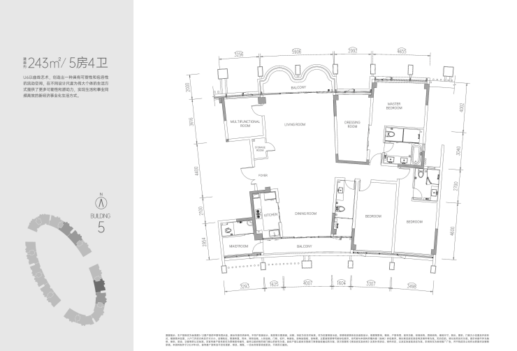
户型鉴赏
210㎡三房三卫

243㎡五房四卫

280㎡五房四卫

【营销中心】:028-87777213「销售热线」
【置业顾问】:18613205563「微信同步」
【置业顾问】:19983517822「微信同步」
温馨提示:专业一对一热情服务,为了节约您的等待时间,看房请提前致电预约!!!
免责声明:
以上内容仅作为邀约邀请,涉及的图片为部分区域实拍图和美学畅想图,具体内容请以现场公示和合同约定为准;本文部分资料、部分图片来源于网络,如有侵权请联系我们删除。
声明:本文由入驻焦点开放平台的作者撰写,除焦点官方账号外,观点仅代表作者本人,不代表焦点立场。
