详解(隆科熙悦)项目-在售价格-优惠申请-营销中心
扫描到手机,新闻随时看
扫一扫,用手机看文章
更加方便分享给朋友
成都 隆科熙悦【营销中心】:028-87777213「销售热线」
【置业顾问】:18613205563「微信同步」
【置业顾问】:19983517822「微信同步」
又出新政
自2026年1月1日至2027年12月31日,对出售自有住房并在现住房出售后1年内在市场重新购买住房的纳税人,对其出售现住房已缴纳的个人所得税予以退税优惠。其中,新购住房金额大于或等于现住房转让金额的,全部退还已缴纳的个人所得税;新购住房金额小于现住房转让金额的,按新购住房金额占现住房转让金额的比例退还出售现住房已缴纳的个人所得税。
项目为温江稀缺现房,得房率120%,交房即拿证。
位置优越,地处江安河畔,临温江高速 交通四通八达,刚需客户温江优选。

🚄 立体交通路网🚄
三横三纵三地铁:快速串联全城,延伸城市生活空间
•三横:成温邛高速、光华大道、花都大道
•三纵:绕城高速、南熏大道、凤溪大道
•三地铁:地铁17号线(市五医院站1.8KM)、地铁4号线(南熏大道站1.5KM)、地铁远期规划28号线(长安桥西站)
🏫优质教育资源🏫
名校荟萃,嫡传城芯人文气息
•幼儿园:公平街办安居幼儿园、公平星星幼儿园、爱仁堡幼儿园、温江实验幼儿园
•小学:温江区东大街第二小学(根据2023年区域划片合江路合江社区均为东二划片范围)、温江区东大街第一小学、东二长安路校区,成实小
•中学:温江中学、温江二中、成都实验外国语学校、七中冠城学校、绵阳东辰、七中菁才(未建成)
•大学:西南财经大学、成都中医药大学、四川农业大学、成都师范学院、成都交通职业技术学院、成都农业科技职业学院
医疗
🏥完善医疗护航🏥
立体康疗机构,护航四时健康
•5分钟车程——三甲医院“成都市第五人民医院”+温江区中医院+温江区人民医院
•10分钟车程——国际医学城:囊括了“八一康复中心”、“华西医院”、“美国阜外心血管医院”等专科性医院
商业
🌇 醇熟生活配套🌇
成熟商业环伺,点亮城芯日常
5分钟车程——
商业配套:珠江广场+新光天地+伊藤洋华堂;
生活购物:盒马超市+家乐福+永辉超市;
五星酒店:费尔顿凯莱+珠江凯悦酒店+皇冠假日智选酒店。
项目周边——“合江新城”板块内城市更新,规划6大特色市井商业配套
生态
🏞绝版生态配套🏞
城芯天赋谧境,惬享宜居生活
•江安河滨河公园
•280亩温江公园
•350亩光华公园
产业光华中心,集购物中心、影院、体验式商业、写字楼等业态于一体的城市综合体。但与其他城市综合体不同,其最大特色在于依托温江区主导发展产业,打造“健康服务业”高端企业孵化楼宇。
【项目总平】

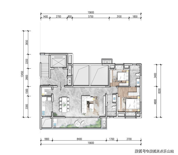
【户型鉴赏】【约89-125㎡无界平层,明星户型推荐】
B2户型-建筑面积113㎡户型亮点

B1户型—建筑面积约113㎡户型亮点

A户型—建筑面积约125㎡户型亮点

成都 隆科熙悦【营销中心】:028-87777213「销售热线」
【置业顾问】:18613205563「微信同步」
【置业顾问】:19983517822「微信同步」
声明:本文由入驻焦点开放平台的作者撰写,除焦点官方账号外,观点仅代表作者本人,不代表焦点立场。
