成都中海天府合印值得买吗?中海天府合印的优点和缺点-售楼电话
扫描到手机,新闻随时看
扫一扫,用手机看文章
更加方便分享给朋友
【营销中心】:028-87777213「销售热线」
【置业顾问】:18613205563「微信同步」
【置业顾问】:19983517822「微信同步」
温馨提示:专业一对一热情服务,为了节约您的等待时间,看房请提前致电预约!!!
项目容积率:2.5
绿化率:35%
总栋数:13栋
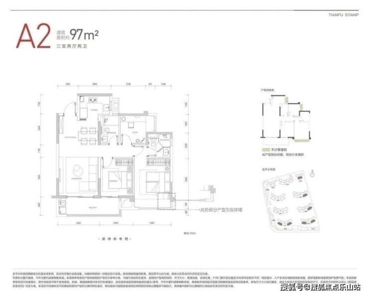
建面约92m²-133m²
梯户比:两梯四户
总户数:1052户
车位:1374个,
物业:中海物业提供物业服务。
项目1条大路直通天府CBD核芯地标,驾车仅需约3-5分钟;3个红绿灯,可便捷通达天府大悦城;4站无需换乘直达天府商务区站。
学校方面,项目属于天府新区D区,有天府六小、万安小学、天府二中等学校。另外,项目周边还有规划的中、小学用地,附近的红豆茗居小区门口还有个开元幼儿园。
商业方面,项目自身规划了约6000平的底商,对面的永慧项目,据置业顾问说也规划了一个社区商业,满足未来的日常生活应该不成问题。
天投中海·天府合印凭借五大价值维度,从品牌联袂、产品奢配、风格定制、产品超配、户型创造等方面,成为了天府新区当之无愧的首置灯塔级项目。
酒店式归家大堂,营造生活的精致仪式感
独特风帆楼型/现代感外立面设计/潮感商业街区/都会风公区
70亩大盘规划/约170米中轴庭院市场罕见/全南北朝向
目前,项目三批次建面约92-133m²央景小高层持续热销中,目前还有少量总价207-217万性价比高品质房源在售,恭迎品鉴!
【营销中心】:028-87777213「销售热线」
【置业顾问】:18613205563「微信同步」
【置业顾问】:19983517822「微信同步」
温馨提示:专业一对一热情服务,为了节约您的等待时间,看房请提前致电预约!!!
免责声明:
以上内容仅作为邀约邀请,涉及的图片为部分区域实拍图和美学畅想图,具体内容请以现场公示和合同约定为准;本文部分资料、部分图片来源于网络,如有侵权请联系我们删除。
声明:本文由入驻焦点开放平台的作者撰写,除焦点官方账号外,观点仅代表作者本人,不代表焦点立场。
