成都楼市-(新希望天屹)最新特价房源-最新价格-营销热线
扫描到手机,新闻随时看
扫一扫,用手机看文章
更加方便分享给朋友
成都 新希望天屹【营销中心】:028-87777213「销售热线」
【置业顾问】:18613205563「微信同步」
【置业顾问】:19983517822「微信同步」
前三季度,成都共成交超25万套房源,其中新房7.3万套,二手房超18万套,二手房成交量已达到24年全年的78.3%,成交总量依然在全国首屈一指。值得注意的是,25年9月成都二手房累计成交19581套,成交量同比24年9月的15208套猛涨约28.8%。
不是说市场不行吗,为何成都人还是在恐慌性买房,成交量不跌反涨?
东安湖中央居住区2.0低密纯居洋房——新希望天屹价值解析
建面约116-143㎡新派隐逸奢宅 | 千亿国企×品质民企联袂钜献
核心价值亮点
稀缺低密纯洋房社区
容积率仅2.0,10栋10-16层纯洋房,1T2/2T2梯户比,35%绿化率+东干水渠滨河绿道贯穿,内外双园林景观。
区域唯一下沉式宝格丽主题会所,配备健身房、书吧等高端配套。
国企+品质房企双保障
开发商:成都经开发展集团(千亿国企)&新希望地产(世界500强),已合作开发三个品质项目,交付力与产品力双重背书。
东安湖核心首熟区
坐拥东安新城最优城市界面,15分钟生活圈覆盖商业、教育、医疗、生态全维配套。
交通配套
地铁:距2号线书房站约800米,远期规划11/22/25号线(具体以官方公示为准)。
路网:紧邻蜀都大道、驿都大道、桃都大道等“四横三纵”主干道,快速连通全城。
全维配套分析
商业
龙湖东安天街(约500米)、新城吾悦广场(约600米)、万达广场(约2.5公里)。
教育
全龄优质教育资源:向阳桥幼儿园/小学/中学、经开区实验中学(教科院领办)、成都市实验小学(和雅校区/乐雅校区)。
高等学府:四川师范大学成龙校区、四川财经职业学院。
医疗
华西医院龙泉医院(约1.6公里)、成都中医药大学附属医院龙泉医院(约3.5公里)、龙泉驿妇幼保健院(约2公里)。
生态
东安湖公园、驿马河公园、龙泉山城市森林公园环伺。

户型深度解析
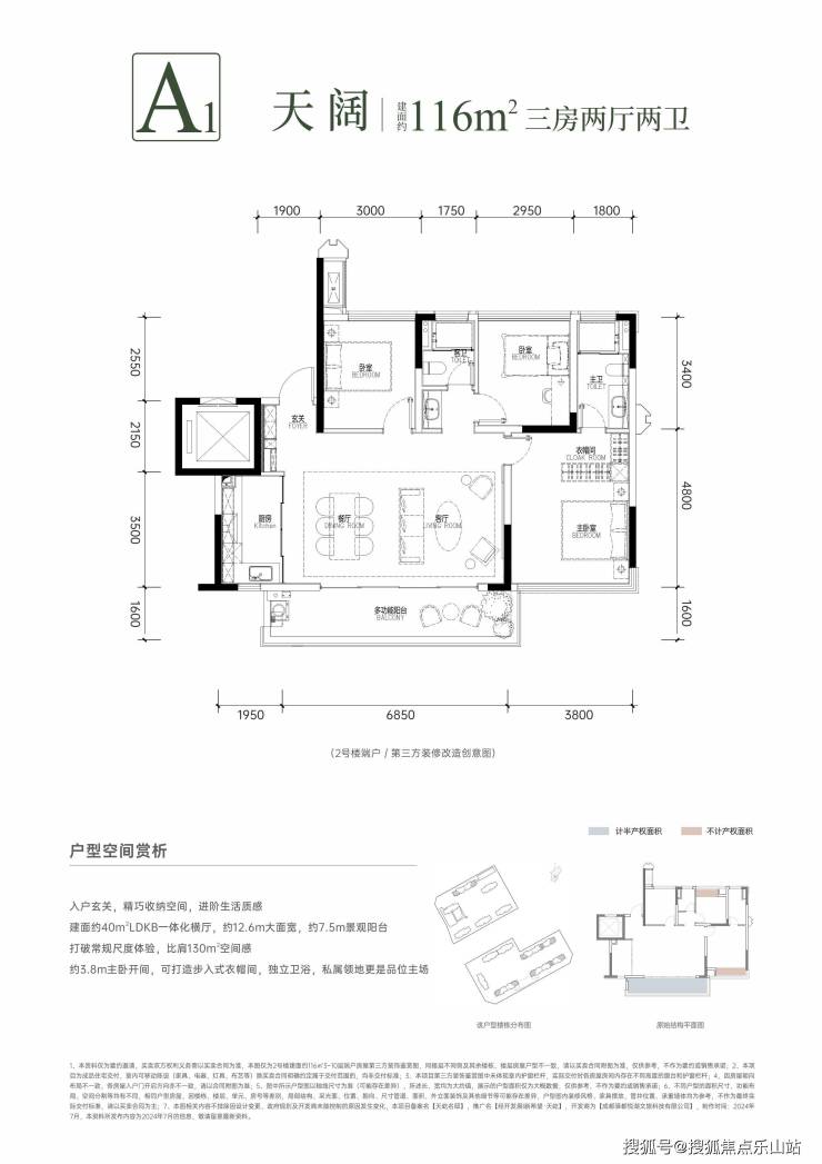
A户型 116㎡ 三房两厅两卫
核心优势:片区唯一120㎡以下洋房,婚房/首改优选。
亮点:
约12.6米南向大面宽,全明南北通透;
约44㎡LDKG一体化横厅+约6.85米南向景观阳台;
主卧开间约3.8米,配备步入式衣帽间。
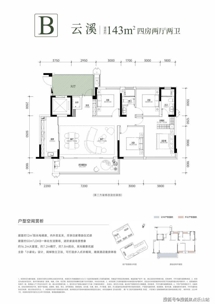
B户型 143㎡ 四房两厅两卫
核心优势:区域最大面宽改善户型,对标一线豪宅配置。
亮点:
独立光厅入户带梯控,私密性极佳;
约16.2米四开间朝南,约7.2米横厅衔接阳台;
约27㎡豪华主卧套房,搭配步入式衣帽间。
【越级143㎡】四房两厅双卫
成都 新希望天屹【营销中心】:028-87777213「销售热线」
【置业顾问】:18613205563「微信同步」
【置业顾问】:19983517822「微信同步」
温馨提示:专业一对一热情服务,为了节约您的等待时间,看房请提前致电预约!!!
免责声明:
以上内容仅作为邀约邀请,涉及的图片为部分区域实拍图和美学畅想图,具体内容请以现场公示和合同约定为准;本文部分资料、部分图片来源于网络,如有侵权请联系我们删除。
声明:本文由入驻焦点开放平台的作者撰写,除焦点官方账号外,观点仅代表作者本人,不代表焦点立场。
