成都保利湖光里院(售楼处)楼盘详情-最新房价|户型|容积率|

搜狐焦点乐山站 2025-10-16 11:07:54
用手机看
扫描到手机,新闻随时看

扫一扫,用手机看文章
更加方便分享给朋友

成都保利湖光里院售楼处电话:028-87777213【营销中心】 ☎【置业顾问】:18613205563「微信同步」☎ ☎【置业顾问】:19983517822「微信同步」☎

成都保利湖光里院售楼处电话:028-87777213【营销中心】

☎【置业顾问】:18613205563「微信同步」☎

☎【置业顾问】:19983517822「微信同步」☎

虽然成都土拍价格越拍越高,但主城市场卖得好的,还是那些主力总价在400万级的产品。

比如八开八罄的招商锦城序、多次登顶主城销冠的华润置地中环天宸等。

这背后的原因其实很清晰,虽然土拍价格持续走高,但大多数购房者的购买力是没有明显提升的。

对于绝大多数家庭而言,总价400万级就能在主城实现居住的全面迭代,这种吸引力,无疑是精准且难以抗拒的。

通过这些现象级热盘,我们就不难总结出,要想卖的好,控总价+高品质+高舒适度,以上三者缺一不可。

【项目基础信息】总户数:433,环线位置:三环-绕城,占地面积:64522,建筑面积:77425,容积率:1.2,绿化比:30%。,停车位:618个,物业公司:保利物业服务有限公司,朝向:南北通透、双面采光,车位比:1:1.4,交房时间:2022年10月30日

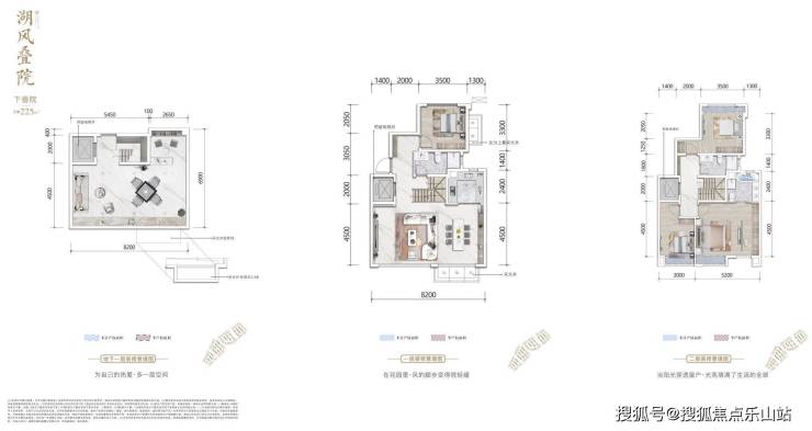
【在售产品】面积:224㎡,屋顶花园:100多平,总高:3层,单价:1.8万,优势:正对湿地公园-3000多亩,叠拼:2+1叠、两叠、三叠,面积:170-225㎡,花园:40-170,总价:两叠367万-480万,三叠293-430万

【项目总平】

【户型鉴赏】

【大平层户型图】224平

平墅下叠213㎡:独门独院自带花园,超大观景阳台,超大地下赠送空间,一线湖景资源

两叠上叠203㎡:私享电梯,超大露台赠送,位于小区内部,私密安静。

两叠下叠225㎡:独门院落,前庭可直接花园入户,与客厅相连,后院与老人房连通,老人独立使用。

三叠上叠170㎡,超大屋顶花园

三叠中叠170㎡,超高性价比

三叠下叠184㎡,超大地下赠送

成都保利湖光里院售楼处电话:028-87777213【营销中心】

☎【置业顾问】:18613205563「微信同步」☎

☎【置业顾问】:19983517822「微信同步」☎

___欢迎来电咨询丨专业一对一热情服务丨看房需提前预约

——如有侵权请联系我们删帖——

温馨提示:为了节约您的等待时间,看房请提前致电售楼处预约!!!

声明:本文由入驻焦点开放平台的作者撰写,除焦点官方账号外,观点仅代表作者本人,不代表焦点立场。