2026成都新房中海云缦源境-售楼电话-中海云缦源境最新项目信息-线上预约
扫描到手机,新闻随时看
扫一扫,用手机看文章
更加方便分享给朋友
【营销中心】:028-87777213「销售热线」
【置业顾问】:18613205563「微信同步」
【置业顾问】:19983517822「微信同步」
温馨提示:专业一对一热情服务,为了节约您的等待时间,看房请提前致电预约!!!
核心区位:双区交汇,数据丈量黄金位置
双核驱动:扼守天府总部商务区(CBD)与天府中央法务区中轴,坐享两大高能级板块红利
轨交便捷:实测距地铁6号线昌公堰站约800米,无缝接驳全城路网
生态零距:直面约46.8万㎡法务岛绿廊(规划中),推窗即瞰三色主题生态景观带:
北向200亩樱花园+60亩海棠园(天府前湾)
东临40亩银杏园+25亩枫林园(天府左岸)
西拥茉莉园+栀子花园(天府右岸)
关键配套距离:
天府大悦城/和悦广场:驾车约2.5公里
华西天府医院:约3公里
天府三中/香山教育组团:约1.2公里
央企实力:行业标杆铸造品质
开发商:世界500强第9位中国建筑旗下中海地产
2023年中国房企交付力TOP1
全行业唯一国际评级A级房企
物业:中海物业(服务宽窄巷子/熊猫基地等标杆)
管理面积超4亿㎡,服务全球164城
全能配套:都会生活举步即达
商业:2.5公里内汇聚天府大悦城、麓湖水镇(在建中)
医疗:3公里半径覆盖华西天府医院、省二人民医院
教育:香山K12组团/天府三中等全龄教育资源环伺
产业:天府CBD总部集群+中央法务区法商融合示范区

产品亮点:精工户型发售
交付时间:2025年底(准现房)
装修标准:2950元/㎡品质精装
户型面积核心亮点空间特色A/B2型100㎡约6米横厅+双阳台H型厨房/LDKG一体化布局C型103㎡L型玄关+双功能阳台主卧飘窗+独立卫浴D型112㎡约6.8米奢阔横厅独立电梯厅+双排衣帽间E型132㎡四开间朝南+方厅百变空间独立电梯+双阳台系统
社区规划:
低密住区:容积率2.0,绿化率35%
梯户比:1T2/2T2/2T4(改善型配置)
总户数:871户(7-17层小高层)
【项目规划】
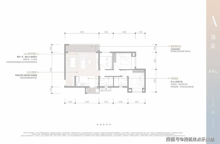
A户型 建面约100㎡三室两厅两卫
通透双阳台,生活处处向阳
H型厨房,享约4.2米面宽尺度
LDKG格局,阳台/横厅/厨房/餐厅无缝连接
约6米阔尺横厅,家庭社交第一聚厅
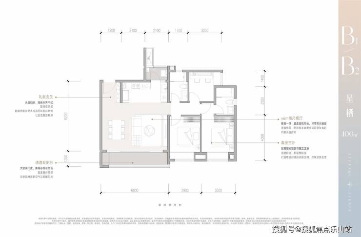
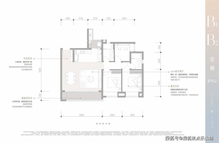
B2户型 建面约100㎡三室两厅两卫
礼制玄关,从容归家,隔绝外界干扰
约6米阔尺横厅,直连宽境阳台,尽享阳光偏爱
通透双阳台,兼得诗意与生活
套房主卧,配备阳光飘窗与独立卫浴,私属品质生活
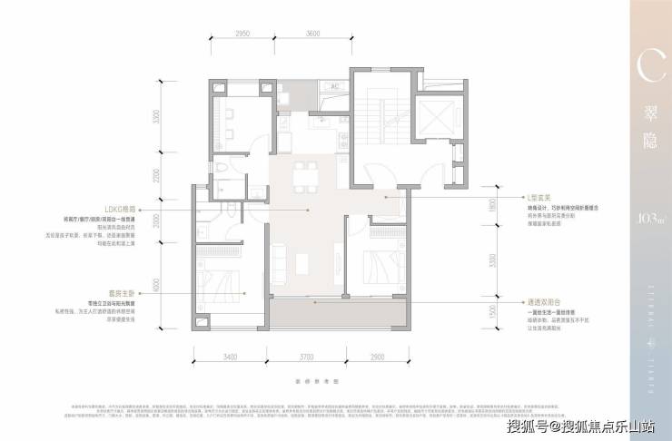
C户型 建面约103㎡三室两厅两卫
L型玄关,转角设计,巧妙利用空间折叠理念
通透双阳台,一面生活一面诗意
LDKG格局,客厅、餐厅、厨房、阳台一线贯通
套房主卧,带独立卫浴与飘窗,舒适尊崇休憩空间
D户型 建面约112㎡三室两厅两卫
约6.8m奢阔横厅开间,开放式家庭核芯区,大尺度互动空间
行政套房,独立卫浴与双排步入式衣帽间
独立电梯到户,享阔尺阳光前厅
礼制玄关宽敞空间,兼得礼制与收纳
E户型 建面约132㎡四室两厅两卫
雅致方厅,可幻变出独立书房/瑜伽室/儿童天地
四开间大采光面,极致居住体验,生活从此向阳而生
独立电梯到户享阔尺阳光前厅
通透双阳台,观景阳台+生活阳台
【营销中心】:028-87777213「销售热线」
【置业顾问】:18613205563「微信同步」
【置业顾问】:19983517822「微信同步」
温馨提示:专业一对一热情服务,为了节约您的等待时间,看房请提前致电预约!!!
免责声明:
以上内容仅作为邀约邀请,涉及的图片为部分区域实拍图和美学畅想图,具体内容请以现场公示和合同约定为准;本文部分资料、部分图片来源于网络,如有侵权请联系我们删除。
声明:本文由入驻焦点开放平台的作者撰写,除焦点官方账号外,观点仅代表作者本人,不代表焦点立场。
