【华润阅天府】2026最新价格-优惠-户型-学校-销售处
扫描到手机,新闻随时看
扫一扫,用手机看文章
更加方便分享给朋友
成都 华润阅天府【营销中心】:028-84385818「销售热线」
【置业顾问】:18613205563「微信同步」
【置业顾问】:19983517822「微信同步」
对于买房来说,比别人早一步掌握趋势,就意味着多一分主动权。
以往经济高速增长,房产金融投机属性强烈,靠概念炒作也能推动偏远地区房价上涨。
现在,经济增速放缓、房产金融属性削弱,房产的居住属性和使用价值被提到前所未有的高度。
通勤时间成本、生活便利度,是目前也是未来购房决策的核心考量,交通导向发展,会是成都城市发展的大概率趋势。
中央之地·双核之心
天西绝版洋房
2T2户纯板式·纯南北
户户得房率100%
最近,房地产市场的动向引起了广泛关注。官方数据显示,10月份全国的新房和二手房成交量都出现了久违的增长。这不仅表明市场有所回暖,也体现出政策调控的有效性。尤其是在9月底中央政治局会议强调促进房地产市场稳定之后,各部门积极出台了一系列优化措施,市场信心得以提振。
华发股份&华润置地 2024天西高阶迭新大作
华发股份&华润置地双匠合著 领阅天府奢想双强国匠再度携手打造天西高阶迭新大作
【区 位】世界都会 矜贵天府成都中心:未来城市新中心西部极核:成渝双城经济圈创新极核大国样板:中国式现代化公园城市先行区
国际天府 成都与世界的超级纽带总部商务区集聚重大产业总投资2526.6亿元集聚高能级世界500强25家经济总量2022年4450亿元位列国家级新区第一方阵
惟此天府奢心 寰阅极核之眼·坐拥天府总部商务区、兴隆湖科学城两大超能板块价值叠加·独占天府公园、鹿溪河生态区两大中央生态公园·紧邻雄心主轴天府大道·270°都会地标集群环绕
天新C区三大教育用地、城市级中央生态绿廊、开放式街巷商业全方位环绕
超级枢纽:地铁1/6/18号线已开通;红莲TOD/秦皇寺TOD、城市候机楼、19号线二期/S5眉山线/16号线一期(在建中);26号线(远期规划)
国际商圈:招商花园城MALL、人字绿廊商业带、时代公园商业中心
新贵教育:元音小学/中学、天新第一小学、成都实验小学、天府中学、麓湖小学、乐盟国际学校
优渥医疗:万达国际医院、四川华西天府医院、天新妇女儿童医院、华西牙科总部
打造143亩天西迭新大作,力邀六大国际大师团队操刀,以前所未见的迭创“全景舱”设计,筑写可穿越市场周期的作品,启序天府全新奢阶生活。
力邀gad杰地设计、JTL(新加坡)规划与景观设计事务所、于舍设计 (Yu Studio)、近境制作、Z-WORK真工设计、LANDAU朗道国际设计六大国际大师团队操刀,融合多年打造国际精品奢宅的经验,凝练世界前沿审美与艺术理念,以精湛技艺和非凡巧思,雕琢可穿越市场周期的天西高阶迭新大作。
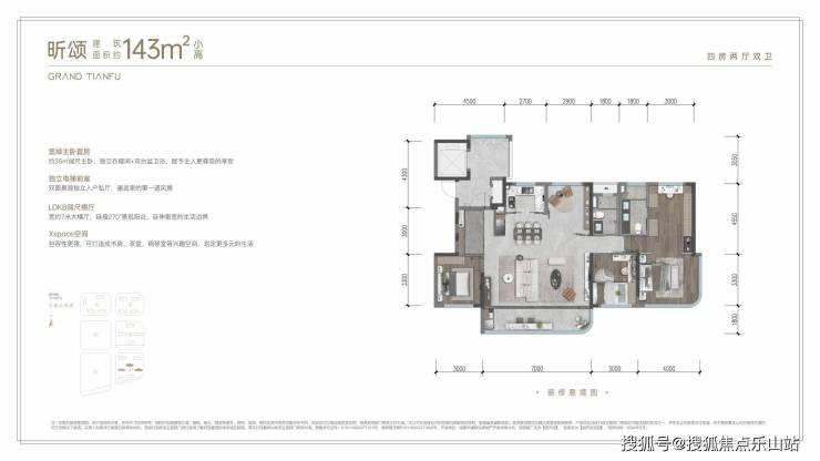
领阅天际观邸主力建面约143-252㎡领阅天际观邸
户型


成都 华润阅天府【营销中心】:028-84385818「销售热线」
【置业顾问】:18613205563「微信同步」
【置业顾问】:19983517822「微信同步」
___欢迎来电咨询丨专业一对一热情服务丨看房需提前预约
——如有侵权请联系我们删帖——
温馨提示:为了节约您的等待时间,看房请提前致电售楼处预约!!!
声明:本文由入驻焦点开放平台的作者撰写,除焦点官方账号外,观点仅代表作者本人,不代表焦点立场。
