成都楼盘-【高投铂郡】置业指南-房源查询-价格优惠-电话
扫描到手机,新闻随时看
扫一扫,用手机看文章
更加方便分享给朋友
成都 高投铂郡【营销中心】:028-87777213「销售热线」
【置业顾问】:18613205563「微信同步」
【置业顾问】:19983517822「微信同步」
城市才具有抗风险能力,只有具备城市价值、城市概念的房子才最保值。
板块的价值,是由它的城市设计、形态规划、产业能级、投资强度,房地产总体的开发水平、定位共同决定的,不仅具备统一的价值属性,而且具备排他性。
当然,有些城市概念并不能完全转化成楼市概念,每一个行政区,都避免不了板块发育参差,无论是听起来很贵的高新区,还是老观念里穷搜搜的成华。但是这些地方的抗风险能力是很强的。
城市概念才能保住房价,而楼市概念只能随波逐流,只能拼行情,只能拼行情。
108㎡低密洋房➕区域赠送最大跃层产品区域内准现房项目
基本信息:占地:32亩,总建面约7万㎡,容积率:2.0,绿地率:30%,车位比:1:1.6,物业费:3.1元/㎡(万科物业),交房时间:2023年12月30日,装修情况:精装(洋房装标2300, 跃层装标1500),在售楼栋:东区1栋,西区1-5栋,可售套数:200+,单价:3.2-3.7万,公摊:洋房20-21% 、跃层25%,层高:洋房3m、跃层约6m,产品面积:洋房10F:1梯2户,南北通透,建面约108㎡、总价约370-390万,跃层19F、25F: 2梯2户,南北通透,建面150-163㎡(实得约200-240㎡),总价约480-600万
项目总平图:
户型鉴赏:
B1建筑面积约163㎡,实得面积约230㎡客厅6米挑高,超大空间分区配置,跃层独立私密主卧豪华套房,南北双阳台通透采光,近8m双观景阳台享无敌视野。
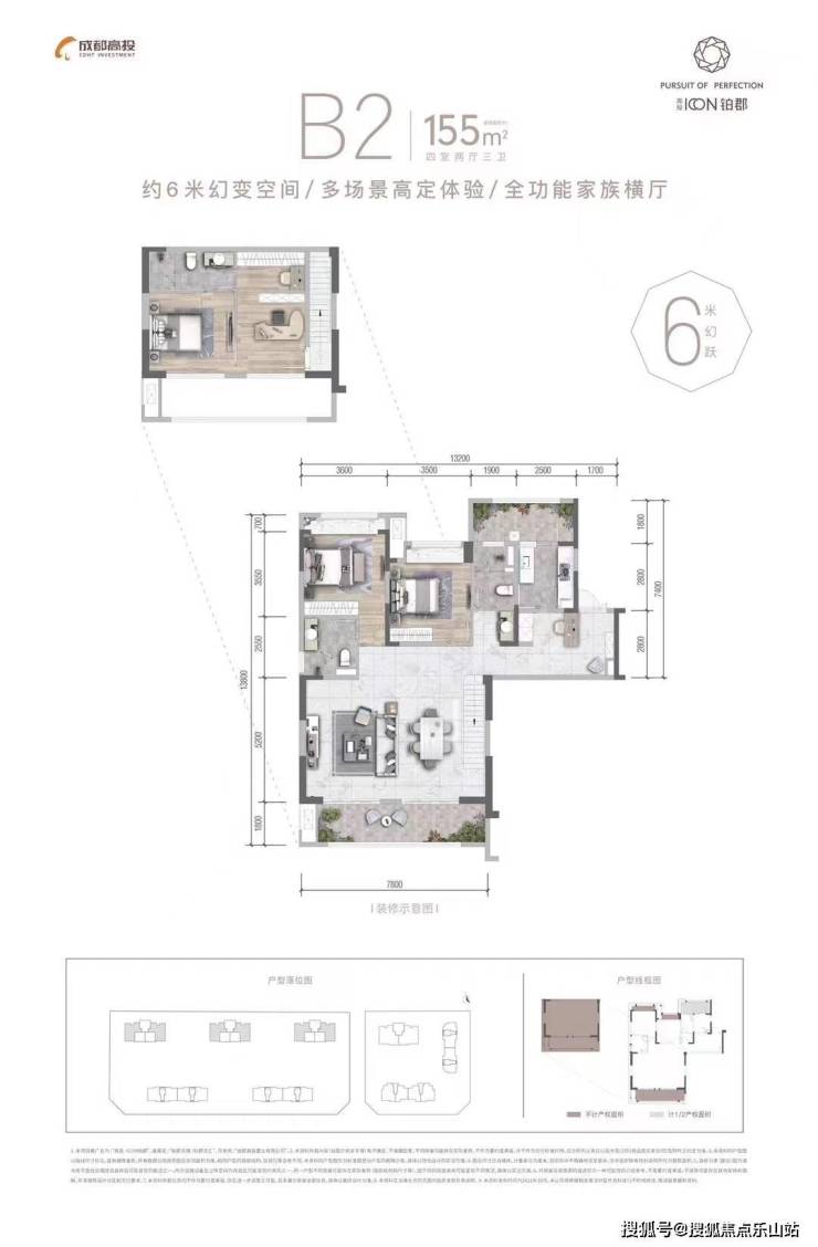
B2建筑面积约155㎡,实得面积约210㎡客厅6米挑高,超大空间分区配置,跃层独立私密主卧豪华套房,南北双阳台通透采光,近8m双观景阳台享无敌视野。
A1 建筑面积约108㎡ 10层低密度洋房平层,1梯2户南北通透,动静分区,双阳台设计,高端精致三房。
成都 高投铂郡【营销中心】:028-87777213「销售热线」
【置业顾问】:18613205563「微信同步」
【置业顾问】:19983517822「微信同步」
声明:本文由入驻焦点开放平台的作者撰写,除焦点官方账号外,观点仅代表作者本人,不代表焦点立场。
