成都华兴滨江锦宸(售楼处)楼盘详情-最新房价|户型|容积率|

搜狐焦点乐山站 2025-10-06 20:55:00
用手机看
扫描到手机,新闻随时看

扫一扫,用手机看文章
更加方便分享给朋友

成都 华兴滨江锦宸【营销中心】:028-87777213「销售热线」 【置业顾问】:18613205563「微信同步」 【置业顾问】:19983517822「微信同步」

成都 华兴滨江锦宸【营销中心】:028-87777213「销售热线」

【置业顾问】:18613205563「微信同步」

【置业顾问】:19983517822「微信同步」

前三季度,成都共成交超25万套房源,其中新房7.3万套,二手房超18万套,二手房成交量已达到24年全年的78.3%,成交总量依然在全国首屈一指。值得注意的是,25年9月成都二手房累计成交19581套,成交量同比24年9月的15208套猛涨约28.8%

不是说市场不行吗,为何成都人还是在恐慌性买房,成交量不跌反涨?

项目核心价值

主城稀缺现房:成都主城区罕有现房销售,即买即住,品质所见即所得。

低密滨江墅区:容积率仅1.5,30%绿地率,打造城南高端低密人居典范。

一线江景资源:西邻江安河,坐拥千米滨江景观,推窗即享自然与繁华。

品牌实力保障:华兴地产深耕成都26年,国家一级开发资质,已交付10个项目,服务6.3万业主。

交通优势

地铁:近地铁5号线骑龙站,便捷通达全城。

主干路网:

三横:天府五街、元秀路、华阳大道

三纵:剑南大道、华府大道、华秀路

立体交通:快速接驳高新南区、金融城等核心商圈。

三、醇熟生活配套

商业

2km范围内覆盖大润发商圈、世豪广场、银泰城,满足高端购物需求。

医疗

四川大学华西医院高新院区(2026年运营)

成都市第三人民医院高新院区(已批复)

生态

滨江公园(在建)、三江公园(在建)、骑龙公园(规划中)环绕,生态宜居。

优质教育资源

怡心第一实验学校(直线距离约900米)

成都教科院附属学校、成都七中高新校区等优质学府环伺,全龄教育无忧。

项目亮点总结

主城现房:规避期房风险,即买即住。

低密滨江:1.5容积率,30%绿地率,稀缺江景资源。

醇熟配套:商业、医疗、教育、生态全维覆盖。

产品力强:平层+墅境双产品线,精工细节领先市场。

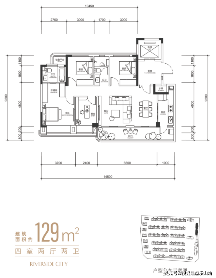
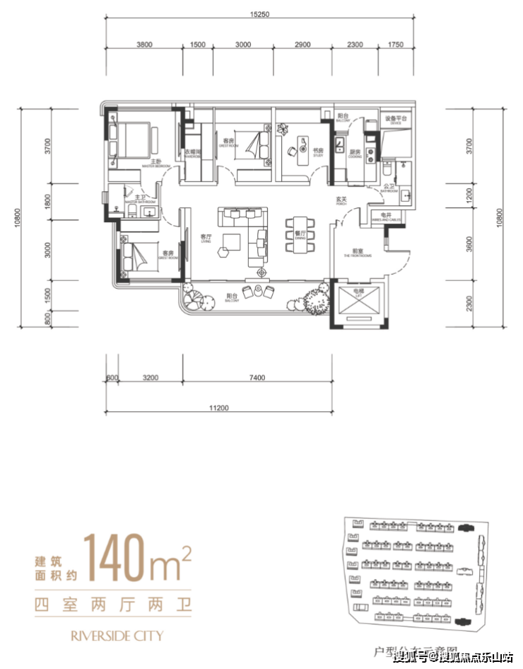
天际阔景平层(建面约129-159㎡)

梯户比2T2,私密性高,3.1米层高,空间通透。

全屋明管铺设、自流平地面、新风预留,装修便捷。

适合城市精英家庭,兼顾舒适与功能性。

江岸雅奢墅境(建面约174-325㎡)

低密墅质产品,3.5米层高,奢阔空间。

蓝钻花岗岩立面、酒店式入户大堂,彰显高端品质。

一线临江,私家庭院,满足高端改善需求。

成都 华兴滨江锦宸【营销中心】:028-87777213「销售热线」

【置业顾问】:18613205563「微信同步」

【置业顾问】:19983517822「微信同步」

声明:本文由入驻焦点开放平台的作者撰写,除焦点官方账号外,观点仅代表作者本人,不代表焦点立场。