城投艺墅语湖怎么样-城投艺墅语湖售价-优惠-面积-配套
扫描到手机,新闻随时看
扫一扫,用手机看文章
更加方便分享给朋友
成都城投艺墅语湖售楼处电话:028-87777213【营销中心】
☎【置业顾问】:18613205563「微信同步」☎
☎【置业顾问】:19983517822「微信同步」☎
城投艺墅语湖——以低密墅境,敬献主城峰层生活。
核心价值分析
主城稀缺低密住区
容积率仅1.55,219亩大盘规划,打造叠拼、高层、商墅多元产品,主城东三环罕有低密墅居群落。
清水交付,层高3.2米,IMAX级景观面与光学玻璃立面,提升居住质感。
自然与人文双栖
紧邻30000亩青龙湖湿地公园、成都大学嘤鸣湖,坐拥环城生态带与缤纷花海,推窗见绿。
比邻成都大学、东盟艺术学院,人文艺术氛围浓厚,区域内规划专业剧场、音乐厅及成都最大图书馆。
发展潜力强劲
东三环十陵板块,叠加“中优”“东进”双重红利,城市更新加速,价值潜力可期。
交通配套
地铁:4号线(成都大学站、明蜀王陵站)、9号线(在建)、12号线(规划中),范家院子TOD(规划)。
路网:东三环主干道,快速通达全城。
生活配套
商业:5分钟直达成都大学东盟生活圈,15分钟覆盖万象城商圈。
医疗:四川省人民医院(东院)、成都长江医院等优质资源环伺。
教育:十陵中学、十陵小学、成都大学附属小学等全龄教育资源。
园林与社区设计
一轴三重景:240米艺墅山谷景观轴、景观水景、阅读溪谷、红枫庭落。
全龄活动空间:700米环形跑道、400㎡儿童乐园、架空层泛会所(健身/亲子/会客)。
户型推荐
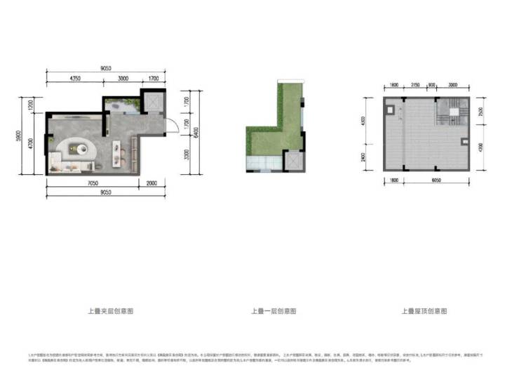
上叠(234㎡ | 四房两厅三卫 | 总价380万起)
亮点:顶层私密性佳,赠送49-56㎡楼顶花园,适合家庭聚会与园艺生活。
中叠(212㎡ | 四房两厅三卫 | 总价370万起)
亮点:18㎡露台设计,兼顾景观与实用性,性价比之选。
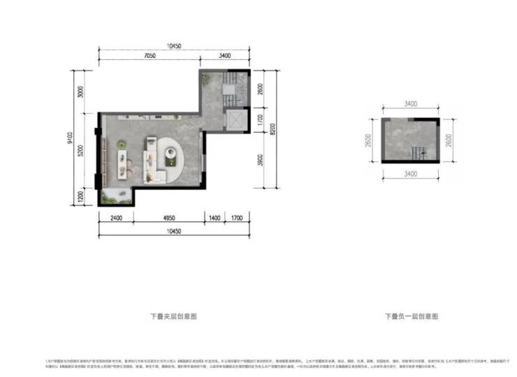
下叠(274㎡ | 四房两厅四卫 | 总价450-550万起)
亮点:31-107㎡私家庭院,四卫设计,适合多代同堂或高端改善需求。
成都城投艺墅语湖售楼处电话:028-87777213【营销中心】
☎【置业顾问】:18613205563「微信同步」☎
☎【置业顾问】:19983517822「微信同步」☎
___欢迎来电咨询丨专业一对一热情服务丨看房需提前预约
——如有侵权请联系我们删帖——
温馨提示:为了节约您的等待时间,看房请提前致电售楼处预约!!!
声明:本文由入驻焦点开放平台的作者撰写,除焦点官方账号外,观点仅代表作者本人,不代表焦点立场。
