成都楼市-(北湖揽樾)最新特价房源-最新价格-营销热线

搜狐焦点乐山站 2025-10-17 10:18:00
用手机看
扫描到手机,新闻随时看

扫一扫,用手机看文章
更加方便分享给朋友

成都北湖揽樾售楼处电话:028-87777213【营销中心】 ☎【置业顾问】:18613205563「微信同步」☎ ☎【置业顾问】:19983517822「微信同步」☎

成都北湖揽樾售楼处电话:028-87777213【营销中心】

☎【置业顾问】:18613205563「微信同步」☎

☎【置业顾问】:19983517822「微信同步」☎

虽然成都土拍价格越拍越高,但主城市场卖得好的,还是那些主力总价在400万级的产品。

比如八开八罄的招商锦城序、多次登顶主城销冠的华润置地中环天宸等。

这背后的原因其实很清晰,虽然土拍价格持续走高,但大多数购房者的购买力是没有明显提升的。

对于绝大多数家庭而言,总价400万级就能在主城实现居住的全面迭代,这种吸引力,无疑是精准且难以抗拒的。

通过这些现象级热盘,我们就不难总结出,要想卖的好,控总价+高品质+高舒适度,以上三者缺一不可。

【项目概况】

总户数:1102户

梯户比:洋房、叠拼1梯2户,大平层1梯1户

项目占地:136亩

交房时间:2024年6月

容积率:1.52

绿地率:31.5%

物业费:洋房3元/㎡,叠拼4.5元/㎡

物业公司:中铁建物业

装修标准:洋房2000元/㎡,叠拼和大平层清水交付

楼层:洋房8层,叠拼3层(第3层是大平层)

层高:洋房2.95米,叠拼3.2米(负一楼层高5.1米,面积78平)

【项目总平】

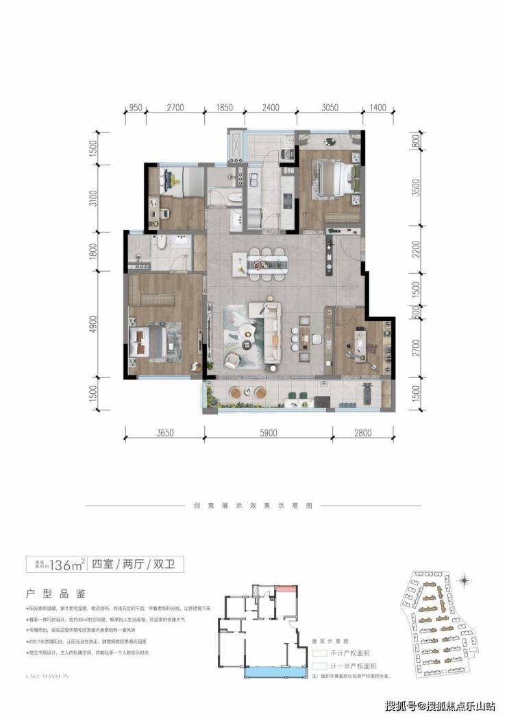
【户型鉴赏】

成都北湖揽樾售楼处电话:028-87777213【营销中心】

☎【置业顾问】:18613205563「微信同步」☎

☎【置业顾问】:19983517822「微信同步」☎

___欢迎来电咨询丨专业一对一热情服务丨看房需提前预约

——如有侵权请联系我们删帖——

温馨提示:为了节约您的等待时间,看房请提前致电售楼处预约!!!

声明:本文由入驻焦点开放平台的作者撰写,除焦点官方账号外,观点仅代表作者本人,不代表焦点立场。