成都新房秦皇帝锦锦南邸_成都房价秦皇帝锦锦南邸_成都购房政策秦皇帝锦锦南邸
扫描到手机,新闻随时看
扫一扫,用手机看文章
更加方便分享给朋友
【秦皇帝锦·锦澜邸】
中央商务区之芯 实景现房
🏙建面约91㎡私享臻装二房
🏙建面约117-119㎡明星臻装二房
建面约128-138㎡全能臻装四房
【项目位置】项目营销中心地址:四川省成都市天府新区汉州路与厦门路东段辅路交叉口西北140米
【基本信息】项目总占地:约261亩,总建筑面积:约95524㎡,预取证锦澜邸项目,占地约 40.7 亩,总建面约 9.5 万m²,容积率:约2.5,绿化率:约30%,总户数:377户,产品规划:共计4栋住宅 16-25F,「91㎡两房双卫 」,「117-119㎡三房双卫」 ,「128-138㎡四房双卫 」
【全系实景 臻装现房】
建筑风格及布局|
🔹采用超大围合式的布局打造了4栋住宅,并且采用错落式的布局,保证了每一户的采光面及极致的观景面。整个外立面设计也是获得了“四川省外立面形象设计大奖
🔹安逸舒适居住空间
四大板块:艺境花园,水韵蓝池,悦动天地,琉璃花园
六大功能空间:入口空间,开放空间,私密空间,半私密空间,会所空间,商业空间
【在售户型】
建面约91㎡两室两厅两卫
客厅开间约3.8米,无任何空间浪费
配合约7M阔景阳台,餐厨客卫卧空间功能一应俱全,空间利用率达到极致
主卧约18㎡,可以说是全成都目前在售100㎡以下,主卧最大的户型

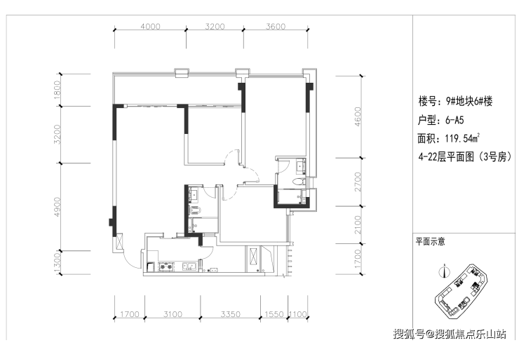
建面约119㎡三室两厅两卫
客厅开间约4M,极佳舒适空间
方正布局,套三双卫绝佳的动静分区享受私属的静谧空间
主次卧空间基本保持一致,赠送完全抵消公摊

建面约138㎡四室两厅两卫
近15米开间超大采光面,市面上基本要170㎡的产品才能做到
主次卧空间接近,一书房+三卧的房间+双卫分布
正对中庭,极大的保证了居住的私密性和静谧,享受极致的居住体验

免责声明:
以上内容仅作为邀约邀请,涉及的图片为部分区域实拍图和美学畅想图,具体内容请以现场公示和合同约定为准;本文部分资料、部分图片来源于网络,如有侵权请联系我们删除。
声明:本文由入驻焦点开放平台的作者撰写,除焦点官方账号外,观点仅代表作者本人,不代表焦点立场。
