云玺观宸怎么样-云玺观宸售价-优惠-面积-配套
扫描到手机,新闻随时看
扫一扫,用手机看文章
更加方便分享给朋友
云玺观宸【营销中心】:028-87777213「销售热线」
【置业顾问】:18613205563「微信同步」
【置业顾问】:19983517822「微信同步」
温馨提示:专业一对一热情服务,为了节约您的等待时间,看房请提前致电预约!!!
【项目核心亮点】
空港发展·云玺观宸落子怡心湖A区高端住区,是双流国企空港发展集团打造的"云玺系"首发作品。项目占地79亩,容积率仅2.0,规划11-17层纯板式洋房,主推建面141-199㎡四至五房,以"三轨交+千亩公园+树德学区"重构城南湖居标准。

五大核心价值
1. 怡心湖A区稀缺地块
项目位于怡心湖"黄金三角"北翼,距离金融城约10公里、天府CBD约15公里,占据城南价值洼地。
对比周边竞品,容积率低至2.0,35%绿地率,楼间距最大达150米,指标优于区域平均水平25%。
2. 三轨交立体路网
地铁:19号线(已运营)怡心湖站距离约800米,5号线(已运营)、22号线(规划中)三线覆盖,8站直达金融城(约12公里)。
路网:剑南大道、牧华路双主干道环伺,5公里直达大源商圈,10分钟接驳双流机场(约8公里)。
3. 全龄顶配资源
教育:树德中学怡心湖校区(九年制)距离500米,2025年9月开学;3公里内覆盖7所优质幼儿园。
商业:银泰INPARK(在建)距离约1.2公里,空港怡心城(招商中)约800米,未来商业体量超80万方。
医疗:成都市第七人民医院(三甲)距离3.1公里,华西天府医院(约6公里)双三甲护航。
4. 千亩生态体系
步行可达12.8万㎡云熙公园(2024年建成)、17万㎡A区湿地公园,1.5公里直达怡心湖主湖区。
独创"一环一链两轴四院"园林设计,植入1000米环形跑道、下沉式会所等度假级配套。
5. 国企精工品质
全系1T1/2T2纯板楼,141㎡四房两厅起步,199㎡边厅户型享270°环幕视野。
对比同类产品,得房率超83%,精装交付配备地暖、新风系统,装修标准达5000元/㎡。





来。

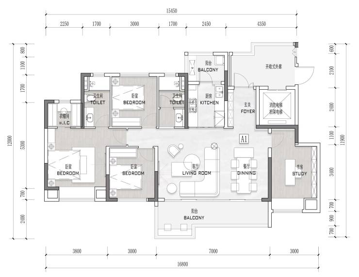
141㎡户型:
约16.8米面宽,四开间朝南
约11㎡独立入户光厅
超大方正生活阳台
约32㎡大平层级横方厅
L型阳台,约6㎡户外客厅
独立采光化妆+衣帽间
166㎡户型:
约17.35米极致南向面宽
约12㎡独立入户光厅
约21㎡超大甲板阳台
约39㎡LDKB大平层级横厅,南北通透
独立藏宝阁式衣帽间
中岛社交U型厨房
X灵动空间
199㎡户型(T1):
超尺度边厅带来270°环幕视野
光厅入户+入户花园
约17.5米L型阳台
1T1户私享门
五房三套房+总统套主卧
板块天花板户型,全城稀缺
【营销中心】:028-87777213「销售热线」
【置业顾问】:18613205563「微信同步」
【置业顾问】:19983517822「微信同步」
温馨提示:专业一对一热情服务,为了节约您的等待时间,看房请提前致电预约!!!
免责声明:
以上内容仅作为邀约邀请,涉及的图片为部分区域实拍图和美学畅想图,具体内容请以现场公示和合同约定为准;本文部分资料、部分图片来源于网络,如有侵权请联系我们删除。
声明:本文由入驻焦点开放平台的作者撰写,除焦点官方账号外,观点仅代表作者本人,不代表焦点立场。
