成都中铁卓著怎么样?中铁卓著最新评价-售楼电话-一键预约
扫描到手机,新闻随时看
扫一扫,用手机看文章
更加方便分享给朋友
【营销中心】:028-87777213「销售热线」
【置业顾问】:18613205563「微信同步」
【置业顾问】:19983517822「微信同步」
温馨提示:专业一对一热情服务,为了节约您的等待时间,看房请提前致电预约!!!
免责声明:
以上内容仅作为邀约邀请,涉及的图片为部分区域实拍图和美学畅想图,具体内容请以现场公示和合同约定为准;本文部分资料、部分图片来源于网络,如有侵权请联系我们删除。
【核心价值】
中铁·卓著位于天府科学城核心区,由中铁开发、龙湖智造联袂打造,主推88-143㎡精装华宅。项目坐拥双地铁(18/19号线)+华西医院顶级配套,享龙湖"尊享版"物业服务,是天府新区稀缺的"央企+龙湖"双品牌品质住区。

【通勤数据】轨交路网实测
地铁覆盖:
18号线兴隆站丨步行600米(未来16号线换乘)
19号线蓝家店站(2024年开通)丨步行300米
主干路网:
梓州大道/天府大道丨车行500米快速接入
科学城北路丨1公里直达兴隆湖
双机场距离:
天府机场约30公里(18号线直达)
双流机场约28公里(经天府大道)

【配套实测距离】
教育医疗
天府教科院附小/附中(规划)丨项目北侧零距离
华西天府医院(三甲)丨车行3公里
生态商业
兴隆湖(5100亩)丨步行1公里
天府大悦城(2024年开业)丨地铁1站直达
科创资源
成都科学城丨直线500米
超算中心丨车行2公里
【三大核心优势】
双地铁红利:600米内双轨交汇(18/19号线),通达性天府新区TOP3
名校环伺:全龄段教育资源覆盖,含天府中学等5所名校
产品稀缺:科学城住宅用地仅占10%,且60%为人才公寓

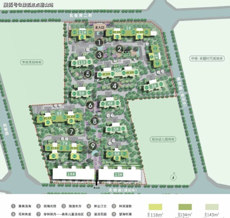
【产品力解析】
1. 基础指标
户型分布:
88-108㎡三房:总价180万起,首置优选
128-143㎡四房:横厅设计+双套房,改善标杆
精装标准:含三大件(中央空调+新风+地暖)
物业:龙湖"尊享版"服务,费3.8-4.2元/㎡
2. 设计亮点
双品牌加持:中铁开发+龙湖智造,品质双重保障
低密住区:容积率2.5,楼间距超50米

户型鉴赏



【营销中心】:028-87777213「销售热线」
【置业顾问】:18613205563「微信同步」
【置业顾问】:19983517822「微信同步」
温馨提示:专业一对一热情服务,为了节约您的等待时间,看房请提前致电预约!!!
免责声明:
以上内容仅作为邀约邀请,涉及的图片为部分区域实拍图和美学畅想图,具体内容请以现场公示和合同约定为准;本文部分资料、部分图片来源于网络,如有侵权请联系我们删除。
声明:本文由入驻焦点开放平台的作者撰写,除焦点官方账号外,观点仅代表作者本人,不代表焦点立场。
