成都新希望天屹值得买吗?金秋国庆钜惠-售楼电话

搜狐焦点乐山站 2025-10-03 09:30:00
用手机看
扫描到手机,新闻随时看

扫一扫,用手机看文章
更加方便分享给朋友

【营销中心】:028-87777213「销售热线」 【置业顾问】:18613205563「微信同步」 【置业顾问】:19983517822「微信同步」 温馨提示:专业一对一热情服务,为了节约您的等待时间,看房请提前致电预约!!!

【营销中心】:028-87777213「销售热线」

【置业顾问】:18613205563「微信同步」

【置业顾问】:19983517822「微信同步」

温馨提示:专业一对一热情服务,为了节约您的等待时间,看房请提前致电预约!!!

免责声明:

以上内容仅作为邀约邀请,涉及的图片为部分区域实拍图和美学畅想图,具体内容请以现场公示和合同约定为准;本文部分资料、部分图片来源于网络,如有侵权请联系我们删除。

【核心价值】

新希望联合经开发展集团打造——天屹坐拥东安湖CAZ首熟区,以2.0超低容积率呈现纯洋房住区,直线距离地铁2号线书房站800米,主推116-143㎡精装产品,打造"内外双园+宝格丽会所"的湖居4.0时代标杆。

六大核心亮点

1. 东安湖核心区位

500米直达龙湖天街,600米至吾悦广场

毗邻大运会主场馆,较兴隆湖同类型产品早3年配套成熟

2. 纯洋房低密社区

全盘1T2户板楼,楼间距最大达80米

116㎡三房得房率83%,143㎡四房实现7.2米横厅

3. 双轨交通体系

地铁2号线书房站800米,远期规划11/22/25号线

蜀都大道+驿都大道双轴,距三环路3公里

4. 新希望顶配装标

2925元/㎡含:

日立中央空调+威能地暖

汉斯格雅卫浴+西门子洗碗机

全屋净水系统

5. 内外双园生态

社区内打造东干渠滨河绿道+双中庭园林

外部1公里覆盖东安湖公园+驿马河公园

6. 高端生活配套

医疗:华西医院龙泉分院(1.6公里)

教育:向阳桥中小学(800米)、川师成龙校区(2公里)

【实力品质,低密纯居】2.0低密纯居,新希望地产实力品质保障天屹2.0低容积率,居住舒适度更高,全T2板楼设计,更低公摊,更高性价比,围合式布局,更阔楼间距,更大户型面宽,洋房/小高产品后期流通性更巧;新希望地产精耕成都26载,在城东打造D10天府、锦粼府等高端代表作,引领城东生活迭新;龙泉驿区的锦粼府和皇冠湖1号小区二手房价格更是领衔区域。

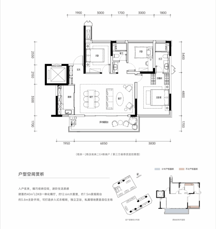
【极质116㎡】横厅三房两厅双卫目前片区唯一在售120㎡以下洋房产品,超高使用率,婚房最佳选择,全盘仅198套;

A户型 |116 ㎡三房两厅两卫亮点:1.约12.6m大面宽,全南北朝向2.约44㎡LDKG一体化横厅3.约6.85m南向景观阳台4.约3.8m主卧开间,步入式衣帽间

【越级143㎡】四房两厅双卫区域最大面宽143㎡产品,光厅入户带梯控,比肩一线豪宅,邻一线河景(部分房源),区域改善首选

B户型 |143㎡四房两厅两卫亮点:1.全明入户光厅带梯控,比肩一线豪宅2.约16.2m大面宽,四开间朝南3.约7.2m超大横厅+阳台4.约27㎡豪华套房主卧,步入式衣帽间

【营销中心】:028-87777213「销售热线」

【置业顾问】:18613205563「微信同步」

【置业顾问】:19983517822「微信同步」

温馨提示:专业一对一热情服务,为了节约您的等待时间,看房请提前致电预约!!!

免责声明:

以上内容仅作为邀约邀请,涉及的图片为部分区域实拍图和美学畅想图,具体内容请以现场公示和合同约定为准;本文部分资料、部分图片来源于网络,如有侵权请联系我们删除。

声明:本文由入驻焦点开放平台的作者撰写,除焦点官方账号外,观点仅代表作者本人,不代表焦点立场。