成都能建金誉颂玺年底冲刺-能建金誉颂玺钜惠来袭-售楼电话
扫描到手机,新闻随时看
扫一扫,用手机看文章
更加方便分享给朋友
【营销中心】:028-87777213「销售热线」
【置业顾问】:18613205563「微信同步」
【置业顾问】:19983517822「微信同步」
温馨提示:专业一对一热情服务,为了节约您的等待时间,看房请提前致电预约!!!
免责声明:
以上内容仅作为邀约邀请,涉及的图片为部分区域实拍图和美学畅想图,具体内容请以现场公示和合同约定为准;本文部分资料、部分图片来源于网络,如有侵权请联系我们删除。
——能建·金誉颂玺——
海派风华 玺藏东方
建面约143-199㎡ 全景舱传世藏品


🏙大国重器:中国能建,与国策同频的坚实基石
中国能建秉持“行业领先、世界一流”的愿景,深度参与国家战略工程,在三峡工程、 南水北调、西气东输、西电东送、三代核电等一系列关系国计民生的重大工程中,连续多年入选世界500强、ENR全球工程设计公司150强,业务覆盖全球140多个国家和地区;累计获得国家科技进步奖48项,重大科技成果2100余项,拥有有效专利超10043项,主导或参与制定修订国家标准与行业标准1100余项。
🕋深耕成都:与城共建,让热爱发生,让生活更美好
从深刻理解一座城市的精神内核开始,能建城发致力于将天府文化特有的从容优雅与国际化的现代生活方式相融合。入蓉九载,持续深耕,先后打造了紫郡兰园、紫郡公馆、锦誉府等多个备受瞩目的地标项目,不仅参与城市的物理构建,更与成都的情感与未来共鸣,实现与这座城市的共同成长与美好共生。
⛩央匠营城:能建城发,缔造美好生活的专业力量
能建城发作为国务院国资委首批明确以房地产为主业的16家央企之一,以"大国营城者"之姿匠造“颂玺、誉府、兰园”三大产品体系,覆盖全生命周期,凭借凭借卓越的产品力、高效的运营力、优越有温度的服务力,荣获“2025中国房地产公司品牌价值TOP10(央企)”、“2025中国房地产产品力优秀品牌”等多项荣誉。

📍三环内外有别 不可复制的稀缺壁垒
2024年全市416宗涉宅用地中,三环内仅16宗;截至2025年9月30日,全市成交土地273宗,三环内亦仅18宗,土地稀缺属性持续强化。三环内供应主要集中于茶花等板块,其价值不仅源于区位的不可复制,更承载着老成都人对圈层认同、文化归属与资产预期的深厚情感。
数据来源为房联系统,截止日期2025.9.30
📍三环新旧有别 茶花板块焕新城市封面
在主力板块中,茶花板块依托系统化城市更新,已实现从生活配套、交通网络到商业能级与人文氛围的全维度跃升,成为金牛区西三环名副其实的“门户”。都会风貌与艺术气息交融,为其构筑纯粹高端人居奠定了坚实基础。已实现从交通网络、商业能级到人文氛围的全维度跃升,成为金牛区西三环名副其实的“门户”,展现出“新一线城市”标杆级的界面气质。
📍三环强弱有别 茶花擎领资源高度
茶花板块在交通、教育、商业、生态、医疗等核心配套方面均表现出显著优势,并吸引高能产业与高素质人群聚集。自“全域北改”启动以来,板块持续进阶:新金牛公园重塑生态界面,金牛大道全面升级,地铁2、6、7、27号线四轨交汇;龙湖西宸天街与凯德广场构成“双商业核心”,茶店子小学、七中万达等优质教育资源云集,资源能级居板块前列。
🔥茶花能级腾飞 擎领价值跃升
茶花板块定位为“西南科技创新应用首发地”与“成都文商旅融合体验消费新中心”,具三大功能支撑:
现代商贸与商务服务核心高地:汇聚企业总部、金融机构与专业服务机构,楼宇经济发达;
科技研发与科技服务重要平台:依托中电科十所、二十九所、西南交大等“链主”单位,聚焦智慧交通、人工智能等前沿领域;
文化旅游与城市形象展示窗口:通过TOD开发、现代化楼宇与高品质公园,塑造国际化公园城市风貌。

🚄立体交通,高效链接全城:
板块构建“三纵五横四轨”城市级交通骨架,地铁四线交汇,金牛大道等主干道纵横贯通,快速串联天府广场、宽窄巷子、天府艺术公园等城市核心地标。
⛰公园簇拥,绿意浸润生活:
超6000亩公园簇群环抱,空中绿道“丝路云锦”凌空串联新金牛公园、金牛公园、天府艺术公园,并衔接熊猫绿道,形成移步异景的都市生态网络。
数据来源:中指研究院西南
🎉商圈环伺,繁华举步即达:
西宸天街、凯德广场、山姆会员店、天府111四大城市级商圈与多元文化场馆环绕,涵盖购物、观展、市集、演艺等全维生活场景,实现繁华与静谧的完美平衡。
📖名校矩阵,护航全龄成长:
从成都第四幼儿园到金牛实验中学行知校区、七中八一学校,再到二十中、七中万达等知名学府,板块构建起全龄段优质教育体系,营造浓郁书香氛围。
〽️颂玺系 敬献一座城的未来向往
作为国匠央企,能建城发始终秉持对城市的敬畏与热忱,集萃高端人居营造经验,以匠心技艺于全国重点城市铸就高定之作:南京中宁府、上海香榭颂玺、北京中国府等四座颂玺系作品,不仅是建筑的呈现,更成为每一座城市的人居封面。

🌐成都首座颂玺系 共筑高阶生活场域
而今,颂玺系首入成都,以茶花板块为纸、匠心为笔,描摹未来生活图景。从整体布局的反复推敲,到户型结构的精心演绎,再到选材用料的细致适配,每一步皆历经多轮打磨,精益求精。我们以时间雕琢细节,以专业兑现期待,旨在为成都呈现一座契合城市精神、承载未来理想的人居栖息地。
能建·金誉颂玺,立于主城芯脉之上,匠造难以复制的约百亩大盘。项目以建面约143㎡起步的院屿式大宅,打造纯粹改善住区,汇聚共识圈层,共筑高阶生活场域。
社区规划六重立体园林,融自然诗境于日常步移景异;配备超3000㎡海派双会所与阔尺无界泳池,延展生活美学边界;建筑立面采用三段式酒店礼制设计,以典雅形制重塑城市天际线。
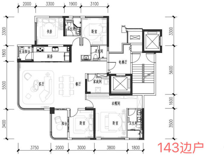
【户型鉴赏】
【营销中心】:028-87777213「销售热线」
【置业顾问】:18613205563「微信同步」
【置业顾问】:19983517822「微信同步」
温馨提示:专业一对一热情服务,为了节约您的等待时间,看房请提前致电预约!!!
免责声明:
以上内容仅作为邀约邀请,涉及的图片为部分区域实拍图和美学畅想图,具体内容请以现场公示和合同约定为准;本文部分资料、部分图片来源于网络,如有侵权请联系我们删除。
声明:本文由入驻焦点开放平台的作者撰写,除焦点官方账号外,观点仅代表作者本人,不代表焦点立场。
